Broadgreen, Cargill, Perth, Perth and Kinross, PH2 6DS

Cargill, Perth, Perth and Kinross, PH2 6DS
Sold
Pin View on map

Offers Over £2,200,000

House

Detached House

Bed

5 Bedrooms

Bathroom

5 Bathrooms

Reception

4 Reception Rooms

Size

5,412 sq.ft

Plot

About 24.25 Acres

Tree

Private Garden

Garage

Double Garage

Telephone

Property Description

A statement Huf Haus, in a superlative setting on the banks of the River Tay, wherein design credentials, opulent interior architecture, and luxury finishes have been combined to afford sumptuous, modern country living.

Broadgreen is ensconced within approximately 25 acres of verdant private grounds, which are set apart by their enviable, elevated position on the bank of the River Tay.

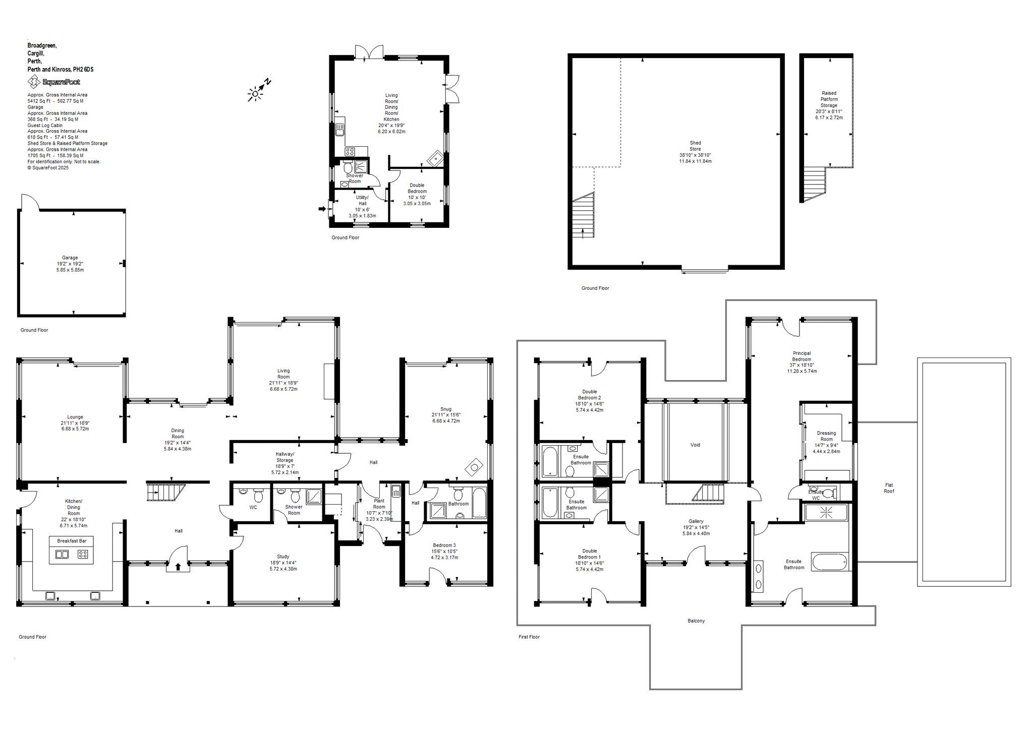
Accommodation Summary

Ground Floor

Hall, Drawing Room, Dining Room, Sitting Room, open-plan Kitchen/Dining Room, and Family Room.

Cloakroom/Inner Hall, WC, and Utility Room.

Two Double Bedroom Suites (one with an en-suite Bathroom and one with a Shower Room).

First Floor

Gallery with Study/Library/Lounge area.

Principal Bedroom Suite with Dressing Room, Bathroom, and WC.

Double Bedroom Suites 4 & 5 with en-suite Bathrooms.

GIA approx. 5412 sq. ft. (502 sq. m.)

River Lodge

Timber cabin with open-plan living/dining/kitchen, one double bedroom, and a shower room.

Grounds

Private grounds extending to approx. 25 acres in all, including:
Around 7.5 acres of garden ground around the house, primarily laid to lawn in the style of parkland and governed by glorious views across the River.

Mature, mixed woodland populates much of the grounds to the south of the house, providing amenity and a high degree of privacy and seclusion.

Smart, gated entrance (electrically operated) and sweeping private driveway, culminating in an expansive tarmacadam area at the foot of the house, providing car parking and turning space for multiple vehicles.

Outbuildings

Detached double garage with electrically-operated doors.
Purpose-built, machinery shed (approx. 38 ft x 38 ft), including a mezzanine/loft area.

More Details

Tenure: Freehold
EPC Rating: Band C
Council Tax Band: H

Contact Us

Alastair Houlden MRICS

Alastair Houlden MRICS

Director of Country House Sales
Paul Banyard Cert CII (MP)

Paul Banyard Cert CII (MP)

Mortgage & Protection Advisor
Mortgage Calculator
Monthly payments
Please set an interest rate.

Your home may be repossessed if you do not keep up repayments on your mortgage.

There may be a fee for mortgage advice. The actual amount you pay will depend upon your circumstances. The fee is up to 1% but a typical fee is 0.3% of the amount borrowed.

Tax Calculator
LBTT calculator for properties purchased in Scotland. Stamp Duty calculator for properties purchased in England.
Land & buildings transaction tax (LBTT)
= £0
New build house with stone and timber cladding

Looking To Sell Or Let?

Rettie is one of the most trusted and well-respected names in property. Our unrivalled market knowledge helps people from around the world buy, sell, let and develop property in Scotland and the North East of England - from city apartments and rural cottages to large townhouses and prime country homes, farms and estates. We deal with some of the most prestigious properties on the market, but provide the same exceptional standards of service and value for money to all our clients.