1/2, 112 St. Andrews Drive, Pollokshields, Glasgow, G41 4RB
Property Description
A delightful first floor flat situated in this convenient pocket of Pollokshields.
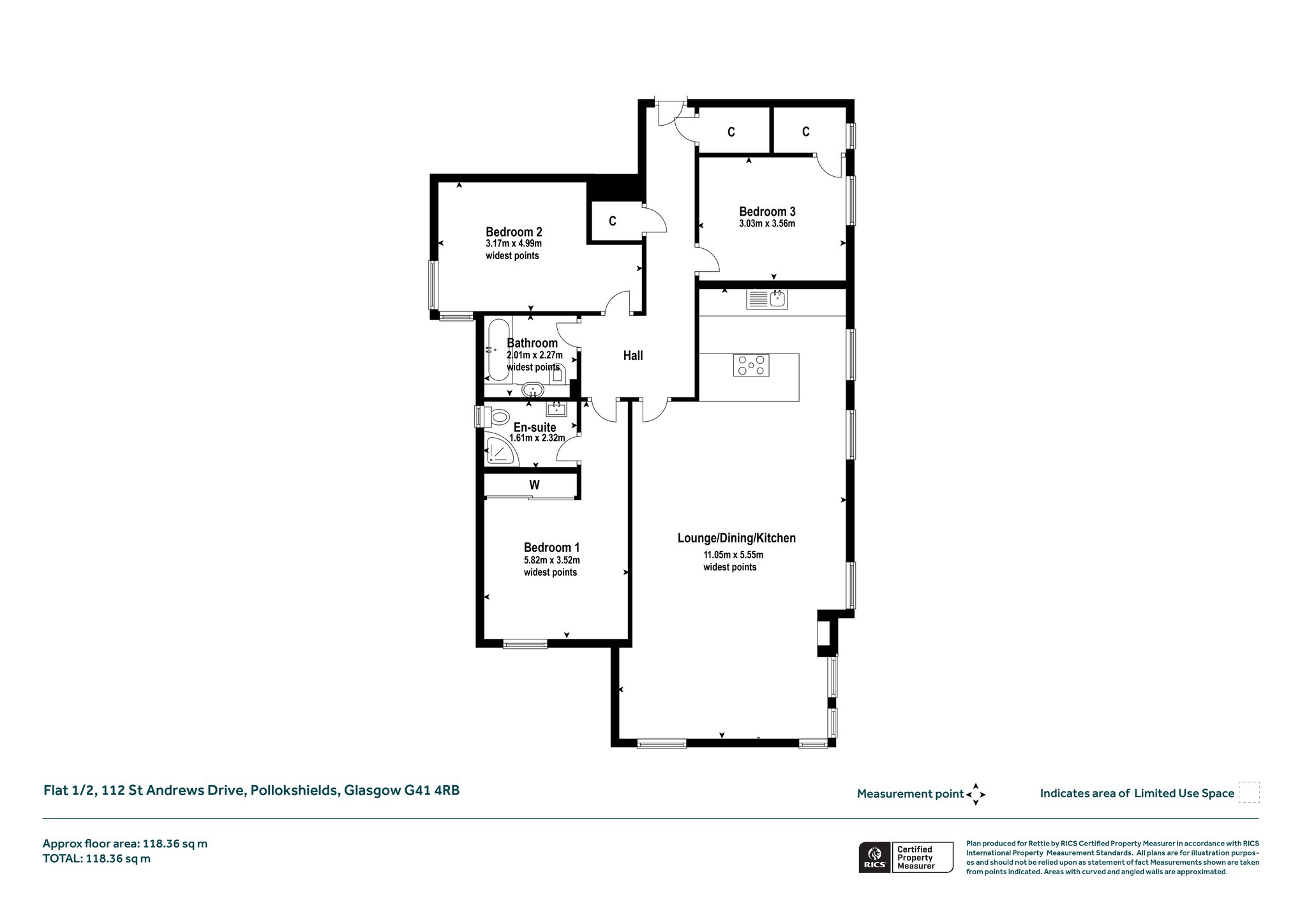
The accommodation of the flat itself comprises welcoming reception hallway with two cupboards off, expansive lounge/dining area with fabulous dual aspects lined with outsized windows and a feature fireplace. The spacious open plan contains an Alno kitchen with a range of integrated appliances, base and wall mounted and breakfast bar, double sized bedroom one with integrated wardrobes with sliding door access, tiled en-suite off with high quality two piece suite, vanity unit and separate walk-in shower, second double sized bedroom with dual aspect, tiled bathroom with white three piece suite, vanity unit and over bath shower and third double sized bedroom that is currently utilised as a home office.
This modern development with only five flats in the building is accessed via secure door entry system into a well-kept communal hallway and stairwell, where this flat is entered on the first floor.
The property also benefits from double glazing, gas central heating, high quality floor coverings and a modern, contemporary decor throughout. Externally there is an allocated private parking space that comes with the flat, as well as delightful communal gardens.
Pollokshields is an incredibly affluent and popular suburb in Glasgow's southside with a number of amenities and transport links nearby. There are a number of parks and recreational facilities in close proximity including Maxwell Park, Pollok Park, Titwood Tennis & Bowling Club, Clydesdale Cricket Club, Bellahouston Ski Centre, Cartha Rugby Club and Haggs Castle Golf Club. The closest independent schooling at both primary and secondary level comes in the form of the prestigious Hutchesons’ Grammar School which is within walking distance. The cafes, restaurants and boutique stores of Nithsdale Road are within comfortable walking distance, as well as Shawlands and Strathbungo that both offer a wide array of their own cafes, bars and restaurants. Maxwell Park, Pollokshields West and Crossmyloof train stations are a short walk away. Pollokshields is also close to junction 1 of the M77, offering motorway connections across central Scotland, along with the Queen Elizabeth University Hospital being within comfortable commuting distance.
More Details
Situation: Contact branch
Council Tax Band: G
Tenure: Freehold
Your home may be repossessed if you do not keep up repayments on your mortgage.
There may be a fee for mortgage advice. The actual amount you pay will depend upon your circumstances. The fee is up to 1% but a typical fee is 0.3% of the amount borrowed.
Similar Properties
Looking To Sell Or Let?
Rettie is one of the most trusted and well-respected names in property. Our unrivalled market knowledge helps people from around the world buy, sell, let and develop property in Scotland and the North East of England - from city apartments and rural cottages to large townhouses and prime country homes, farms and estates. We deal with some of the most prestigious properties on the market, but provide the same exceptional standards of service and value for money to all our clients.
