155 Farne Drive, Simshill, Glasgow, G44 5DN

Simshill, Glasgow, G44 5DN
Sold
Pin View on map

Offers Over £210,000

House

Semi Detached House

Bed

2 Bedrooms

Bathroom

1 Bathroom

Reception

3 Reception Rooms

Tree

Private Garden

Parking

On Street/Permit

Telephone

Property Description

**CLOSING DATE FRIDAY 25TH APRIL AT 12PM**
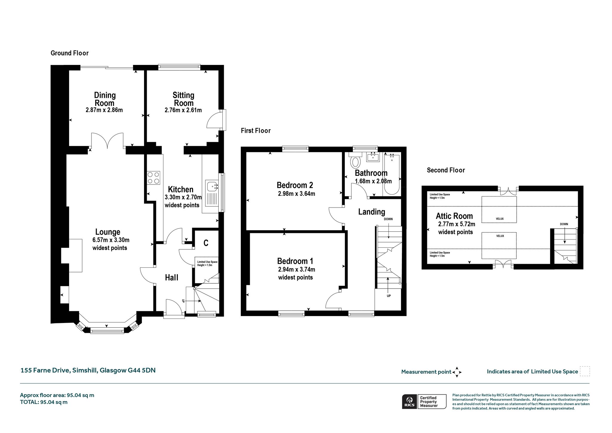
Farne Drive is a fabulous, extended semi detached villa, set within a large garden plot, and has a flexible 5 apartment layout. Simshill is an ever popular area which is sure to appeal to a wide range of buyers.

The accommodation comprises a bright, welcoming reception hallway, featuring under-stair storage and access to all ground floor rooms. The main formal sitting room offers a large bay window and a feature fireplace and wonderful views across Simshill and beyond. The sitting room flows on to separate dining room which in turn, flows on to decking area via patio doors. Off Dining Room is a TV/Snug (complete with small breakfast bar), flowing directly on to Kitchen and further benefits from convenient access to side garden. The modern kitchen is well-equipped, with a wide array of base and wall units.

On the upper level, there are two generous sized bedrooms and a family bath room benefiting from a white modern suite complete with shower over bath. Off the upper landing is a fixed staircase which provides access to the floored and lined attic (which is currently be used as a generous bedroom, complete with velux windows).

This home benefits from gas central heating and double glazing.

Outside, there is ample off-street parking. The garden to front is mainly laid to lawn with stairs leading to house. The rear garden has a wonderful decked area and an elevated grass area.

The property is quietly situated in a much sought after and convenient south-side location and is ideally placed for access to a host of amenities including the nearby Linn and Kings Park parks. Local shops and a supermarket are located at the Croftfoot roundabout whilst a more diverse range of facilities may be found in nearby Shawlands. There is reputable schooling at both primary and secondary levels together with excellent public transport services and motorway links including access to the M74. Additional and more extensive shopping facilities can also be found at Silverburn Complex which boasts numerous High Street branded retailers, restaurants, a cinema, and coffee shops.

More Details

Situation: Private Garden
Council Tax Band: D
Tenure: Freehold

Contact Us

Grace Sloan

Grace Sloan

Branch Manager
Claire Black CIOBS

Claire Black CIOBS

Mortgage & Protection Advisor
Mortgage Calculator
Monthly payments
Please set an interest rate.

Your home may be repossessed if you do not keep up repayments on your mortgage. There may be a fee for mortgage advice. The actual amount you pay will depend upon your circumstances.

Tax Calculator
LBTT calculator for properties purchased in Scotland. Stamp Duty calculator for properties purchased in England.
Land & buildings transaction tax (LBTT)
= £0
New build house with stone and timber cladding

Looking To Sell Or Let?

Rettie is one of the most trusted and well-respected names in property. Our unrivalled market knowledge helps people from around the world buy, sell, let and develop property in Scotland and the North East of England - from city apartments and rural cottages to large townhouses and prime country homes, farms and estates. We deal with some of the most prestigious properties on the market, but provide the same exceptional standards of service and value for money to all our clients.