Flat 58, Huntly Court, 20 Dirleton Place, Shawlands, G41 3BH
Property Description
A delightful one bedroomed, ground level flat with fabulous aspect out over beautiful communal gardens.
This building is accessed via secure door entry system into a well-kept communal close and stairwell.
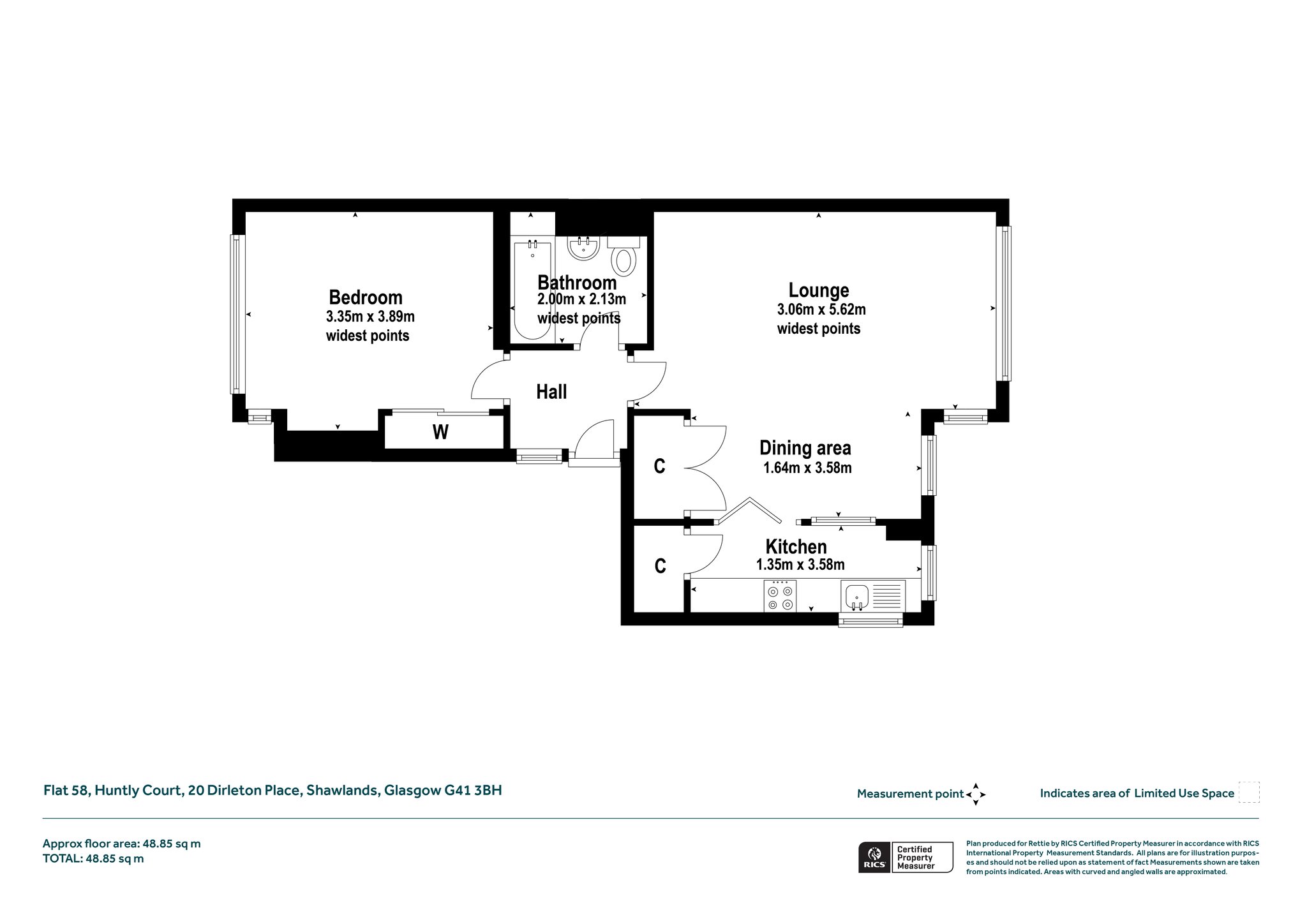
The accommodation of the flat itself comprises welcoming reception hallway, spacious lounge with open aspect out onto the communal gardens, dining area that is currently utilised as a study space with large cupboard off, galley kitchen with a range of base and wall mounted units and cupboard off, double sized bedroom with integrated wardrobes and tiled bathroom with three piece suite.
The property also benefits from single glazing, electric heating and pristinely kept communal gardens.
Shawlands is considered by many to be the "brunch capital" of Glasgow. While the brunch spots are excellent and numerous, there are also a wide range of other amenities including restaurants, bars, parks and much more. This flat is perfectly situated to enjoy everything that Shawlands has to offer, including Queens Park at the end of the street, as well as excellent transport links with Pollokshaws East and Crossmyloof a short walk away.
More Details
Situation: Communal Garden
Council Tax Band: C
Tenure: Freehold
Your home may be repossessed if you do not keep up repayments on your mortgage. There may be a fee for mortgage advice. The actual amount you pay will depend upon your circumstances.
Similar Properties
Looking To Sell Or Let?
Rettie is one of the most trusted and well-respected names in property. Our unrivalled market knowledge helps people from around the world buy, sell, let and develop property in Scotland and the North East of England - from city apartments and rural cottages to large townhouses and prime country homes, farms and estates. We deal with some of the most prestigious properties on the market, but provide the same exceptional standards of service and value for money to all our clients.
