2A Leslie Road, Pollokshields, Glasgow, G41 5RQ
Property Description
A stunning upper conversion situated in this convenient yet idyllic pocket of Pollokshields.
The property is approached via pathway and staircase leading to the front door and entrance vestibule.
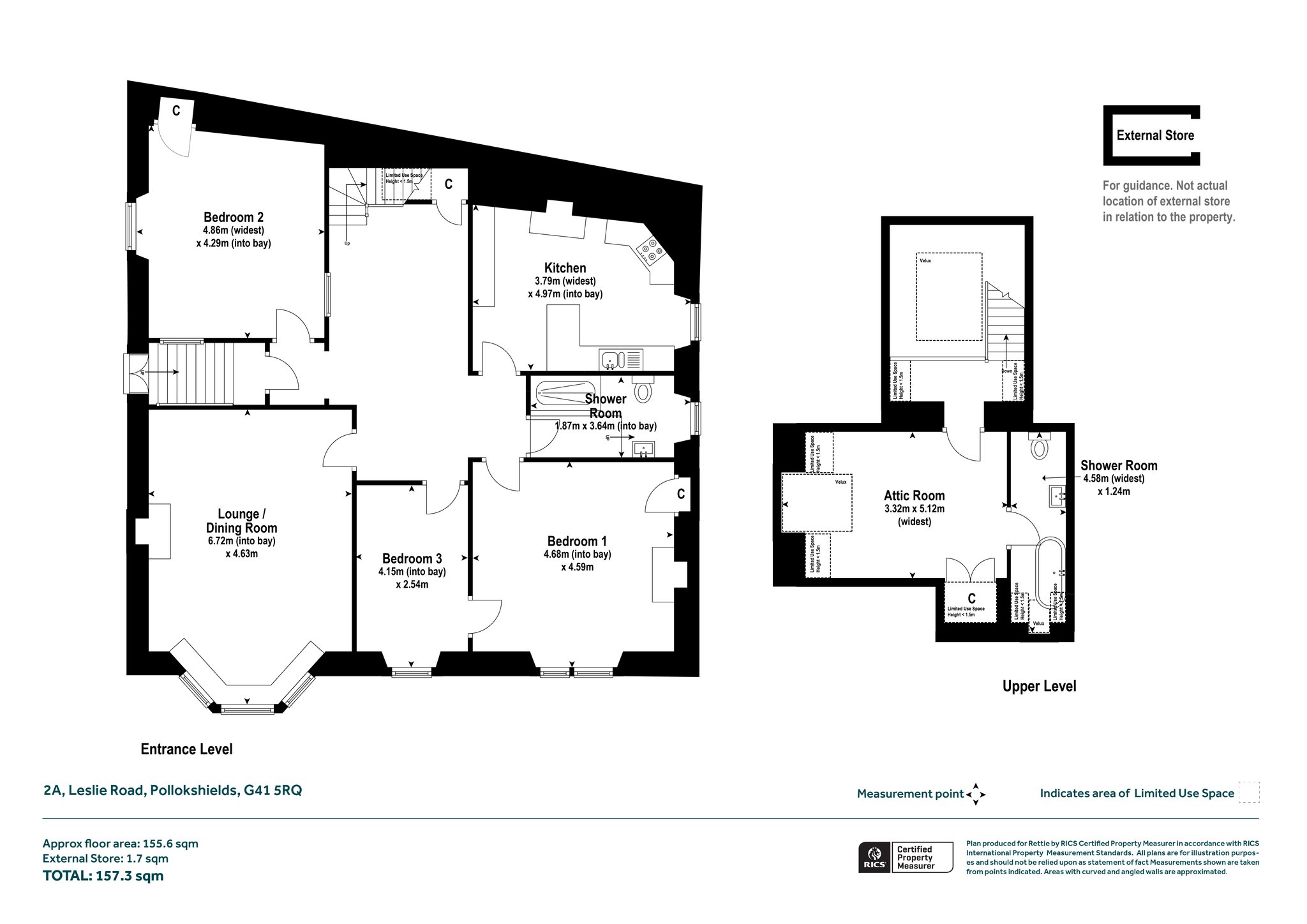
The accommodation of the property itself comprises a grand reception hallway with an impressive skylight filling the space with light, bespoke bookshelves, and an understairs cupboard; a beautiful bay-windowed lounge with open aspect, cornicing, a woodburning stove with feature surround, and window seat; a dining-sized kitchen with a range of base and wall-mounted units, tiled splashback, hardwood worktop and breakfast bar. There is a spacious master bedroom with intricate cornicing and refurbished original floorboards, a second double-sized bedroom with cornice plaster and refurbished floorboards, a third bedroom that could easily be utilised as a home office, study, or nursery; and a generous tiled shower room with white two-piece suite, separate walk-in shower and panelling. On the attic level, accessed via custom fixed staircase, there is a peaceful room with Velux skylight, useful storage off and an en-suite bathroom with three-piece suite.
The property also benefits from a combination of sash and casement double and single glazing, gas central heating, high quality floor coverings and modern, eclectic decor throughout. Externally there is a private patio area, along with a well-maintained communal front lawn. There is also a private external understair storage area.
Pollokshields is one of the most popular areas anywhere in the West of Scotland. The combination of amenities and transport links are second to none. There is a particularly impressive range of restaurants, bars, and cafes in Pollokshields itself as well as nearby Strathbungo and Shawlands all within walking distance. The position of the property is also extremely convenient for easy access to Glasgow City Centre by any number of methods including by bike, car, train, bus or subway.
More Details
Situation: Contact branch
Council Tax Band: E
Tenure: Freehold
Your home may be repossessed if you do not keep up repayments on your mortgage. There may be a fee for mortgage advice. The actual amount you pay will depend upon your circumstances.
Similar Properties
Looking To Sell Or Let?
Rettie is one of the most trusted and well-respected names in property. Our unrivalled market knowledge helps people from around the world buy, sell, let and develop property in Scotland and the North East of England - from city apartments and rural cottages to large townhouses and prime country homes, farms and estates. We deal with some of the most prestigious properties on the market, but provide the same exceptional standards of service and value for money to all our clients.
