Property Description
An incredible two bedroomed, ground floor flat with a dining sized kitchen situated in this popular pocket of Battlefield.
This stunning flat has undergone a total refurbishment and is a must for viewing in order to be appreciated.
This blonde sandstone tenement building is accessed via secure door entry system into a well-kept communal close.
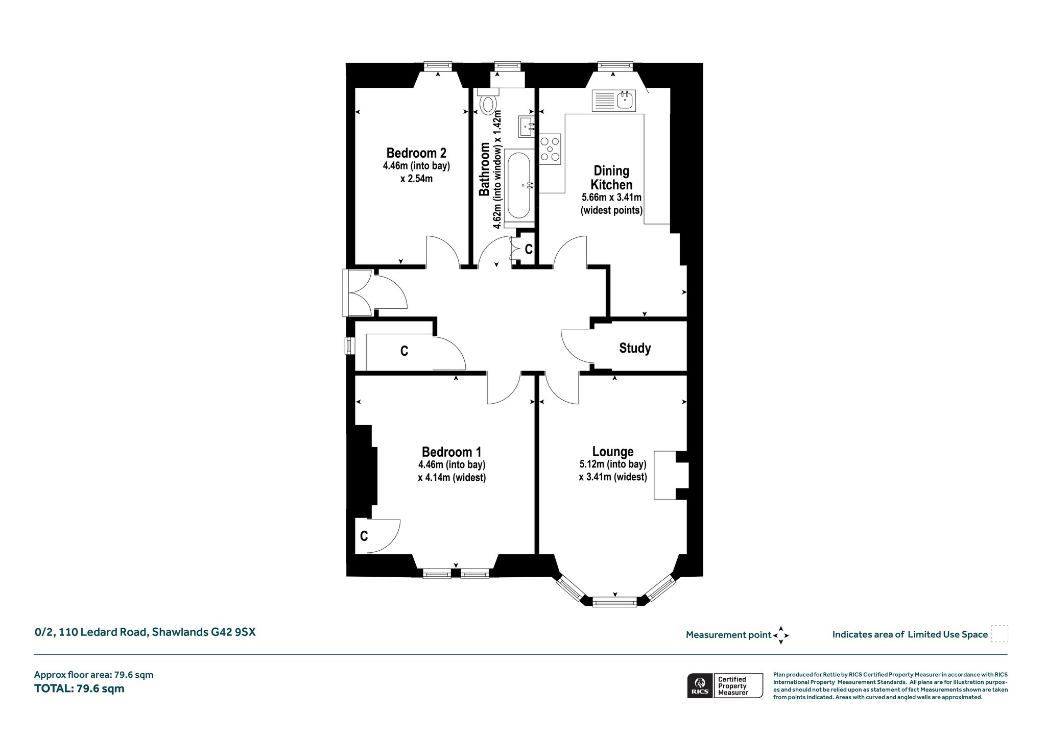
The accommodation of the flat itself comprises welcoming reception hallway with large cupboard off, delightful bay windowed lounge with cornicing and feature fireplace, gorgeous dining sized kitchen with a range of integrated appliances, base and wall mounted units and a dining recess. There is spacious bedroom to the front of the flat with cornicing, a second well-proportioned double bedroom, and a stunning tiled bathroom with high-quality three-piece suite, vanity unit, and heated towel rail.
The property also benefits from double glazing, gas central heating, high quality floor coverings and a modern, contemporary decor throughout. Externally there is a private front garden to the front with patio and a communal rear garden.
Battlefield, located in Glasgow's Southside, is renowned for its vibrant culinary scene, featuring numerous independent restaurants and cafés. Featuring Franks Pizza, M&S Food, Starbucks and many more. The area boasts excellent public parks, including Queen's Park within walking distance. Battlefield offers a variety of amenities and a lively atmosphere, making it a desirable place to live.
More Details
Situation: Private Garden
Council Tax Band: C
Tenure: Freehold
Your home may be repossessed if you do not keep up repayments on your mortgage. There may be a fee for mortgage advice. The actual amount you pay will depend upon your circumstances.
Similar Properties
Looking To Sell Or Let?
Rettie is one of the most trusted and well-respected names in property. Our unrivalled market knowledge helps people from around the world buy, sell, let and develop property in Scotland and the North East of England - from city apartments and rural cottages to large townhouses and prime country homes, farms and estates. We deal with some of the most prestigious properties on the market, but provide the same exceptional standards of service and value for money to all our clients.
