3/2, 714B Pollokshaws Road, Strathbungo, Glasgow, G41 2AD
Property Description
An excellent two bedroomed flat situated in this convenient pocket of Strathbungo.
This building is accessed via secure door entry system into a hallway and incredible communal garden, leading to the communal stairwell.
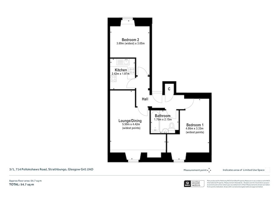
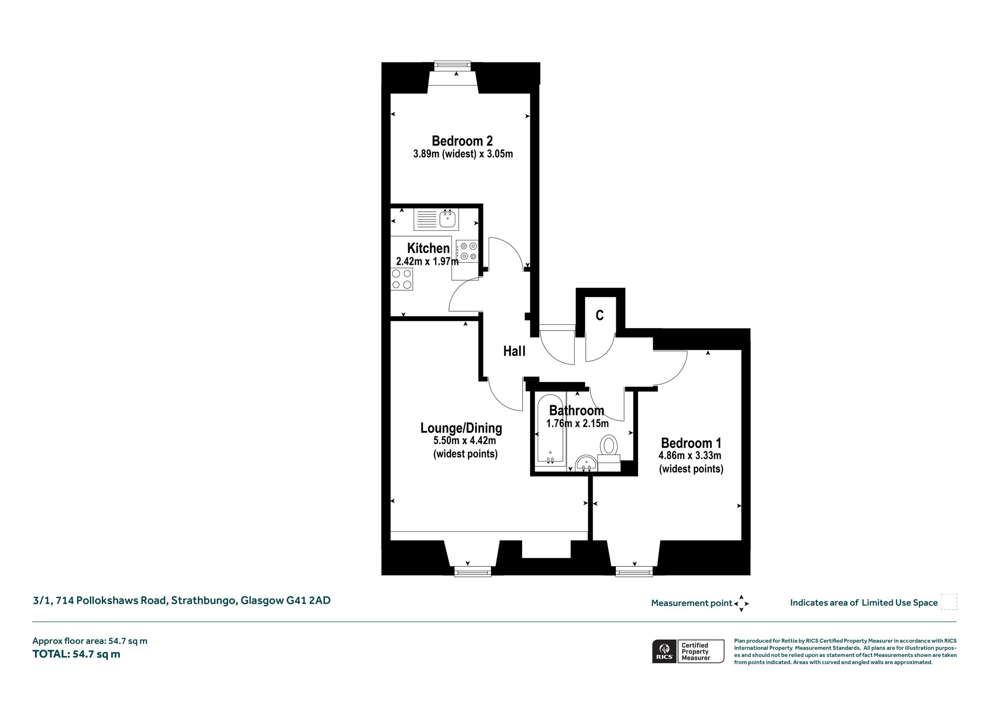
The accommodation of the flat itself comprises welcoming reception hallway with cupboard off, lounge with useful dining area, kitchen with a range of base and wall mounted units and tiled splashback, two double sized bedrooms both of which could be utilised flexibly as home office or study space and tiled bathroom with white three piece suite and over-bath electric shower.
The property also benefits from double glazing, electric heating, high quality floor coverings and a modern, neutral decor throughout. Externally there is an incredibly impressive and mature communal rear garden.
Strathbungo has become one of the most sought-after pockets to be found anywhere in Glasgow. It has a truly welcoming community spirit and The Strathbungo Society hosts a range of cultural events such as Bungo in the Backlanes, Bungo at the Bells and the hugely popular Window Wanderland. The diverse mix of bars, cafes and eateries make it enormously popular and, with this property, they are right around the corner. There are also excellent transport links nearby including numerous bus routes on Pollokshaws Road and Pollokshields West train station a short distance away. Queen's Park train station, which is the closest train station, is also a matter of minutes away.
More Details
Situation: Communal Garden
Council Tax Band: B
Tenure: Freehold
Your home may be repossessed if you do not keep up repayments on your mortgage. There may be a fee for mortgage advice. The actual amount you pay will depend upon your circumstances.
Similar Properties
Looking To Sell Or Let?
Rettie is one of the most trusted and well-respected names in property. Our unrivalled market knowledge helps people from around the world buy, sell, let and develop property in Scotland and the North East of England - from city apartments and rural cottages to large townhouses and prime country homes, farms and estates. We deal with some of the most prestigious properties on the market, but provide the same exceptional standards of service and value for money to all our clients.
