Property Description
Fixed Price Below Home Report Value
A delightful one bedroomed, ground floor flat situated in the heart of Shawlands.
This red sandstone tenement building is accessed via secure door entry system into a well-kept communal close.
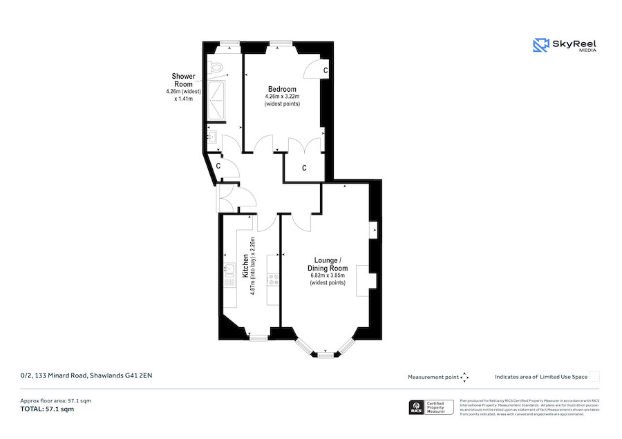
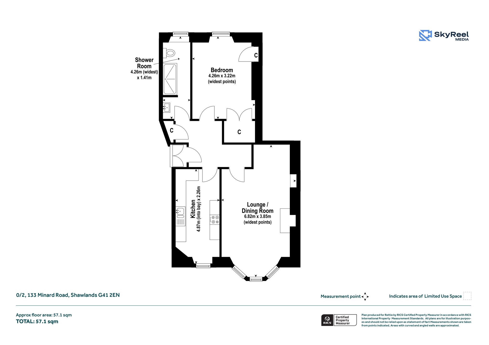
The accommodation of the flat itself comprises welcoming reception hallway with cupboard off, bay windowed lounge with cornicing and feature fireplace, breakfasting sized kitchen with a range of base and wall mounted units and tiled splashback, double sized bedroom with impressive walk-in wardrobes off and modern wet walled shower room with white two piece suite, vanity unit and separate walk-in shower with glass screen.
The property also benefits from double glazing, gas central heating, high quality floor coverings and a modern, contemporary decor throughout.
Shawlands is considered by many to be the "brunch capital" of Glasgow. While the brunch spots are excellent and numerous, there are also a wide range of other amenities including restaurants, bars, parks and much more. This flat is perfectly situated to enjoy everything that Shawlands has to offer, including Queens Park at the end of the street as well as excellent transport links with Crossmyloof station across the street.
More Details
Situation: Private Garden
Council Tax Band: C
Tenure: Contact Branch
Your home may be repossessed if you do not keep up repayments on your mortgage. There may be a fee for mortgage advice. The actual amount you pay will depend upon your circumstances.
Similar Properties
Looking To Sell Or Let?
Rettie is one of the most trusted and well-respected names in property. Our unrivalled market knowledge helps people from around the world buy, sell, let and develop property in Scotland and the North East of England - from city apartments and rural cottages to large townhouses and prime country homes, farms and estates. We deal with some of the most prestigious properties on the market, but provide the same exceptional standards of service and value for money to all our clients.
