Property Description
Fernleigh Road is set within an admired and popular location; this mid terraced, 3 bedroom Villa, is of a style rarely available on the market. It offers spacious accommodation with the home being upgraded to an exacting standard throughout. The home is tastefully decorated with modern neutral décor, with the highlight being a fantastic, bespoke kitchen complete with breakfast bar and patio doors on to garden.
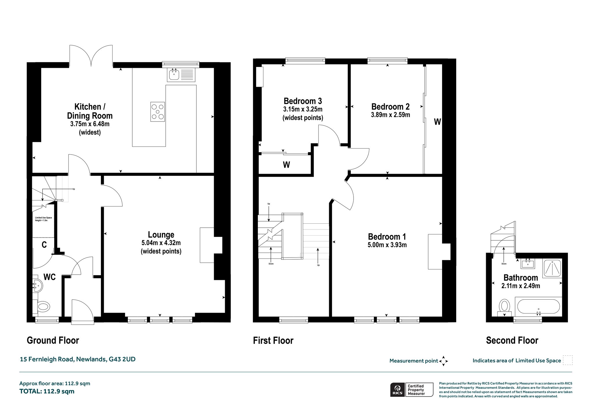
Internally, the property extends to; entrance vestibule, broad hallway with WC off, a staircase sweeping to upper level.
Off Hallway, the formal sitting room is a bright, generous room with beautiful feature fireplace, complete with a three window formation ensuring a good degree of natural light. The dining room and kitchen are to the rear and benefits from an open plan formation, complete with breakfast bar and patio doors to the rear level garden. The bespoke kitchen has a wonderful range of floor and wall mounted units, integrated appliances, bespoke shelving, feature lighting and Corian worksurfaces.
On to first floor, there is a bright half landing which could be utilised as a study area. The first floor hosts three generous bedrooms (two of which are particularly large doubles complete with built in storage). A further short staircase leads to the well appointed family modern 4 piece bathroom, complete with separate bath, shower and vanity unit.
The property has a system of gas fired central heating, double glazed windows/doors and is finished with fresh modern tones throughout. The garden grounds have been thoughtfully landscaped, being fully enclosed to the rear, with a patio area, which is ideal with al fresco dining. The home also benefits from generous driveway for parking.
Local Area
The property is positioned within walking distance of shops and amenities upon both Clarkston Road and Fenwick Road where thriving coffee shops, restaurants and delicatessens can be found. More extensive amenities are available the Sainsburys Local at Muirend, the Morrisons store at Giffnock or Newlands and The Avenue shopping mall in Newton Mearns. The shopping mall at Silverburn is a short drive to the West.
Recreational pursuits are varied namely at Newlands Park (Dandelion Café), Queens Park and Pollok Country Park where Pollok House and the world famous Burrell collection can be found, also Bellahouston Ski and Sports centre.
More Details
Situation: Private Garden
Council Tax Band: E
Tenure: Freehold
Your home may be repossessed if you do not keep up repayments on your mortgage. There may be a fee for mortgage advice. The actual amount you pay will depend upon your circumstances.
Similar Properties
Looking To Sell Or Let?
Rettie is one of the most trusted and well-respected names in property. Our unrivalled market knowledge helps people from around the world buy, sell, let and develop property in Scotland and the North East of England - from city apartments and rural cottages to large townhouses and prime country homes, farms and estates. We deal with some of the most prestigious properties on the market, but provide the same exceptional standards of service and value for money to all our clients.
