19 Marywood Square, Strathbungo, Glasgow, G41 2BW
Property Description
A exquisite blonde sandstone townhouse situated in the heart of Strathbungo.
This gorgeous home offers generous family accommodation over three levels that has undergone extensive refurbishment under the current owner. A must for viewing in order to be appreciated.
The house is approached via landscaped front garden with pathway and steps leading to the front double storm doors and entrance vestibule.
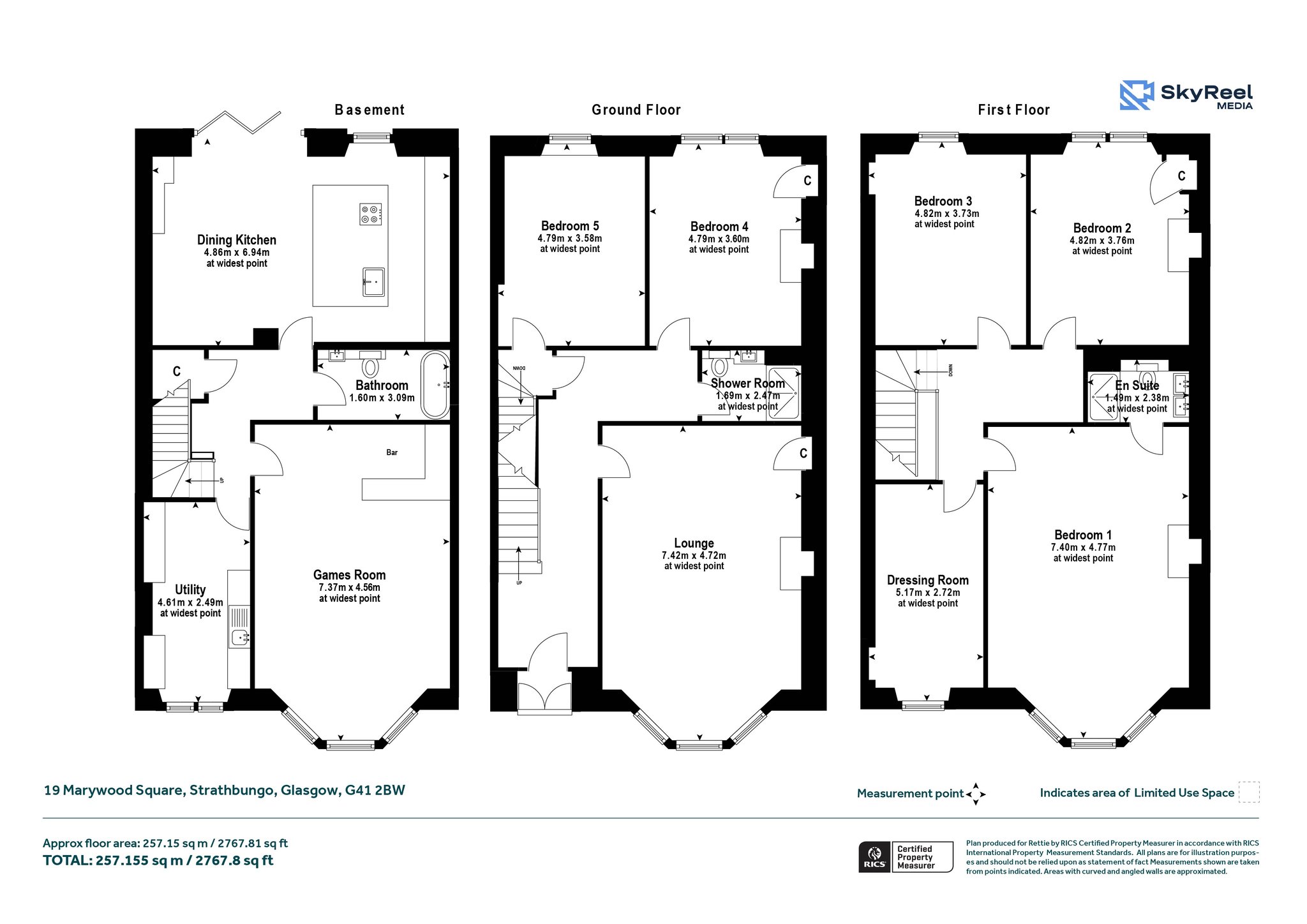
The accommodation of the house itself comprises welcoming reception hallway with tiled floor, beautiful bay windowed lounge with tiled feature fireplace, cornice detailing and painted floorboards, tiled shower room with two piece suite, heated towel rail and separate walk-in shower with glass screen and bedrooms four and five, both of which can be utilised very flexibly.
On the garden level there is a gorgeous dining sized kitchen with a range of high quality integrated appliances, base and wall mounted units, island and granite worktop, dining area with bi-folding doors out to the rear garden, fabulous bay windowed games room with bar area, tiled bathroom with white two piece suite and standalone bath and very useful utility room.
The first floor accommodation comprises beautiful bay windowed bedroom one with cornice and feature fireplace, along with tiled en-suite shower room off with twin wash hand basin, vanity unit and separate walk-in shower, dressing room and two more double sized bedrooms.
The property also benefits from double glazing, gas central heating, high quality floor coverings and a modern, contemporary decor throughout. Externally there is the aforementioned front garden and an incredible rear garden with tiled patio, separate seating area with artificial grass and parking space with electrically operated gate giving access. There is also planning permission in place to convert the attic to create an additional bedroom, cinema, office and bedroom.
Strathbungo has become one of the most sought-after pockets to be found anywhere in Glasgow. The eclectic mix of bars, cafes and eateries make it enormously popular and with this house you have them around the corner. There are also excellent transport links nearby including numerous bus routes on Pollokshaws Road and Queens Park train station a short distance away. Queens Park itself is across the street.
More Details
Situation: Private Garden
Council Tax Band: G
Tenure: Freehold
Your home may be repossessed if you do not keep up repayments on your mortgage. There may be a fee for mortgage advice. The actual amount you pay will depend upon your circumstances.
Similar Properties
Looking To Sell Or Let?
Rettie is one of the most trusted and well-respected names in property. Our unrivalled market knowledge helps people from around the world buy, sell, let and develop property in Scotland and the North East of England - from city apartments and rural cottages to large townhouses and prime country homes, farms and estates. We deal with some of the most prestigious properties on the market, but provide the same exceptional standards of service and value for money to all our clients.
