Property Description
A beautiful and rarely available double upper conversion with private rear garden space, situated in this quiet yet convenient pocket of Langside.
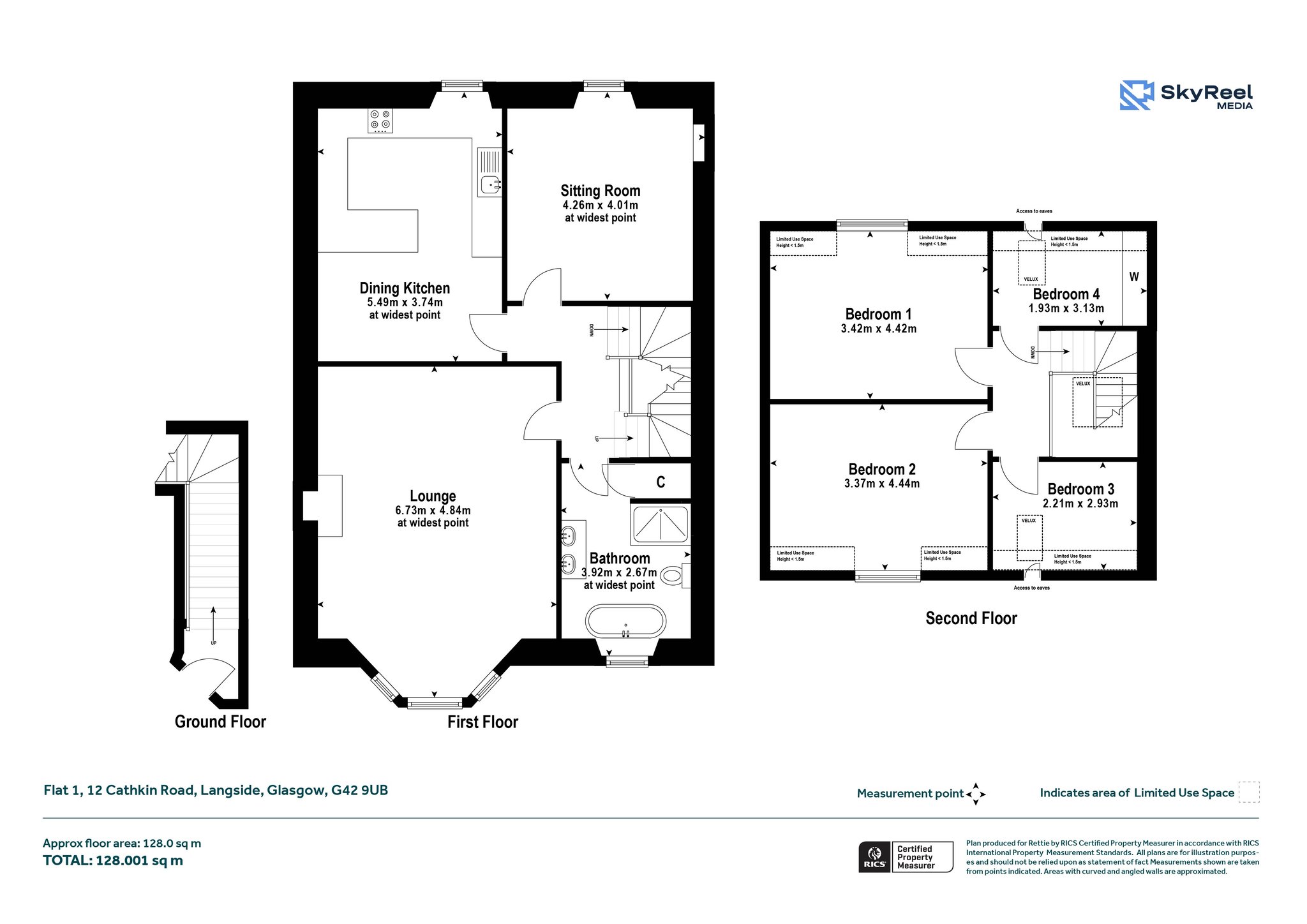
The property is approached via pathway leading to the communal entrance with access to the property on the right.
The accommodation of the flat itself comprises private stairwell, leading to the first floor landing, stunning bay windowed with cornicing and feature fireplace, expansive dining kitchen with a range of integrated appliances, base and wall mounted units, breakfast bar and ample space for dining table and chairs, sitting room that could easily be utilised as a home office or an additional bedroom and fabulous tiled bathroom with twin wash hand basin, standalone bath and separate walk-in shower.
Upstairs there are two generously sized double bedrooms and two single bedrooms, one of which is utilised as a home office and another used as a dressing room.
The property also benefits from double glazing, gas central heating, high quality floor coverings, a range of period features and a modern, contemporary decor throughout. Externally there is a private rear garden space that has separate lawn and patio space.
Langside is an immensely popular area in the Southside of Glasgow with a range of nearby transport links, amenities and schooling, with Battlefield Primary School at the end of the street and Queens Park only around the corner. Shawlands and Strathbungo are both within walking distance and the area offers a wide selection of local shops, salubrious bars, restaurants and cafes.
More Details
Situation: Private Garden
Council Tax Band: D
Tenure: Freehold
Your home may be repossessed if you do not keep up repayments on your mortgage. There may be a fee for mortgage advice. The actual amount you pay will depend upon your circumstances.
Similar Properties
Looking To Sell Or Let?
Rettie is one of the most trusted and well-respected names in property. Our unrivalled market knowledge helps people from around the world buy, sell, let and develop property in Scotland and the North East of England - from city apartments and rural cottages to large townhouses and prime country homes, farms and estates. We deal with some of the most prestigious properties on the market, but provide the same exceptional standards of service and value for money to all our clients.

