Flat 1/2, 81 Nithsdale Drive, Strathbungo, Glasgow, G41 2PT
Property Description
*Closing date Tuesday the 28th of April at 2.00pm*
Set within a handsome blonde sandstone tenement in the heart of Strathbungo, this bright and beautifully proportioned two-bedroom first floor flat offers an appealing blend of period character and modern comfort.
The property enjoys lovely traditional cornicing, feature fireplaces, tall ceilings and large windows throughout, creating a light and uplifting atmosphere in every room
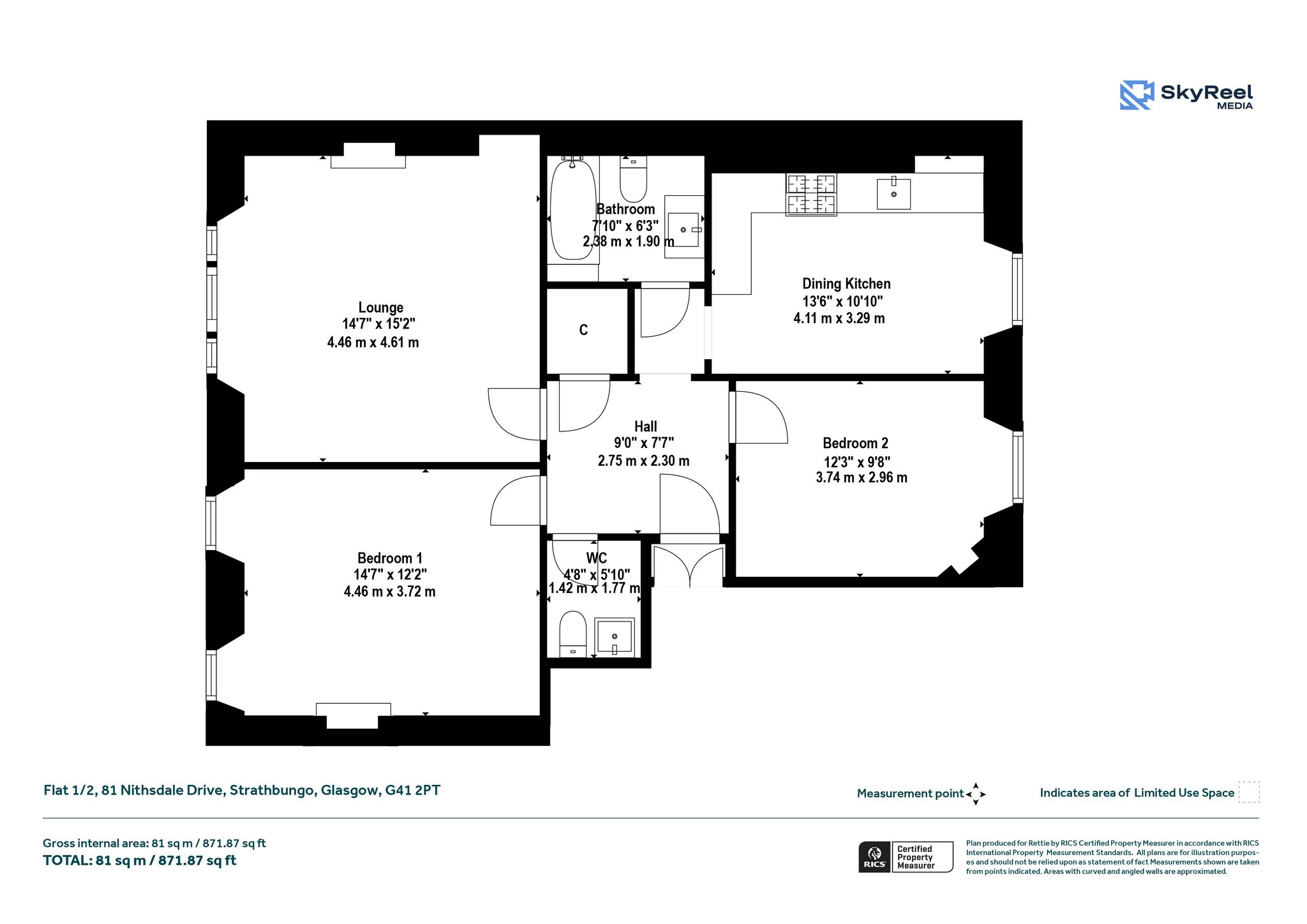
The accommodation begins with a welcoming reception hallway with excellent storage. The impressive lounge sits to the front and benefits from generous proportions and strikingly large windows that allow natural light to pour in, enhancing the sense of space. To the rear, the dining kitchen provides a superb everyday living and entertaining area, offering ample room for a dining table alongside well-planned worktops and cabinetry.
There are two well sized bedrooms, including a particularly spacious principal bedroom with excellent floor space for additional furnishings. The second bedroom is well proportioned and can also be used as a guest room, home office or nursery. A modern bathroom and a separate WC add further convenience, while the layout as a whole offers flexibility.
The property is further enhanced by gas central heating, a well kept communal garden and secure communal bike storage in the basement.
The property enjoys a superb position within the highly sought-after Strathbungo conservation area, known for its beautiful sandstone architecture, leafy streets and vibrant community atmosphere. A wide range of cafes, restaurants, bars and independent shops can be found along nearby Nithsdale Road and Pollokshaws Road, while Shawlands and the wider Southside amenities are only a short walk away. Excellent transport links are available, with Pollokshields West and Queens Park stations both within easy reach, providing quick access to Glasgow City Centre. The area also benefits from close proximity to Queen’s Park, offering attractive green space, walking routes and leisure facilities.
More Details
Situation: Communal Garden
Council Tax Band: C
Tenure: Freehold
Your home may be repossessed if you do not keep up repayments on your mortgage.
There may be a fee for mortgage advice. The actual amount you pay will depend upon your circumstances. The fee is up to 1% but a typical fee is 0.3% of the amount borrowed.
Similar Properties
Looking To Sell Or Let?
Rettie is one of the most trusted and well-respected names in property. Our unrivalled market knowledge helps people from around the world buy, sell, let and develop property in Scotland and the North East of England - from city apartments and rural cottages to large townhouses and prime country homes, farms and estates. We deal with some of the most prestigious properties on the market, but provide the same exceptional standards of service and value for money to all our clients.
