Property Description
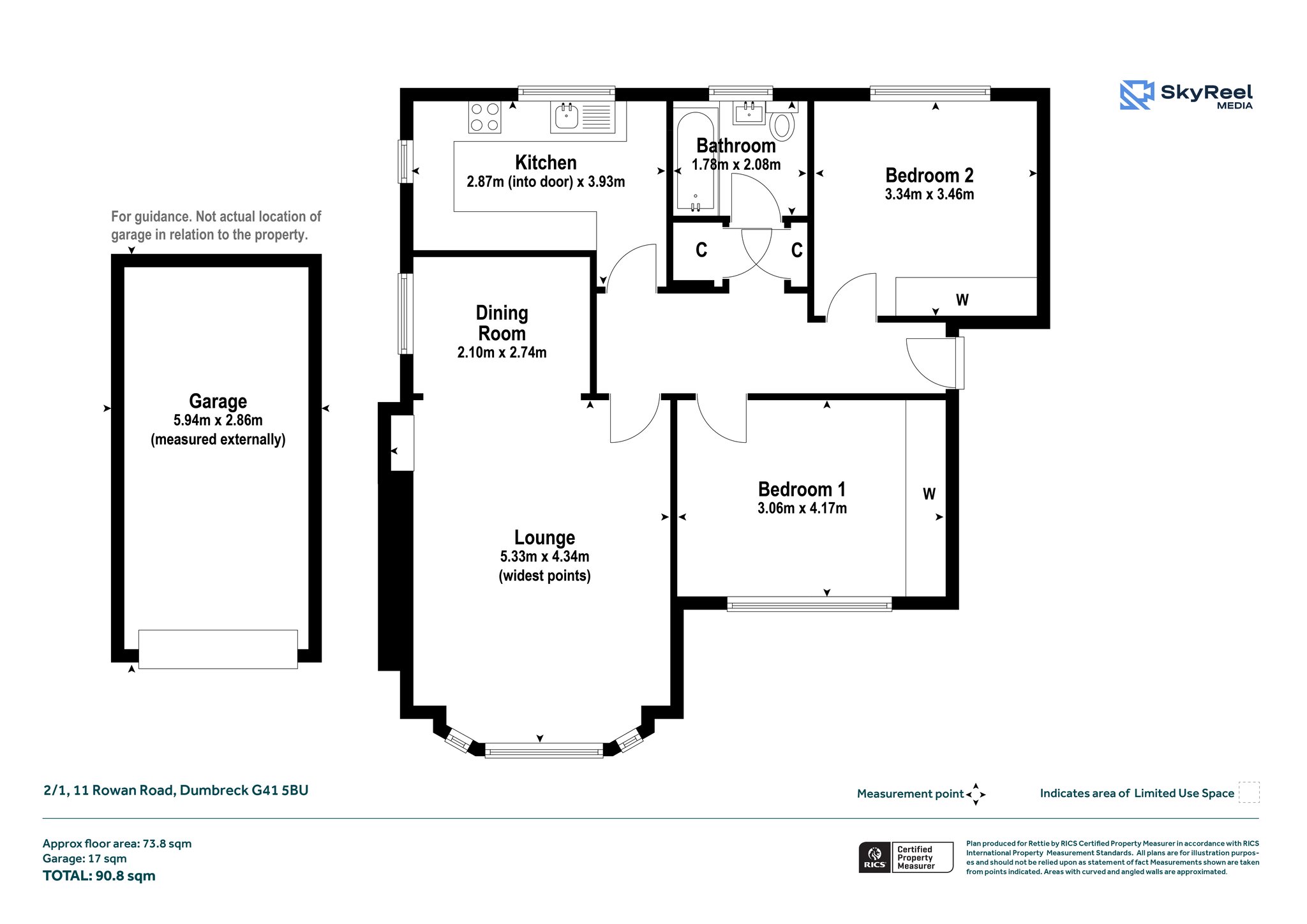
Fabulous, two-bedroom, second floor flat set within a very popular pocket on Rowan Road, Dumbreck.
This freshly presented flat affords generous accommodation and benefits from excellent storage throughout and is conveniently located to local amenities and transport links.
Accessed via a secure door entry system, the property opens on to a welcoming, bright reception hallway. A large lounge complete with bay window is open-plan on to dining area which enjoys a dual-aspect window to the front and side, providing bright natural light. Off hallway to the rear of the flat is a fitted kitchen complete with floor and wall mounted units with views over rear garden.
There are two well-proportioned double sized bedrooms, with the generous principal bedroom benefiting from an inbuilt wardrobe. Finally, a freshly presented, modern three-piece bathroom complete with bath, completes the overall accommodation.
Further features are electric heating, double glazing, and a private garage. In addition, there is a beautifully maintained shared garden to the rear.
Situated in a sought-after Southside address, the property offers easy access to local shops, cafés, restaurants, excellent public transport links, and attractive green spaces.
More Details
Situation: Communal Garden
Council Tax Band: D
Tenure: Freehold
Your home may be repossessed if you do not keep up repayments on your mortgage.
There may be a fee for mortgage advice. The actual amount you pay will depend upon your circumstances. The fee is up to 1% but a typical fee is 0.3% of the amount borrowed.
Similar Properties
Looking To Sell Or Let?
Rettie is one of the most trusted and well-respected names in property. Our unrivalled market knowledge helps people from around the world buy, sell, let and develop property in Scotland and the North East of England - from city apartments and rural cottages to large townhouses and prime country homes, farms and estates. We deal with some of the most prestigious properties on the market, but provide the same exceptional standards of service and value for money to all our clients.
