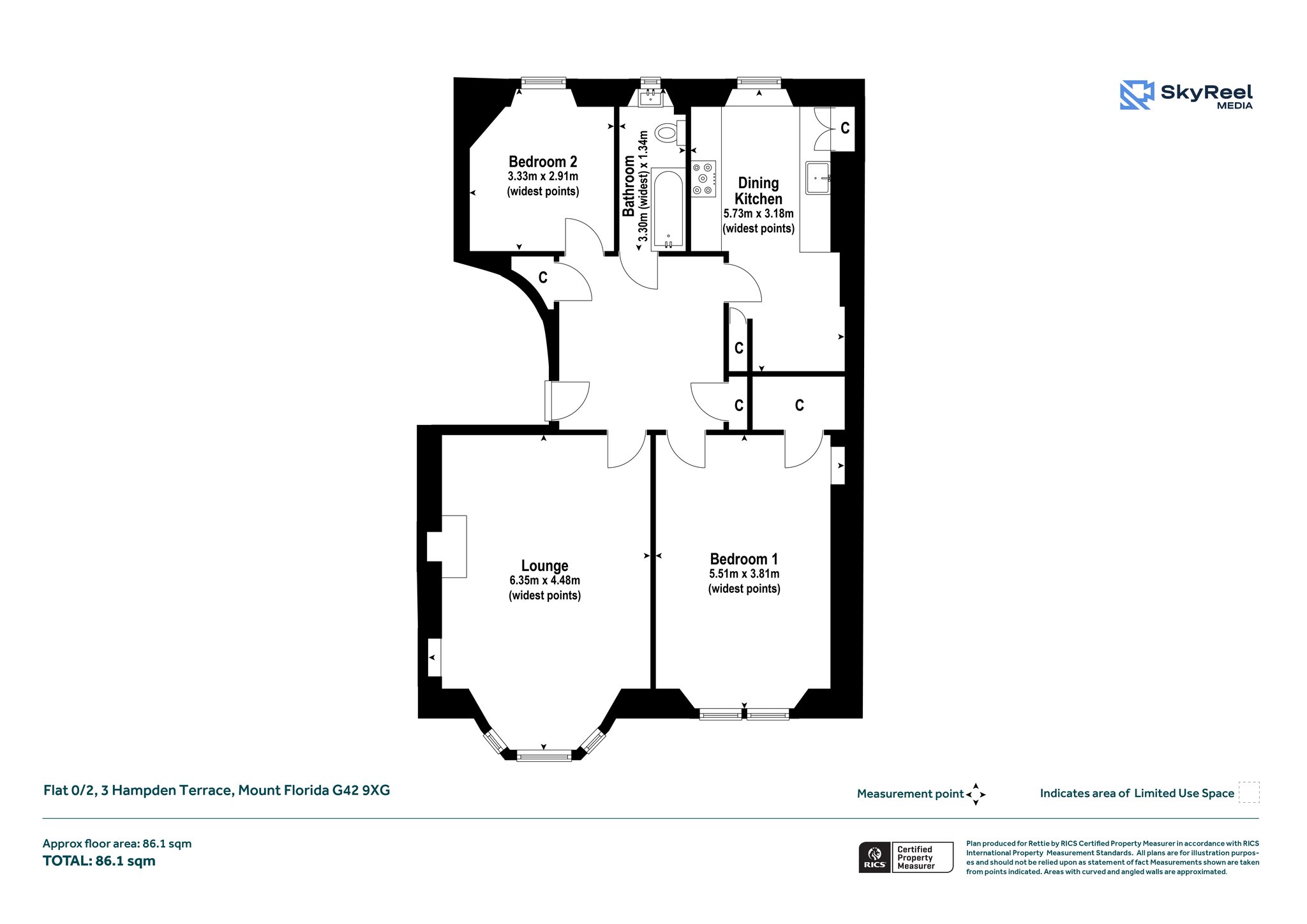
Flat 0/2, 3 Hampden Terrace, Mount Florida, Glasgow, G42 9XG
Property Description
A beautiful two bedroomed, ground floor flat with some of the finest views the Southside of Glasgow has to offer, combined with your own private front garden.
Situated on Hampden Terrace, perhaps Mount Florida's most prestigious street, this sizeable flat offers generous accommodation and a range of period features. A must for viewing in order to be appreciated.
This blonde sandstone tenement building is accessed via secure door entry system into a well-kept communal close.
The accommodation of the flat itself comprises sizeable reception hallway with two cupboards off, gorgeous bay windowed lounge with cornicing and feature fireplace, stunning dining sized kitchen with a range of base mounted units, tiled splashback, bespoke window seat and dining recess, double sized bedroom one with cornicing and large walk-in cupboard off, second double sized bedroom that could also be utilised as a home office or study and a bathroom with white three piece suite and over bath shower.
The property also benefits from double glazing, gas central heating, high quality floor coverings and a range of period features including cornicing, original doors and functioning shutters. There is also a private front garden space, along with a communal rear garden.
Hampden Terrace is situated in Mount Florida which has an impressive number of local amenities and transport links. These include independent shops, art studio and popular restaurants and eateries including the likes of Cafe Salmagundi, Bucks Bar and Hooked. As well as frequent bus and rail services, Mount Florida is extremely well placed for commuting access to the M77 and M8.
The beautiful Queens Park is nearby, which hosts a number of community events throughout the year and has a tennis club, glasshouses and extensive views across the city and beyond.
More Details
Situation: Private Garden
Council Tax Band: C
Tenure: Freehold
Your home may be repossessed if you do not keep up repayments on your mortgage. There may be a fee for mortgage advice. The actual amount you pay will depend upon your circumstances.
Similar Properties
Looking To Sell Or Let?
Rettie is one of the most trusted and well-respected names in property. Our unrivalled market knowledge helps people from around the world buy, sell, let and develop property in Scotland and the North East of England - from city apartments and rural cottages to large townhouses and prime country homes, farms and estates. We deal with some of the most prestigious properties on the market, but provide the same exceptional standards of service and value for money to all our clients.
