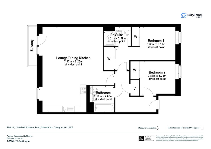
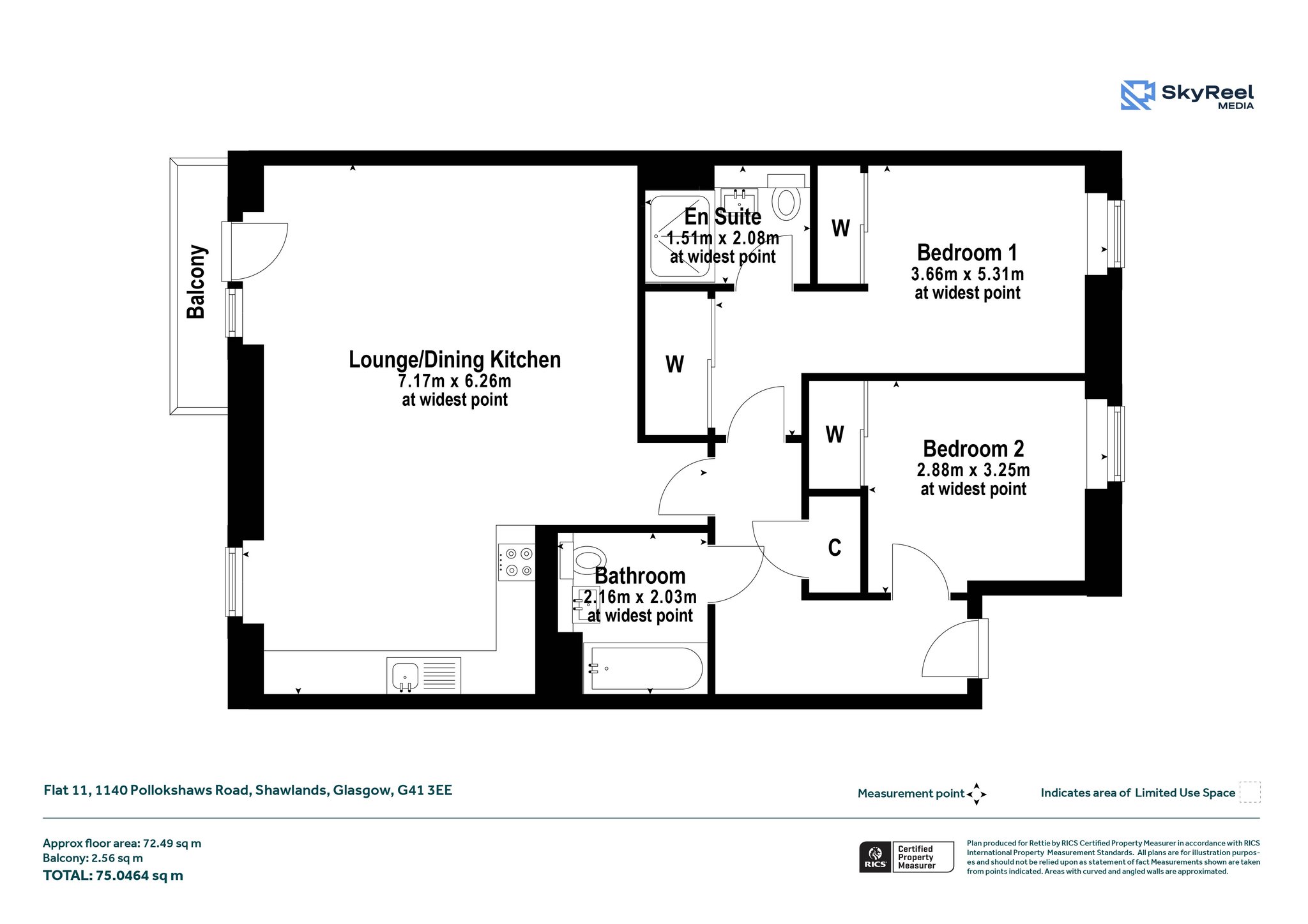
Flat 11, 1140 Pollokshaws Road, Shawlands, Glasgow, G41 3EE
Property Description
This exceptional two-bedroom apartment is presented to the market in true walk-in condition within the popular Waverley Park Apartments development.
Located in the heart of Shawlands, this impressive third-floor modern flat offers high-quality finishes throughout, a private balcony and enjoys open aspects over the local bowling green.
The building is accessed via a secure entry system into a well-maintained, carpeted communal hallway, with both lift and stair access available to all floors. Internally, a generous reception hall provides access to all apartments. The bright and spacious open-plan lounge and kitchen area is positioned to take full advantage of the pleasant outlook, with direct access to the private balcony. The décor is tastefully finished throughout and complemented by quality flooring and a cohesive, stylish interior.
There are two well-proportioned double bedrooms, both benefitting from fitted wardrobes, with the principal bedroom enjoying a stylish en-suite shower room. The current owners have further enhanced the property with elegant ceiling coving and bespoke built-in shelving and drawer units fitted within the bedroom wardrobes, adding practical storage. The accommodation is completed by a contemporary three-piece family bathroom, finished to a high standard.
Further features include gas central heating, double glazing, private residents’ parking with an electric car charging point, bike store, lift access, and a communal roof terrace which captures the evening sun and offers far-reaching views towards Ben Lomond.
Shawlands is widely regarded as one of Glasgow’s most vibrant neighbourhoods, renowned for its excellent selection of cafés, restaurants, bars, and independent shops. The property is ideally placed to take full advantage of all the area has to offer, with Queens Park just a short stroll away and excellent transport links nearby, including Pollokshaws East and Crossmyloof train stations.
More Details
Situation: Contact branch
Council Tax Band: E
Tenure: Freehold
Your home may be repossessed if you do not keep up repayments on your mortgage.
There may be a fee for mortgage advice. The actual amount you pay will depend upon your circumstances. The fee is up to 1% but a typical fee is 0.3% of the amount borrowed.
Similar Properties
Looking To Sell Or Let?
Rettie is one of the most trusted and well-respected names in property. Our unrivalled market knowledge helps people from around the world buy, sell, let and develop property in Scotland and the North East of England - from city apartments and rural cottages to large townhouses and prime country homes, farms and estates. We deal with some of the most prestigious properties on the market, but provide the same exceptional standards of service and value for money to all our clients.
