66 Durward Avenue, Waverley Park, Glasgow, G41 3UE
Property Description
An exceptional mid-terraced villa situated in the heart of Waverley Park.
Offering generous accommodation over two levels that is in excellent condition; a must for viewing in order to be appreciated.
The house is approached via pathway, flanked by lawned front garden leading to the front door and entrance vestibule.
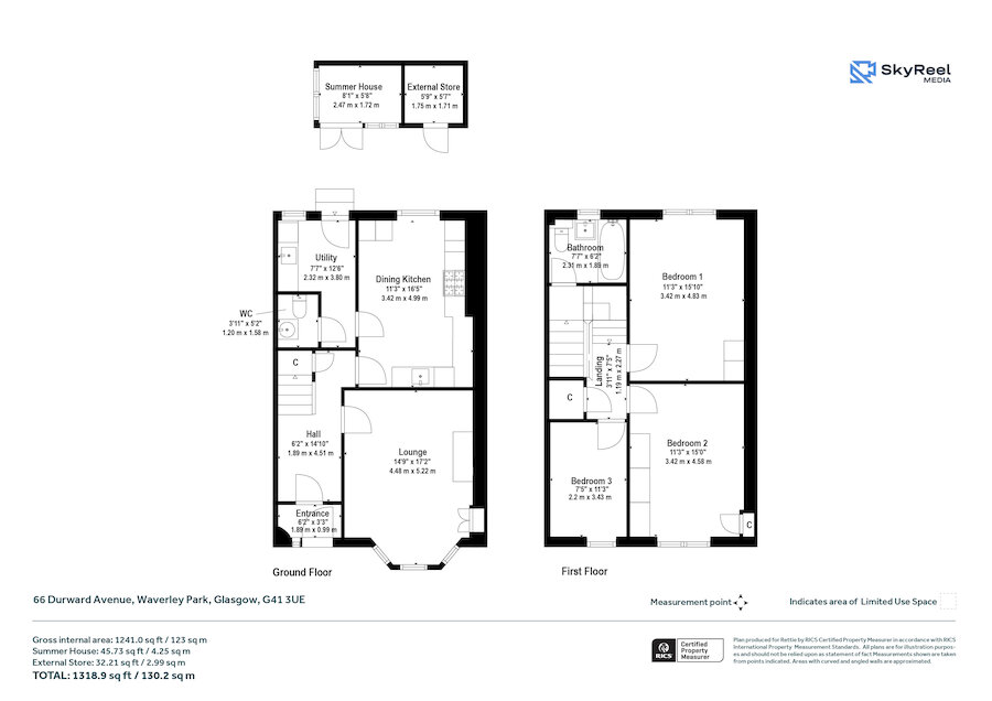
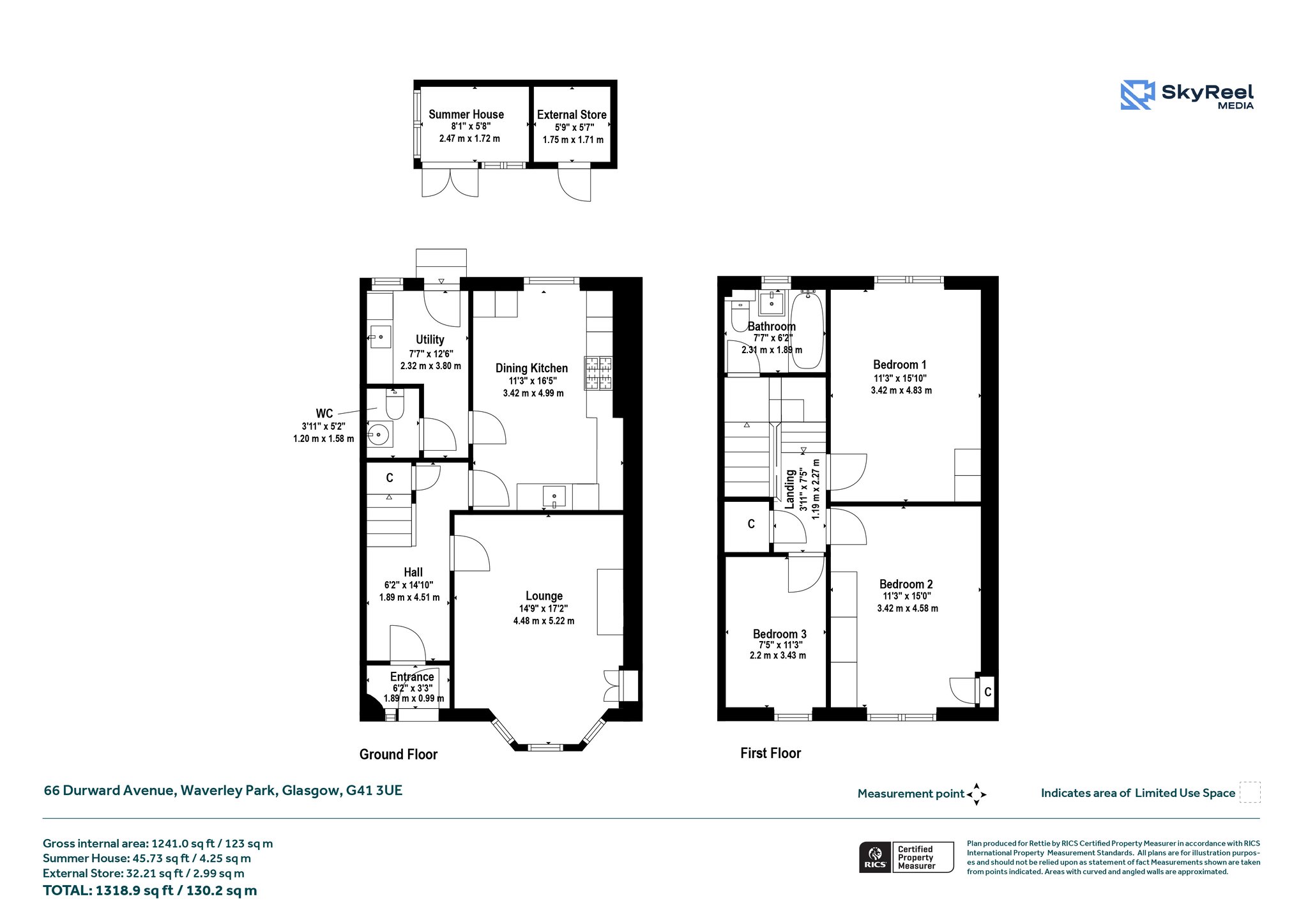
The accommodation of the house itself comprises welcoming reception hallway with understairs cupboard off, beautiful bay windowed lounge with feature fireplace, cornicing and refurbished floorboards, fabulous dining kitchen with a range of integrated appliances, base and wall mounted units, tiled splashback and ample space for dining table and chairs, incredibly useful utility room with Belfast style sink, wooden worktop and tiled splashback and delightful W.C. with two piece suite and heated towel rail.
Upstairs the accommodation comprises three bedrooms, all of which could be utilised very flexibly and a tiled bathroom with white three piece suite and electric shower.
The property also benefits from double glazing, gas central heating, high quality floor coverings and a modern, stylish decor throughout.
Externally there is a the aforementioned front garden, along with a landscaped rear garden with patio and lawn, along with a summer house and external store.
Waverley Park is incredibly well situated with Shawlands on its doorstep. Shawlands is considered by many to be the "brunch capital" of Glasgow. While the brunch spots are excellent and numerous, there are also a wide range of other amenities including restaurants, bars, parks and much more. This house is perfectly situated to enjoy everything that Shawlands has to offer, including excellent transport links with Shawlands Train Station very close by. Beautiful Pollok Park and Queen's Park are both within short walking distances.
More Details
Situation: Private Garden
Council Tax Band: E
Tenure: Freehold
Your home may be repossessed if you do not keep up repayments on your mortgage.
There may be a fee for mortgage advice. The actual amount you pay will depend upon your circumstances. The fee is up to 1% but a typical fee is 0.3% of the amount borrowed.
Similar Properties
Looking To Sell Or Let?
Rettie is one of the most trusted and well-respected names in property. Our unrivalled market knowledge helps people from around the world buy, sell, let and develop property in Scotland and the North East of England - from city apartments and rural cottages to large townhouses and prime country homes, farms and estates. We deal with some of the most prestigious properties on the market, but provide the same exceptional standards of service and value for money to all our clients.
