Property Description
An excellent two bedroomed, first floor flat situated in this prestigious and convenient pocket of Pollokshields.
The building is accessed via secure door entry system into a well-kept communal close and stairwell.
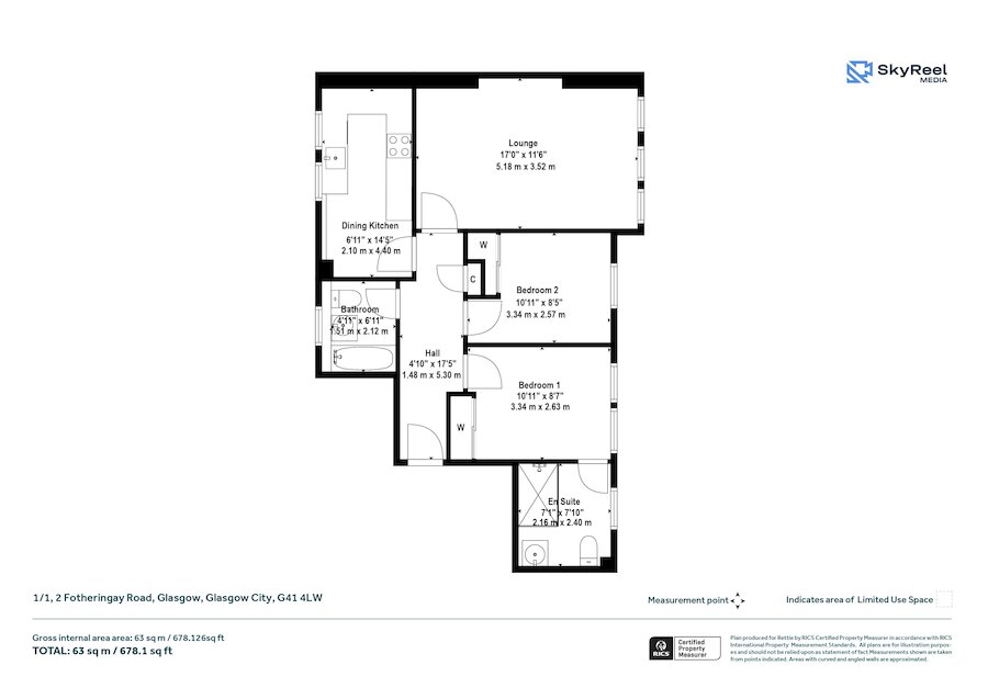
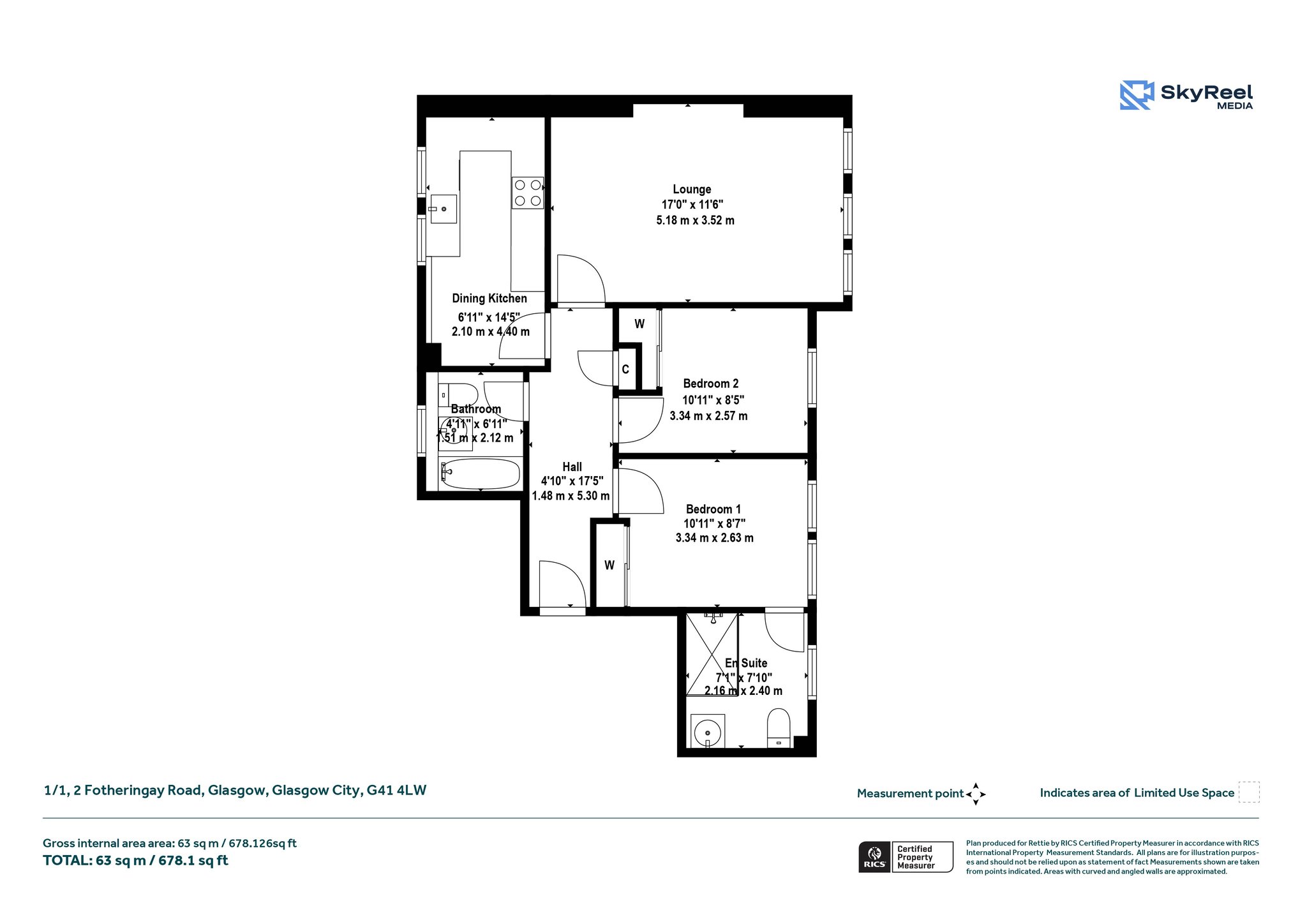
The accommodation of the flat itself comprises welcoming reception hallway with cupboard off, spacious lounge with open aspect, newly fitted kitchen with a range of integrated appliances, base and wall mounted units and space for small table and chairs, two double sized bedrooms, both with integrated wardrobes with bedroom one enjoying an en-suite shower room off with two piece suite and separate walk-in shower and bathroom with white three piece suite.
The property also benefits from double glazing, gas central heating, quality floor coverings and a neutral decor throughout.
Externally there are communal rear gardens and residents parking.
Pollokshields is one of the most popular areas anywhere in the West of Scotland. The combination of amenities and transport links are second to none. There is a particularly impressive range of restaurants, bars and cafes in Pollokshields itself as well as nearby Strathbungo and Shawlands all within walking distance. The position of the property is also extremely convenient for easy access to Glasgow City Centre by any number of methods including by bike, car, train, bus or subway.
More Details
Situation: Communal Garden
Council Tax Band: E
Tenure: Freehold
Your home may be repossessed if you do not keep up repayments on your mortgage.
There may be a fee for mortgage advice. The actual amount you pay will depend upon your circumstances. The fee is up to 1% but a typical fee is 0.3% of the amount borrowed.
Similar Properties
Looking To Sell Or Let?
Rettie is one of the most trusted and well-respected names in property. Our unrivalled market knowledge helps people from around the world buy, sell, let and develop property in Scotland and the North East of England - from city apartments and rural cottages to large townhouses and prime country homes, farms and estates. We deal with some of the most prestigious properties on the market, but provide the same exceptional standards of service and value for money to all our clients.
