Property Description
Beautifully presented three-bedroom bungalow in peaceful residential setting within easy reach of St Andrews town centre
Stunning three-bedroom bungalow
High-spec and luxurious fixtures and finishes
Elegant interior design throughout
Front and rear gardens, driveway, and garage
Walking distance of local amenities and schooling
A three-minute drive from St Andrews town centre, golf courses, beach, and the university
More Details
EPC Rating - C 
Council Band - E
Tenure - Freehold
Property Details & Description
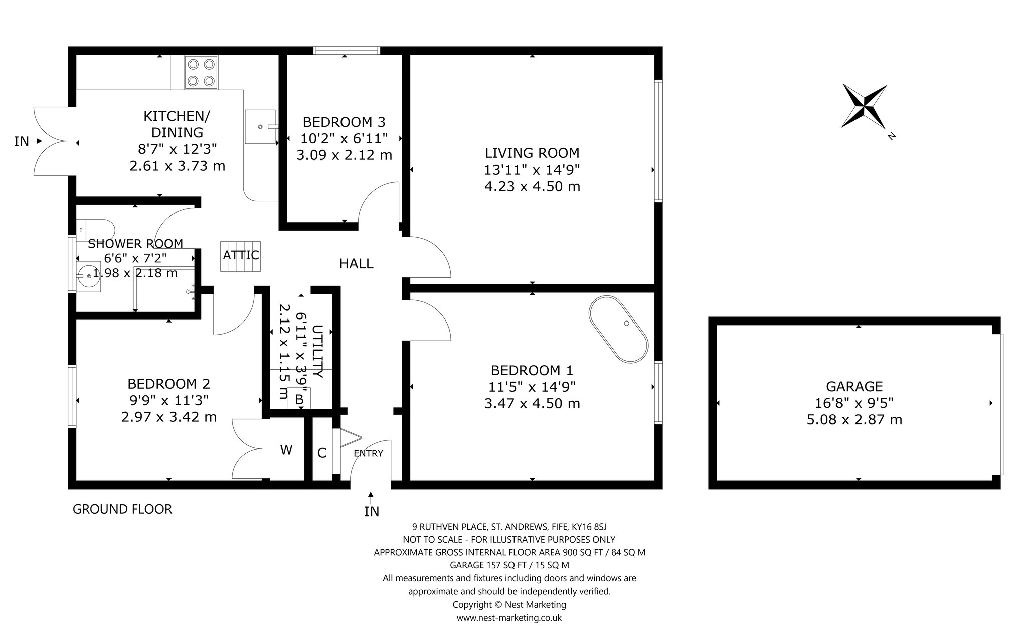
Accommodation
GROUND FLOOR
Entrance hallway, living room, dining kitchen, utility, three bedrooms, shower room
Attic
EXTERIOR
Front and rear gardens
Driveway and detached garage
Situation
Ruthven Place is peacefully situated in a popular residential setting within walking distance of schooling and local amenities and a three-minute drive from the heart of historic St Andrews, Scotland’s world-famous home of golf and the site of the country's oldest university. A bustling and charming seaside town catering to students, golfers, and residents alike, there is an array of shops and amenities to meet daily needs. These include boutique and independent retailers selling artisan produce and goods such as St Andrews Bakery, Mitchell’s Delicatessen, and Leuchars Quality Butchers through to well-known high street stores such as Sainsbury’s Local. Other popular retail destinations are Waterstones, Boots, and H&M. The property itself is conveniently situated within walking distance of M&S Food, Morrison’s, and Aldi. Thriving and cosmopolitan bars, restaurants, and cafès sit side-by-side offering fine dining through to casual lunches and drinks. Education at all levels is well-catered for. Positioned on the stunning east coast of Fife, St Andrews is the perfect location from which to explore the characterful fishing villages that make up this scenic part of Scotland including Anstruther, St Monans, Crail, and Pittenweem. Dundee to the north is a thirty-minute drive and Edinburgh to the south is approx. 90 minutes by car or just over an hour by train from Leuchars. 
The ancient and historic town of St Andrews occupies a wonderful position on the east coast of Fife. Surrounded by picturesque countryside, woodlands, and beautiful coastline it offers much for the outdoor enthusiast with pleasant walk and cycle routes minutes away as well as opportunities for sailing, riding and days spent on the beach. There are world-renowned golf courses to enjoy including The Old Course at St Andrews and the Championship Course at Carnoustie. Residents can also discover nearby courses such as those at Kingsbarns, Crail, and Lundin Links. In addition to the breathtaking beach at St Andrews West Sands extending to almost two miles, there are several more to explore nearby such as those at Elie, Tentsmuir, and Kingsbarns, all of which are just a short drive. St Andrews Botanic Gardens, Museum, and Cathedral are just a few of the local attractions to explore and there are several National Trust properties in the area including Kellie Castle and Hill of Tarvit. State schooling is available locally and private options include those at St Leonards in St Andrews and at The High School of Dundee. An efficient bus service connects St Andrews to towns throughout Fife, and there are railway stations at Leuchars, Cupar, Ladybank, and Dundee. Edinburgh International Airport is within reach.
General Description
Beautifully presented with high-spec and luxurious fixtures and finishes, a timeless interior design, and plentiful natural light, this three-bedroom bungalow within easy reach of St Andrews town centre, presents a rare opportunity. A gravel driveway bordering a neat manicured lawn with established plants leads to the front door. Stepping inside, an elegantly decorated hallway sets the tone for the home’s stylish interiors, with warm neutral wall finishes and classic parquet flooring. To the right, a west-facing living room is bathed in natural light from a large picture window overlooking the front garden. Plush carpeting, a serene colour palette, and ambient lighting create a welcoming atmosphere, while the spacious layout allows for versatile furniture arrangements, making it an ideal space to unwind. Across the hallway, a stunning contemporary dining kitchen awaits, featuring French doors that open onto the south-east-facing rear garden. Continuing the parquet flooring from the hallway, the kitchen is adorned with bespoke white cabinetry, accented by gold-effect hardware and sleek white marble-effect worktops. High-spec integrated appliances including a wine fridge, hob, eye-level grill, and oven only enhance the aesthetic appeal. A separate utility room provides additional storage. The principal double bedroom is a luxurious retreat, filled with natural light and decorated in soft, neutral hues. Adding to its indulgence, a freestanding bath offers a spa-like sanctuary within the room. Completing the ground floor accommodation are two light and airy double bedrooms, one with built-in wardrobes, and a stunning design-led shower room featuring a circular countertop washbasin and WC. The property benefits from an attic
EXTERIOR
The beautifully kept gardens include the lush lawn to the front and a landscaped south-east-facing rear garden blending sandstone paving, decorative stones, a lawn and mature hedging.
Ample off-street parking is provided for by the gravel driveway and detached garage.
General Remarks & Information
Viewing
Viewing is strictly by appointment with the selling agents Rettie & Co, 28 Bell Street, St Andrews KY16 9UX. Tel: 01334 237700.
Satellite Navigation
The property’s postcode is KY16 8SJ
Fixtures and Fittings
Only items specifically mentioned in the particulars of sale are included in the sale price.
Entry & Possession
Entry and vacant possession will be by mutual agreement and arrangement.
Services
Mains water, gas, electricity, and drainage.
Local Authority
Fife Council
EPC Rating
C
Council Tax
E
Home Report
A Home Report incorporating a Single Survey, Energy Performance Certificate and Property Questionnaire is available for parties genuinely interested in this property. Please contact us, either by telephone or via the website entry for this property, to request a copy. No charge is made for electronic copies; a paper copy can also be made available from our offices or by post, at a charge of £20 to cover reproduction and administrative costs.
Offers
Offers should be submitted in Scottish Legal Form to the selling agents Rettie & Co at 28 Bell Street, St Andrews KY16 9UX.
Servitude Rights, Burdens & Wayleaves
The property is sold subject to and with the benefit of all servitude rights, burdens, reservations and wayleaves including rights of access and rights of way, whether public or private, light, support, drainage, water and wayleaves for masts, pylons, stays, cable, drains and water, gas and other pipes whether contained in the title deeds or informally constituted and whether or not referred to above.
Particulars and Plans
These particulars and plan are believed to be correct, but they are in no way guaranteed. Any error, omission or misstatement shall not annul the sale or entitle any party to compensation nor in any circumstances give grounds for action at law.?
Websites and Social Media
This property and other properties offered by Rettie & Co can be viewed on our website at www.rettie.co.uk as well as our affiliated websites at www.rightmove.co.uk, www.onthemarket.com and www.thelondonoffice.co.uk. In addition, our social media platforms are facebook.com, RettieTownandCountry, twitter.com, RettieandCo, Instagram and LinkedIn.
Proof and Source of Funds/Anti Money Laundering
Under the HMRC Anti Money Laundering legislation all offers to purchase a property on a cash basis or subject to mortgage require evidence of source of funds. This may include evidence of bank statements/funding source, mortgage or confirmation from a solicitor the purchaser has the funds to conclude the transaction. All individuals involved in the transaction are required to produce proof of identity and proof of address. This is acceptable either as original or certified documents.
Misrepresentations
1. The property is sold with all faults and defects, whether of condition or otherwise and neither the seller nor Rettie & Co, the selling agent, are responsible for such faults and defects, nor for any statement contained in the particulars of the property prepared by the said agent.
2. The Purchaser(s) shall be deemed to acknowledge that he has not entered into contact in reliance on the said statements, that he has satisfied himself as to the content of each of the said statements by inspection or otherwise and that no warranty or representation has been made by the seller or the said agents in relation to or in connection with the property.
3. Any error, omission or misstatement in any of the said statements shall not entitle the purchaser(s) to rescind or to be discharged from this contract, nor entitle either party to compensation or damages nor in any circumstances to give either party any cause for action.
Important Notice
Rettie & Co, Their Clients And Any Joint Agents Give Notice That
1. They are not authorised to make or give any representations or warranties in relation to the property either in writing or by word of mouth. Any information given is entirely without responsibility on the part of the agents or the sellers. These particulars do not form part of any offer or contract and must not be relied upon as statements or representations of fact.
2. Any areas, measurements or distances are approximate. The text, photographs and plans are for guidance only and are not necessarily comprehensive and it should not be assumed that the property remains as photographed. Any error, omission or misstatement shall not annul the sale, or entitle any party to compensation or recourse to action at law. It should not be assumed that the property has all necessary planning, building regulation or other consents, including for its current use. Rettie & Co. have not tested any services, equipment or facilities. Purchasers must satisfy themselves by inspection or otherwise and ought to seek their own professional advice.
3. All descriptions or references to condition are given in good faith only. Whilst every endeavour is made to ensure accuracy, please check with us on any points of especial importance to you, especially if intending to travel some distance. No responsibility can be accepted for expenses incurred in inspecting properties which have been sold or withdrawn.
Your home may be repossessed if you do not keep up repayments on your mortgage. There may be a fee for mortgage advice. The actual amount you pay will depend upon your circumstances.
Similar Properties
Looking To Sell Or Let?
Rettie is one of the most trusted and well-respected names in property. Our unrivalled market knowledge helps people from around the world buy, sell, let and develop property in Scotland and the North East of England - from city apartments and rural cottages to large townhouses and prime country homes, farms and estates. We deal with some of the most prestigious properties on the market, but provide the same exceptional standards of service and value for money to all our clients.
