9 Seatoun Place, Lower Largo, Leven, Fife, KY8 6BL

Lower Largo, Leven, Fife, KY8 6BL
Pin View on map

Offers Over £335,000

House

Terraced House

Bed

3 Bedrooms

Bathroom

2 Bathrooms

Reception

2 Reception Rooms

Tree

Communal Garden

Parking

Off Street Parking

Telephone

Property Description

9 Seatoun Place is a characterful Coastal Home in Lower Largo, Fife – With a sea view and just steps from the beach.

Situated in the beautiful seaside village of Lower Largo in Fife, this charming three-storey terraced house offers flexible and spacious accommodation just moments from the beach and harbour. With three bedrooms, two reception rooms, and generous garden space, 9 Seatoun Place is ideal for families, downsizers or anyone looking for a permanent home or holiday retreat on Scotland’s scenic East Neuk coastline.

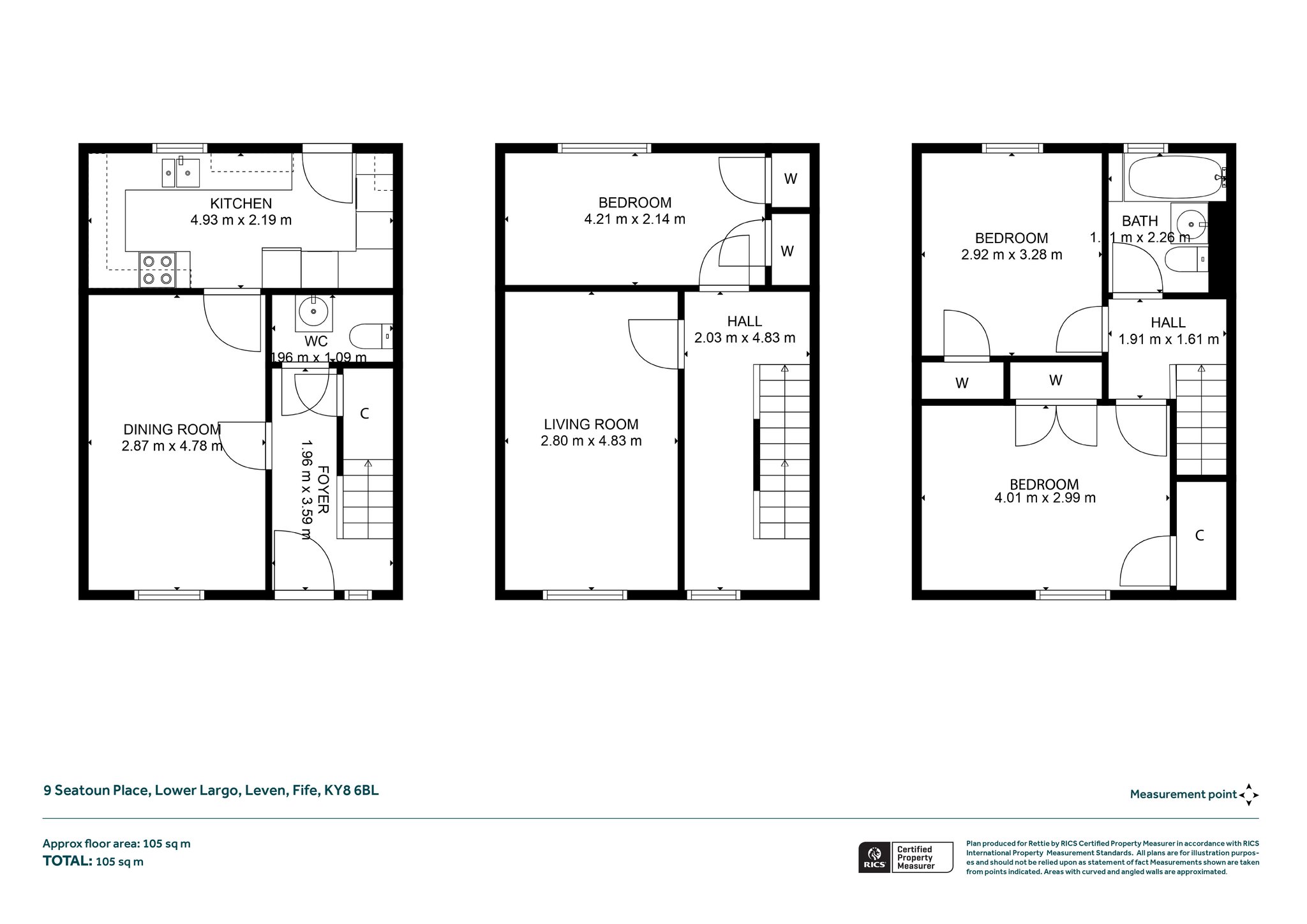
The ground floor features a bright dining room, a well-appointed kitchen, and a convenient downstairs WC. On the first floor is a spacious living room, which could also be used as a fourth bedroom, plus a comfortable double bedroom. The top floor hosts two further double bedrooms and a modern family bathroom. Built-in wardrobes and cupboards provide ample storage throughout.

Externally, the property boasts a private front and side garden, with access to a shared communal green—perfect for enjoying the outdoors. There's also off-street parking directly to the front of the house and additional parking at the rear.

Located just a short walk from the popular Crusoe Hotel and Restaurant, 9 Seatoun Place combines coastal charm with everyday convenience. With good local amenities, excellent transport links, and proximity to world-class golf courses and walking routes, this is a rare opportunity to own a home in one of Fife’s most desirable coastal villages.

More Details

EPC Rating - C
Council Band - D
Tenure - Freehold

Summary of Accommodation

Ground Floor:
Entrance foyer, cloakroom WC, dining room, kitchen.

First Floor:
Hall, reception room/bedroom 4, double bedroom.

Second Floor:
Hall, two further double bedrooms, family bathroom.

External:
Private front and side gardens, shared communal garden area, off-street parking to front and generous parking at the rear.

General Remarks & Information

Fixtures and Fittings:
Only appliances specifically mentioned in the sales particulars are included in the sale price. In all other aspects the treatment of fixtures and fittings within the relevant Conveyancing Standard Clauses apply.

Services:
Gas heating, mains water, electricity, broadband, telephone (subject to telephone providers’ regulations).

Viewing:
By appointment through St Andrews. 28 Bell Street, St Andrews, KY16 9UX. Email: standrews@rettie.co.uk Tel: 01334 237 700

Offers:
Offers should be submitted in Scottish Legal Form to the selling agents Rettie & Co. A closing date by which offers must be submitted may be fixed later. Please note that interested parties are advised to register their interest with the selling agents in order that they may be advised should a closing date be set. The seller reserves the right to accept any offer at any time.

Council Tax Band: D

EPC Rating:C

Postcode: KY8 6BL

Tenure: Freehold

Particulars Prepared: 1st August 2025

Location
Lower Largo is a historic and much-loved Fife coastal village, renowned for its beautiful harbour, golden sandy beach, and welcoming community atmosphere. Located along the famous Fife Coastal Path, it offers the perfect balance of peaceful seaside living and accessibility to nearby towns and cities.

The village is home to the popular Crusoe Hotel and Pub, named after local legend Alexander Selkirk—the inspiration for Robinson Crusoe. Lower Largo is also just a short drive from Leven, Lundin Links, and the world-famous St Andrews, making it ideal for golf enthusiasts and those seeking a vibrant yet tranquil lifestyle.

With excellent transport links to Edinburgh, Dundee, and the Central Belt, the property is well positioned for commuters, second-home owners, and investors alike. Nearby amenities include shops, schools, golf courses, and a wealth of outdoor pursuits such as sailing, hiking, and cycling.

Whether you're looking for a coastal family home, a buy-to-let investment, or a holiday home in Fife, 9 Seatoun Place offers a rare opportunity to secure a flexible and well-located property in one of Scotland’s most picturesque settings.

Request More Details

Caitlin Wishart

Caitlin Wishart

Senior Sales Negotiator
Bob Duncan Cert CII (MP)

Bob Duncan Cert CII (MP)

Managing Director
Cora Johnson

Cora Johnson

Sales Consultant
Mortgage Calculator
Monthly payments
Please set an interest rate.

Your home may be repossessed if you do not keep up repayments on your mortgage.

There may be a fee for mortgage advice. The actual amount you pay will depend upon your circumstances. The fee is up to 1% but a typical fee is 0.3% of the amount borrowed.

Tax Calculator
LBTT calculator for properties purchased in Scotland. Stamp Duty calculator for properties purchased in England.
Land & buildings transaction tax (LBTT)
= £0
New build house with stone and timber cladding

Looking To Sell Or Let?

Rettie is one of the most trusted and well-respected names in property. Our unrivalled market knowledge helps people from around the world buy, sell, let and develop property in Scotland and the North East of England - from city apartments and rural cottages to large townhouses and prime country homes, farms and estates. We deal with some of the most prestigious properties on the market, but provide the same exceptional standards of service and value for money to all our clients.