Lobster Pot Cottage, 30 East Green, Anstruther, Fife, KY10 3AA

30 East Green, Anstruther, Fife, KY10 3AA
Pin View on map

Offers Over £395,000

House

Detached House

Bed

3 Bedrooms

Bathroom

1 Bathroom

Reception

2 Reception Rooms

Tree

Private Garden

Parking

On Street/Permit

Telephone

Property Description

Lobster Pot Cottage is a highly appealing detached coastal cottage, enviably positioned on East Green in the heart of the picturesque fishing village of Anstruther. Enjoying truly exceptional panoramic views across the Firth of Forth to the Isle of May, Bass Rock and the open sea beyond, the property offers an outstanding opportunity to acquire a home in one of the East Neuk’s most sought-after coastal settings.

The cottage is tastefully presented throughout and has been thoughtfully arranged to maximise natural light and the stunning outlook. The open plan kitchen and lounge form the heart of the home, creating a welcoming and sociable living space, complemented by a feature fireplace with electric stove. A delightful dining sunroom extends from the living area, with French doors opening directly onto the patio and garden, allowing for seamless indoor-outdoor living and uninterrupted sea views.

The property offers three well-proportioned bedrooms, two of which are doubles, along with a modern shower room featuring underfloor heating. An external utility room provides additional practicality, while the easily maintained garden and patio areas offer an ideal space from which to enjoy the coastal aspect.

Further enhancing its appeal, Lobster Pot Cottage benefits from a short-term let licence and is currently operated as a successful Airbnb, making it equally attractive as a private residence, holiday home or investment opportunity.

More Details

EPC Rating - C
Council Band - E
Tenure - Freehold

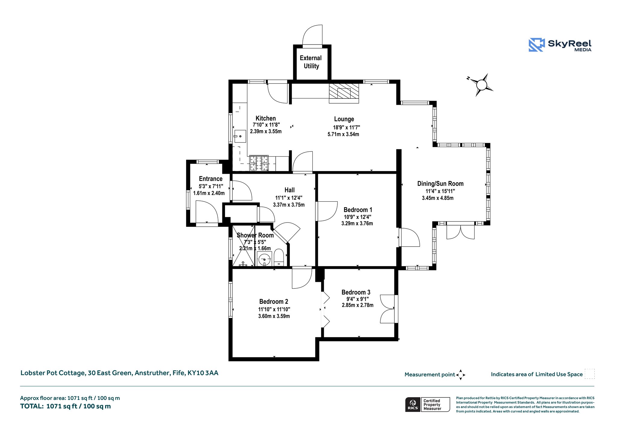
Summary of Accommodation

Detached cottage with outstanding sea views
Open plan kitchen and lounge with feature fireplace and electric stove
Dining sunroom with French doors opening to the patio and garden
Kitchen fitted with integrated dishwasher, wine cooler, hob and oven
Modern shower room with underfloor heating
Three bedrooms, two doubles and a further good-sized bedroom
(Note: bedroom three is accessed via bedroom two)
External utility room
Easily maintained garden and patio area
Active Airbnb with short-term let licence in place - (option to purchase with current bookings or vacant possession from summer)
Contents available by separate negotiation

Location
Anstruther is a thriving and characterful fishing village located along the highly desirable East Neuk of Fife, renowned for its historic harbour, coastal charm and strong sense of community. The village offers an excellent range of local amenities including independent shops, cafés, award-winning restaurants, traditional pubs and galleries, all set against a dramatic coastal backdrop.

The property lies directly on the famous Fife Coastal Path, a 117-mile route stretching from the Firth of Forth to the Firth of Tay, offering spectacular walking, cycling and wildlife-spotting opportunities. Nearby villages such as Pittenweem, St Monans and Elie further enhance the area’s appeal, each offering beautiful beaches, golf courses, sailing facilities and additional dining options.

The historic university town of St Andrews, internationally renowned for its golf courses, beaches and cultural attractions, is approximately 15 minutes away by car. Excellent road links provide access throughout Fife and beyond, making Anstruther an ideal location for those seeking a relaxed coastal lifestyle without sacrificing connectivity or convenience.

General Remarks & Information

Fixtures and Fittings:
Only appliances specifically mentioned in the sales particulars are included in the sale price. In all other aspects the treatment of fixtures and fittings within the relevant Conveyancing Standard Clauses apply.
Contents available by separate negotiation.

Services:
Gas heating, mains water, electricity, broadband, telephone (subject to telephone providers’ regulations).

Viewing:
By appointment through St Andrews. 28 Bell Street, St Andrews, KY16 9UX. Email: standrews@rettie.co.uk Tel: 01334 237 700

Offers:
Offers should be submitted in Scottish Legal Form to the selling agents Rettie & Co. A closing date by which offers must be submitted may be fixed later. Please note that interested parties are advised to register their interest with the selling agents in order that they may be advised should a closing date be set. The seller reserves the right to accept any offer at any time.

Council Tax Band:
E

EPC Rating:
C

Postcode:
KY10 3AA

Tenure:
Freehold

Particulars Prepared:
2nd February 2026

Internet Website
This property and other properties offered by Rettie & Co. & Rettie LLP's. can be viewed on our website at www.rettie.co.uk as well as Rightmove, OnTheMarket and The London Office.

Servitude Rights, Burdens & Wayleaves
The property is sold subject to and with the benefit of all servitude rights, burdens, reservations and wayleaves including rights of access and rights of way, whether public or private, light, support, drainage, water and wayleaves for masts, pylons, stays, cable, drains and water, gas and other pipes whether contained in the title deeds or informally constituted and whether or not referred to above.

Important Notice

Rettie, Their Clients And Any Joint Agents Give Notice That

They are not authorised to make or give any representations or warranties in relation to the property either in writing or by word of mouth.
Any information given is entirely without responsibility on the part of the agents or the sellers. These particulars do not form part of any offer or contract and must not be relied upon as statements or representations of fact.

All Rettie floorplans are drawn to RICS standard. The text, photographs and plans are for guidance only and are not necessarily comprehensive and it should not be assumed that the property remains as photographed. Any error, omission or mis-statement shall not annul the sale or entitle any party to compensation or recourse to action at law. It should not be assumed that the property has all necessary planning, building regulation or other consents, including for its current use. Rettie & Co. & Rettie LLP’s have not tested any services, equipment or facilities. Purchasers must satisfy themselves by inspection or otherwise and ought to seek their own professional advice.

All descriptions or references to condition are given in good faith only. Whilst every endeavour is made to ensure accuracy, please check with us on any points of especial importance to you, especially if intending to travel some distance. No responsibility can be accepted for expenses incurred in inspecting properties which have been sold or withdrawn.

Proof and source of Funds/Anti Money Laundering
Under the HMRC Anti Money Laundering legislation all offers to purchase a property on a cash basis or subject to mortgage require evidence of source of funds. This may include evidence of bank statements/funding source, mortgage or confirmation from a solicitor the purchaser has the funds to conclude the transaction.

All individuals involved in the transaction are required to produce proof of identity and proof of address. Rettie use electronic verification, if this is not possible original documents are acceptable.

Misrepresentations
The property is sold with all faults and defects, whether of condition or otherwise and neither the seller nor Rettie & Co. or Rettie LLP’s, the selling agent, are responsible for such faults and defects, nor for any statement contained in the particulars of the property prepared by the said agent.

The Purchaser(s) shall be deemed to acknowledge that they have not entered into contract in reliance on the said statements, that they are satisfied themselves as to the content of each of the said statements by inspection or otherwise and that no warranty or representation has been made by the seller or the said agents in relation to or in connection with the property.

Any error, omission or misstatement in any of the said statements shall not entitle the purchaser(s) to rescind or to be discharged from this contract, nor entitle either party to compensation or damages nor in any circumstances to give either party any cause for action.

Request More Details

Jill McCulley

Jill McCulley

Associate Director
Bob Duncan Cert CII (MP)

Bob Duncan Cert CII (MP)

Managing Director
Mortgage Calculator
Monthly payments
Please set an interest rate.

Your home may be repossessed if you do not keep up repayments on your mortgage.

There may be a fee for mortgage advice. The actual amount you pay will depend upon your circumstances. The fee is up to 1% but a typical fee is 0.3% of the amount borrowed.

Tax Calculator
LBTT calculator for properties purchased in Scotland. Stamp Duty calculator for properties purchased in England.
Land & buildings transaction tax (LBTT)
= £0
New build house with stone and timber cladding

Looking To Sell Or Let?

Rettie is one of the most trusted and well-respected names in property. Our unrivalled market knowledge helps people from around the world buy, sell, let and develop property in Scotland and the North East of England - from city apartments and rural cottages to large townhouses and prime country homes, farms and estates. We deal with some of the most prestigious properties on the market, but provide the same exceptional standards of service and value for money to all our clients.