Ashness Cottage, New Gilston, Leven, Fife, KY8 5TF

New Gilston, Leven, Fife, KY8 5TF
New
Pin View on map

Offers Over £345,000

House

House

Bed

3 Bedrooms

Bathroom

2 Bathrooms

Reception

2 Reception Rooms

Tree

Private Garden

Garage

Garage

Parking

Off Street Parking

Telephone

Property Description

Ashness Cottage is a beautifully presented three-bedroom detached bungalow, set within the heart of the sought-after village of New Gilston. The property offers deceptively spacious and flexible accommodation, thoughtfully arranged to suit modern family living while retaining a strong sense of character and charm throughout.

At the heart of the home lies an impressive open-plan lounge, dining and kitchen area, a wonderfully bright and welcoming space enhanced by a vaulted ceiling with exposed timber beams and Velux windows that flood the room with natural light. The country-style kitchen enjoys tiled flooring, a traditional Aga-style cooker and a striking exposed stone wall, while French doors open directly onto the rear garden, effortlessly connecting indoor and outdoor living.

The property further benefits from a separate sitting room, featuring a wood-burning stove and additional French doors to the rear patio, creating a cosy yet elegant retreat. A further family room, also with a wood-burning stove, provides excellent versatility and could be used as a second lounge, snug or home office if desired.

Bedroom accommodation comprises two generous double bedrooms with fitted wardrobes and a third single bedroom, also with built-in storage. Complementing the layout are a contemporary wet room shower room located off the kitchen via a useful utility cupboard, along with a spacious family shower room.

Externally, Ashness Cottage is set within generous garden grounds, with the rear garden laid mainly to lawn and complemented by an attractive paved patio and seating area, a timber summer house, detached garage and a substantial paved driveway offering parking for multiple vehicles.

More Details

EPC Rating - D
Council Tax Band - E
Tenure - Freehold

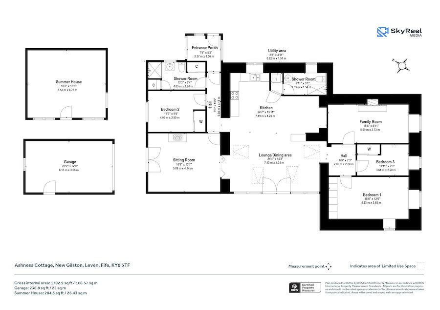
Summary of Accommodation

  • Entrance porch
  • Central hallway
  • Open-plan lounge/dining/kitchen with vaulted ceiling, exposed beams, Velux windows, Aga-style cooker and French doors to garden
  • Utility cupboard
  • Wet room shower room
  • Sitting room with wood-burning stove and French doors to rear patio
  • Family room with wood-burning stove
  • Two double bedrooms with fitted wardrobes
  • Single bedroom with fitted wardrobe
  • Spacious family shower room
  • Large enclosed rear garden with patio and summer house
  • Detached garage
  • Extensive paved driveway with off-street parking

Location
New Gilston is a small and highly regarded rural village, surrounded by open Fife countryside and offering a peaceful village lifestyle within easy reach of excellent local amenities. The setting is ideal for those seeking a quieter way of life, with scenic countryside walks and a strong sense of community, while still benefiting from convenient access to neighbouring towns.

The nearby town of Leven provides a wide range of services, including supermarkets, independent shops, cafés, leisure facilities and both primary and secondary schooling. Leven’s recently reinstated railway station offers direct connections to Kirkcaldy and onward links to Edinburgh, significantly improving accessibility for commuters.

The area is renowned for its outstanding outdoor and leisure opportunities. The beautiful coastline and beaches at Leven and Lundin Links are close by, along with a number of respected golf courses, coastal paths and countryside trails. The charming fishing villages of the East Neuk, along with the historic town of St Andrews, are all within comfortable reach, while Dundee and Edinburgh are readily accessible by road, making New Gilston an excellent base for both everyday living and weekend enjoyment.

General Remarks & Information

Fixtures and Fittings:
Only appliances specifically mentioned in the sales particulars are included in the sale price. In all other aspects the treatment of fixtures and fittings within the relevant Conveyancing Standard Clauses apply.
Green house not included in the sale.

Services:
Oil fired central heating, mains water, electricity, broadband, telephone (subject to telephone providers’ regulations).
The property also benefits from the installation of 12 photovoltaic panels.

Viewing:
By appointment through Rettie St Andrews. 28 Bell Street, St Andrews, KY16 9UX. Email: standrews@rettie.co.uk Tel: 01334 237 700

Offers:
Offers should be submitted in Scottish Legal Form to the selling agents Rettie & Co. A closing date by which offers must be submitted may be fixed later. Please note that interested parties are advised to register their interest with the selling agents in order that they may be advised should a closing date be set. The seller reserves the right to accept any offer at any time.

Council Tax Band:
E

EPC Rating:
D

Postcode:
KY8 5TF

Tenure:
Freehold

Particulars Prepared:
7th April 2026

Internet Website
This property and other properties offered by Rettie & Co. & Rettie LLP's. can be viewed on our website at www.rettie.co.uk as well as Rightmove, OnTheMarket and The London Office.

Servitude Rights, Burdens & Wayleaves
The property is sold subject to and with the benefit of all servitude rights, burdens, reservations and wayleaves including rights of access and rights of way, whether public or private, light, support, drainage, water and wayleaves for masts, pylons, stays, cable, drains and water, gas and other pipes whether contained in the title deeds or informally constituted and whether or not referred to above.

Important Notice

Rettie, their clients and any joint agents give notice that:
They are not authorised to make or give any representations or warranties in relation to the property either in writing or by word of mouth. Any information given is entirely without responsibility on the part of the agents or the sellers. These particulars do not form part of any offer or contract and must not be relied upon as statements or representations of fact.

All Rettie floorplans are drawn to RICS standard. The text, photographs and plans are for guidance only and are not necessarily comprehensive and it should not be assumed that the property remains as photographed. Any error, omission or mis-statement shall not annul the sale or entitle any party to compensation or recourse to action at law. It should not be assumed that the property has all necessary planning, building regulation or other consents, including for its current use. Rettie & Co. & Rettie LLP’s have not tested any services, equipment or facilities. Purchasers must satisfy themselves by inspection or otherwise and ought to seek their own professional advice.

All descriptions or references to condition are given in good faith only. Whilst every endeavour is made to ensure accuracy, please check with us on any points of especial importance to you, especially if intending to travel some distance. No responsibility can be accepted for expenses incurred in inspecting properties which have been sold or withdrawn.

Proof and source of Funds/Anti Money Laundering
Under the HMRC Anti Money Laundering legislation all offers to purchase a property on a cash basis or subject to mortgage require evidence of source of funds. This may include evidence of bank statements/funding source, mortgage or confirmation from a solicitor the purchaser has the funds to conclude the transaction.

All individuals involved in the transaction are required to produce proof of identity and proof of address. Rettie use electronic verification, if this is not possible original documents are acceptable.

Misrepresentations
The property is sold with all faults and defects, whether of condition or otherwise and neither the seller nor Rettie & Co. or Rettie LLP’s, the selling agent, are responsible for such faults and defects, nor for any statement contained in the particulars of the property prepared by the said agent.

The Purchaser(s) shall be deemed to acknowledge that they have not entered into contract in reliance on the said statements, that they are satisfied themselves as to the content of each of the said statements by inspection or otherwise and that no warranty or representation has been made by the seller or the said agents in relation to or in connection with the property.

Any error, omission or misstatement in any of the said statements shall not entitle the purchaser(s) to rescind or to be discharged from this contract, nor entitle either party to compensation or damages nor in any circumstances to give either party any cause for action.

Request More Details

Cora Johnson

Cora Johnson

Sales Consultant
Bob Duncan Cert CII (MP)

Bob Duncan Cert CII (MP)

Managing Director
Mortgage Calculator
Monthly payments
Please set an interest rate.

Your home may be repossessed if you do not keep up repayments on your mortgage.

There may be a fee for mortgage advice. The actual amount you pay will depend upon your circumstances. The fee is up to 1% but a typical fee is 0.3% of the amount borrowed.

Tax Calculator
LBTT calculator for properties purchased in Scotland. Stamp Duty calculator for properties purchased in England.
Land & buildings transaction tax (LBTT)
= £0
New build house with stone and timber cladding

Looking To Sell Or Let?

Rettie is one of the most trusted and well-respected names in property. Our unrivalled market knowledge helps people from around the world buy, sell, let and develop property in Scotland and the North East of England - from city apartments and rural cottages to large townhouses and prime country homes, farms and estates. We deal with some of the most prestigious properties on the market, but provide the same exceptional standards of service and value for money to all our clients.