Plot 1 & Plot 2, 2 West Park Road, Newport-on-Tay, Fife, DD6 8NP
Property Description
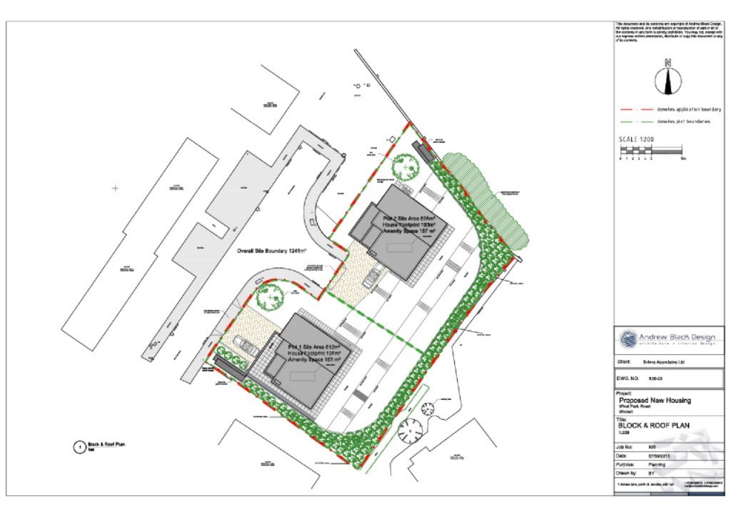
2 or 4 House Development, West Park Road, Newport on Tay, DD6 8NP with Spectacular Tay Coast Views. Elevated building plot spanning 1,248 square metres which can be split depending on the purchasers’ requirements:
- Plot 1 – 612 sqm offers over £165k
- Plot 2 – 636 sqm offers over £185k
Full planning permission in place and grounds works already commenced for four contemporary and architecturally designed townhouses. Previous planning permission for two 5 bedroom detached homes which can be reverted.
Fife Council planning Ref No. 21/03892/FULL
Elevated plot with captivating River Tay views
Sought-after location within easy reach of Dundee and St Andrews
Quiet and established residential street
Excellent array of amenities including schooling
More Details
EPC Rating - N/A
Council Band - N/A
Tenure - Freehold
Property Details & Description
General Description
Designed with modern luxury in mind, each of the homes will offer an exceptional living experience, blending contemporary style with relaxed comfort.
At the heart of each home will be the expansive open-plan living, dining, and kitchen area, designed to enhance the flow of space and light and perfect for both everyday living and entertaining.
Outside, each home will boast terraced landscaped gardens with breathtaking views of the River Tay. Private covered off-street parking ensures convenience and security for residents.
In addition to this, the homes will be built with sustainability and economic efficiency in mind, equipped with air-source heat pumps and solar panels.
Situation
The plots are located on a quiet, well-established residential street, offering a sought-after elevated position in Newport-on-Tay. A small and welcoming town on the banks of the River Tay, it boasts a bustling high street with independent retailers to meet daily shopping needs. For recreational pursuits, it is perfect for keen sailing enthusiasts and golfers will love the facilities at Scotscraig Golf Club. Waterstone Crook Sports Centre offers a gym and fitness classes.
For an even greater choice of cultural and visitor attractions, vibrant Dundee, home to the V&A and the revitalised waterfront with the famous RRS Discovery is only nine miles away whilst St Andrews, the ‘home of golf’ is just 13 miles by car and boasts an array of boutiques, bars, and restaurants. Edinburgh is approximately 60 minutes to the south. The characterful fishing villages and beautiful beaches of Anstruther, St Monans, Crail, Elie, and Pittenweem are all easily accessible as are the Lomond Hills.
The area boasts various visitor attractions including the ruins of Balmerino Abbey and the Fife Coastal Path which passes through Newport-on Tay. Alongside primary schooling in Newport-on-Tay and high school choices in Cupar and St Andrews, private options are available at St Leonards in St Andrews and The High School of Dundee. There is a train station in Dundee, with Edinburgh International Airport an hour away by car. Domestic flights are available from Dundee.
General Remarks & Information
Satellite Navigation
For the benefit of those with satellite navigation the property’s postcode is DD6 8NP
Fixtures & Fittings
Only items specifically mentioned in the particulars of sale are included in the sale price.
Entry & Possession
Entry and vacant possession will be by mutual agreement and arrangement.
Services
Mains water, electricity, gas, and drainage.
Council Tax
Band N/A
EPC Rating
Band N/A
Local Authority
Fife Council, Fife House, North Street, Glenrothes, Fife KY7 5LT Tel: 0345 155 0000
Offers
Offers should be submitted in Scottish Legal Form to the selling agents Rettie & Co at 28 Bell Street, St Andrews KY16 9UX.
Servitude Rights, Burdens & Wayleaves
The property is sold subject to and with the benefit of all servitude rights, burdens, reservations and wayleaves including rights of access and rights of way, whether public or private, light, support, drainage, water and wayleaves for masts, pylons, stays, cable, drains and water, gas and other pipes whether contained in the title deeds or informally constituted and whether or not referred to above.
Particulars and Plans
These particulars and plan are believed to be correct, but they are in no way guaranteed. Any error, omission or misstatement shall not annul the sale or entitle any party to compensation nor in any circumstances give grounds for action at law.
The photographs in this brochure date from September 2024 CGI's for illustrative purposes
Websites and Social Media
This property and other properties offered by Rettie South LLP can be viewed on our website at www.rettie.co.uk as well as our affiliated websites at www.rightmove.co.uk zoopla.com, www.primelocation.com, www.s1homes.com and www.thelondonoffice.co.uk
Proof and Source of Funds/Anti Money Laundering
Under the HMRC Anti Money Laundering legislation all offers to purchase a property on a cash basis or subject to mortgage require evidence of source of funds. This may include evidence of bank statements/funding source, mortgage or confirmation from a solicitor the purchaser has the funds to conclude the transaction. All individuals involved in the transaction are required to produce proof of identity and proof of address. This is acceptable either as original or certified documents.
Misrepresentations
1. The property is sold with all faults and defects, whether of condition or otherwise and neither the seller nor Rettie & Co, the selling agent, are responsible for such faults and defects, nor for any statement contained in the particulars of the property prepared by the said agent.
2. The Purchaser(s) shall be deemed to acknowledge that he has not entered into contact in reliance on the said statements, that he has satisfied himself as to the content of each of the said statements by inspection or otherwise and that no warranty or representation has been made by the seller or the said agents in relation to or in connection with the property.
3. Any error, omission or misstatement in any of the said statements shall not entitle the purchaser(s) to rescind or to be discharged from this contract, nor entitle either party to compensation or damages nor in any circumstances to give either party any cause for action.
Your home may be repossessed if you do not keep up repayments on your mortgage.
There may be a fee for mortgage advice. The actual amount you pay will depend upon your circumstances. The fee is up to 1% but a typical fee is 0.3% of the amount borrowed.
Similar Properties
Looking To Sell Or Let?
Rettie is one of the most trusted and well-respected names in property. Our unrivalled market knowledge helps people from around the world buy, sell, let and develop property in Scotland and the North East of England - from city apartments and rural cottages to large townhouses and prime country homes, farms and estates. We deal with some of the most prestigious properties on the market, but provide the same exceptional standards of service and value for money to all our clients.
