20 Midton Circle, Howwood, Johnstone, Renfrewshire, PA9 1ED
Property Description
20 Midton Circle is a beautifully appointed three bedroom semi-detached home located in a sought after development within the popular Renfrewshire village of Howwood.
Inside, the property is bright and airy and has accommodation arranged over two levels. It benefits from one of the best positions within this modern development and enjoys far reaching views over the local countryside and beyond.
The property is approached via an extended driveway flanked by trees on either side which provides ample space for two vehicles. As you enter the property you get an immediate sense of space and light thanks to its design aimed at maximising light and space.
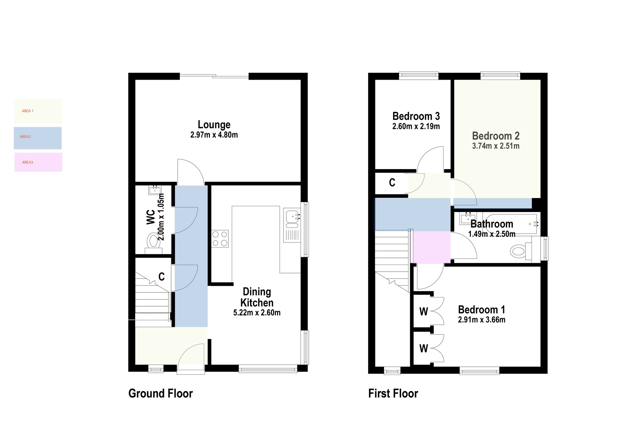
The hallway has an understairs storage cupboard and WC. This leads to a modern fitted dining kitchen which comes with a comprehensive range of wall and base storage units and integrated appliances with ample space for a dining table and chairs. The rear facing lounge is well proportioned and enjoys great views. It has a large sliding glass door flooding the room with light which opens up directly into the gardens and has the effect of bringing the outdoors inside.
On the upper level there are three bedrooms and a family bathroom.
Bright, neutrally decorated family lounge.
Modern kitchen with integrated appliances.
Three spacious bedrooms with built-in storage.
Stylish family bathroom and convenient downstairs W.C.
Low-maintenance, two-tiered rear garden.
Large monobloc driveway for multiple vehicles.
Gas central heating and double glazing.
Howwood is a desirable village in Renfrewshire, ideal for commuters with easy access to Glasgow and Ayrshire via the A737 or Howwood Train Station. The village offers a strong sense of community and a range of local amenities, including a primary school, café, convenience store, The Howwood Inn, and The Boarding House restaurant. For leisure, residents enjoy the Bowfield Hotel & Spa, Howwood Bowling Club, and Greenacres Curling Club. Set against a backdrop of scenic countryside, Howwood combines rural charm with modern convenience.
Lochwinnoch is around 4 miles from Howwood and boasts a wealth of stunning countryside, flora, fauna and a host of eating and drinking places to make the perfect family day out. Located on the edge of Clyde Muirshiel Regional Park, Scotland’s largest regional park, you have access to 108 square miles of countryside to explore on foot, bike, or simply relax and enjoy. Castle Semple Centre is in the village itself and offers woodland walks, cycle hire and is the base for many local watersports clubs.
More Details
EPC: C
Council Tax Band: D
Tenure: Freehold
Your home may be repossessed if you do not keep up repayments on your mortgage. There may be a fee for mortgage advice. The actual amount you pay will depend upon your circumstances.
Similar Properties
Looking To Sell Or Let?
Rettie is one of the most trusted and well-respected names in property. Our unrivalled market knowledge helps people from around the world buy, sell, let and develop property in Scotland and the North East of England - from city apartments and rural cottages to large townhouses and prime country homes, farms and estates. We deal with some of the most prestigious properties on the market, but provide the same exceptional standards of service and value for money to all our clients.
