7 Clocherlee Place, Inverkip, Inverclyde, PA16 0FW
Offers Over £315,000
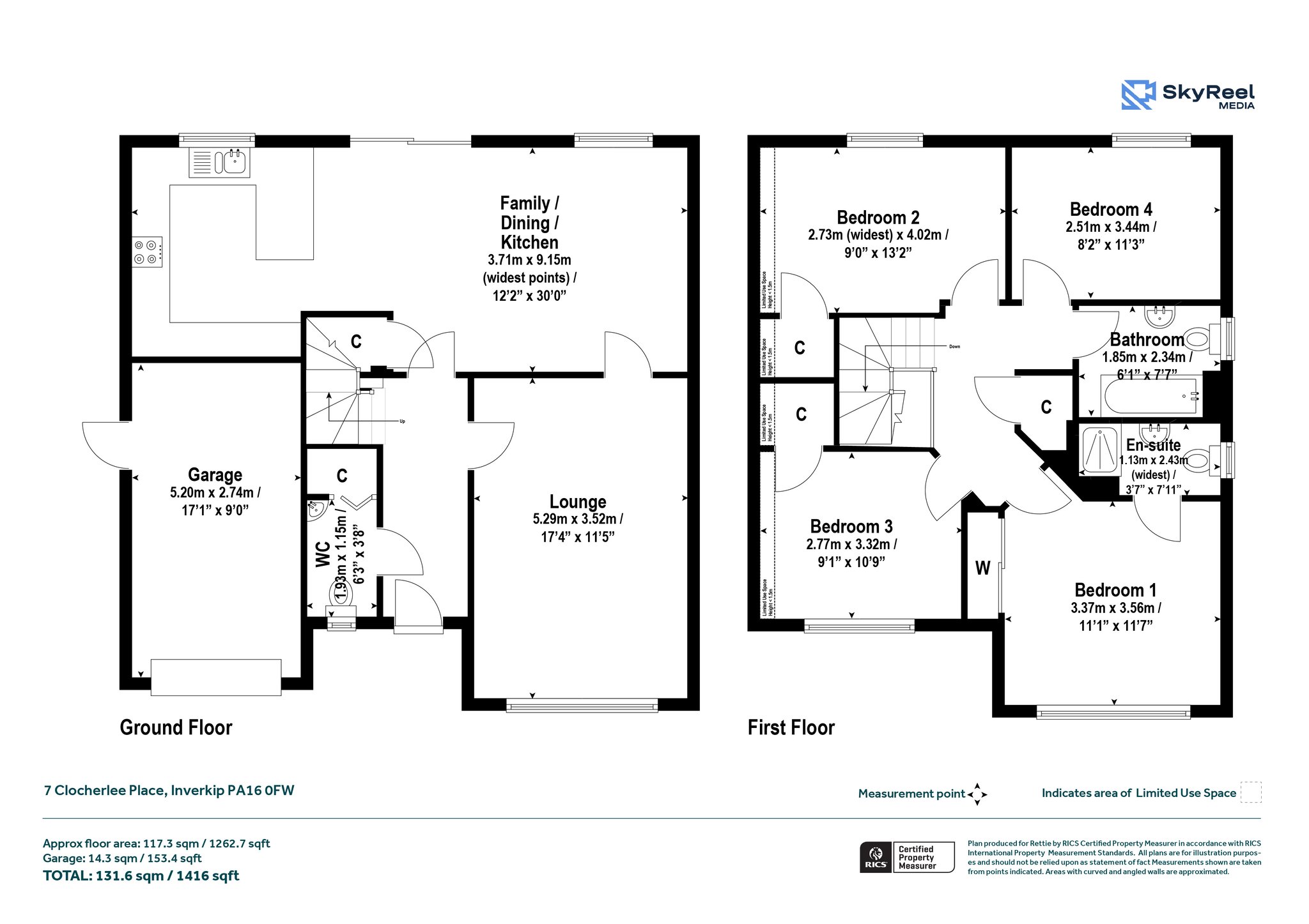
Detached House
4 Bedrooms
2 Bathrooms
2 Reception Rooms
Private Garden
Garage
Off Street Parking
Property Description
Number 7 Clocherlee Place is a rarely available detached villa in a much admired location nicely positioned within a peaceful cul de sac on the edge of the popular village of Inverkip The property is beautifully presented and enjoys a fantastic backdrop and views over the local countryside and beyond. It has a semi-rural feel yet remains convenient for the railway station, primary school and local amenities.
This is a bright and airy home providing great space and flexibility with accommodation over two levels built circa 2013.
Access is via the reception hallway with a WC located off. The front facing lounge is well appointed and to the rear there is a fabulous open plan family/dining/kitchen area which comes with a contemporary fitted kitchen, breakfast bar, integrated appliances and a large sliding glass door providing direct access into the rear gardens. There is utility room located off the kitchen providing additional storage and space for white goods.
A carpeted staircase leads upstairs to the main en suite double bedroom. There are a further 3 well-proportioned bedrooms and a family bathroom.
The rear gardens are a particular feature of the property and enjoy nice open views over the neighbouring countryside. Mainly laid to lawn with a timber decked terrace, fencing and clothes drying area. To the front there is a driveway providing plenty off street parking, leading to a single garage with up and over door
Sought after location.
Excellent outdoor space.
Garage.
Beautiful countryside views.
Great transport links.
Inverkip is a charming village on the Clyde coast, known for its modern marina, scenic surroundings, and excellent transport links to Glasgow and beyond. The village consists of a mix of properties including stylish waterfront apartments, traditional stone cottages, and spacious family homes. With local amenities, excellent sailing opportunities and proximity to the countryside, Inverkip offers the perfect blend of coastal tranquillity and convenience. The village’s railway station and road connections make it an attractive location for commuters seeking a peaceful retreat by the sea.
EPC : BAND
COUNCIL TAX : BAND F
TENURE : FREEHOLD
More Details
Situation: Private Garden
Council Tax Band: F
Tenure: Contact Branch
Your home may be repossessed if you do not keep up repayments on your mortgage. There may be a fee for mortgage advice. The actual amount you pay will depend upon your circumstances.
Similar Properties
Looking To Sell Or Let?
Rettie is one of the most trusted and well-respected names in property. Our unrivalled market knowledge helps people from around the world buy, sell, let and develop property in Scotland and the North East of England - from city apartments and rural cottages to large townhouses and prime country homes, farms and estates. We deal with some of the most prestigious properties on the market, but provide the same exceptional standards of service and value for money to all our clients.
