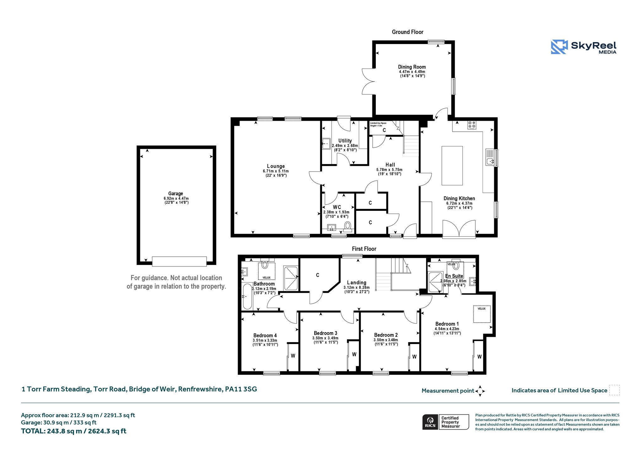
Torr Farm Steading Plot 1, Torr Road, Bridge Of Weir, Renfrewshire, PA11 3SG
Fixed Price £695,000
House
4 Bedrooms
3 Bathrooms
2 Reception Rooms
Private Garden
Garage
Off Street Parking
Property Description
Developed by Gryffeside Developments, Torr Farm is an exclusive collection of luxury homes set within a prestigious semi-rural setting. This exceptional development offers a selection of beautifully designed plots, many enjoying private positions with stunning panoramic views across the Renfrewshire countryside.
Full Description
Torr Farm presents a rare opportunity to acquire a choice of high-quality new-build homes, each finished to an exceptional standard and designed with modern living in mind. These properties combine contemporary style, generous proportions, and outstanding attention to detail throughout.
The homes offer spacious, light-filled interiors, with large windows and French doors in selected plots creating a seamless connection to private outdoor spaces. Designed for both family living and entertaining, the layouts provide flexibility and comfort in equal measure.
Each property features a beautifully appointed kitchen by Crown Imperial, complete with granite worktops and a full suite of integrated NEFF appliances, delivering both practicality and elegant design.
Bedrooms are well-proportioned, many with fitted wardrobes, and selected plots benefit from en-suite facilities. Bathrooms are finished with high-quality Villeroy & Boch sanitaryware and stylish tiling, creating a refined, contemporary feel.
A key feature of the development is its focus on sustainability and efficiency, with each home incorporating a Mitsubishi Ecodan air source heat pump and photovoltaic solar panels for energy-conscious living.
Buyers may also have the opportunity to personalise certain internal finishes, including flooring choices, subject to build stage.
Specification Summary
Interior
Karndean flooring and luxury carpets (choice available)
Crown Imperial kitchens with granite worktops
ntegrated NEFF appliances
Villeroy & Boch sanitaryware
Aleluia ceramic tiling
Fitted wardrobes
Oak staircase with glazed panels
Utility room with appliances
Double glazing throughout
Exterior & Energy
Private driveways and garages (plot dependent)
Landscaped gardens and patio areas
Exterior lighting
Air source heat pump
Photovoltaic solar panels
Location
Ideally situated between Bridge of Weir and Kilmacolm, Torr Farm offers the perfect balance of countryside tranquillity and everyday convenience. Both villages are highly sought-after for their excellent amenities, boutique shopping, cafés, and restaurants.
The area is well served by highly regarded schooling, including St Columba’s School and Gryffe High School, and offers a range of leisure pursuits such as golf courses, country clubs, and scenic walking routes. Excellent transport links provide easy access to Glasgow and beyond.
More Details
Please note that all images used are for illustrative purposes only. They depict a show home and do not
represent the exact property being advertised. Fixtures, finishes, layouts and specifications may vary.
Tenure: Freehold
EPC: As this property is a New Build, the EPC has not yet been assigned.
Council Tax Band: As this property is a New Build, the Council Tax band has not yet been assigned.
LBTT Incentive - Terms and Conditions apply, does not include Additional Dwelling Supplement. Please speak to your Sales Negotiator to find out more.
Your home may be repossessed if you do not keep up repayments on your mortgage.
There may be a fee for mortgage advice. The actual amount you pay will depend upon your circumstances. The fee is up to 1% but a typical fee is 0.3% of the amount borrowed.
Similar Properties
Looking To Sell Or Let?
Rettie is one of the most trusted and well-respected names in property. Our unrivalled market knowledge helps people from around the world buy, sell, let and develop property in Scotland and the North East of England - from city apartments and rural cottages to large townhouses and prime country homes, farms and estates. We deal with some of the most prestigious properties on the market, but provide the same exceptional standards of service and value for money to all our clients.
