Flat 3, 1 Newhaven Road, Edinburgh, EH6 5PA

Edinburgh, EH6 5PA
New
Pin View on map

Monthly Rental £1,600 PCM

House

First Floor Apartment

Bed

2 Bedrooms

Bathroom

2 Bathrooms

Reception

1 Reception Room

Furnishing

Furnished

Calendar

Available From 22/05/2026

Size

72 sq.m

Tree

Communal Garden

Parking

Off Street Parking

Telephone

Property Description

An excellent two-bedroom, first floor apartment, forming part of a factored development with lift, parking and beautiful shared gardens.

The property has been tastefully decorated and furnished and is presented in great order throughout.

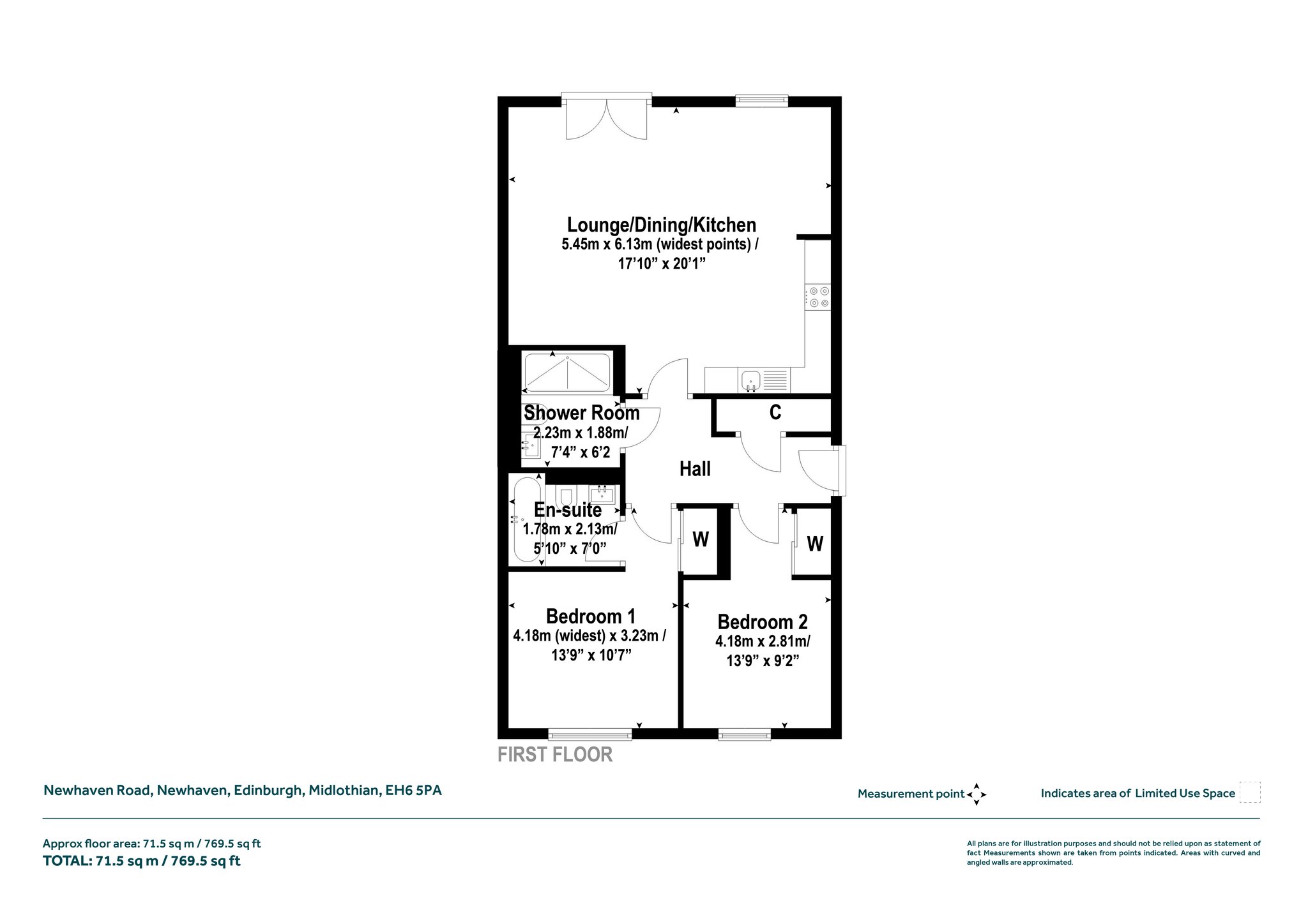
Accommodation Comprises

Hall with storage cupboard; Lovely spacious open-plan living space with separate seating, dining and kitchen areas and doors opening on to a Juliet balcony; Principal bedroom with fitted wardrobes and ensuite bathroom; Second double bedroom/study with fitted wardrobes (will be left unfurnished); Shower room.

The property further benefits from GCH, double glazing, secure entry phone system, lift, well maintained communal grounds and garden and unallocated private residents parking.

Newhaven Road is located just over a mile from the city centre, and has a good selection of local amenities close by. There is a large Asda Superstore a short drive away, and a Tesco and Lidl in nearby Canonmills, just 15 minutes’ walk away. Ocean Terminal houses a multi-screen cinema, restaurants, gym and a selection of shops, and there is a David Lloyd leisure club a short drive away at Newhaven Harbour.

Buses run regularly to the city centre, or you can walk in just 30 minutes.

More Details

Furnished
Deposit: £1,800
Council Tax Band: E
EPC Rating: B
Landlord Registration: 542918/230/13052 and 542917/230/13052
LARN1903047
Cladding

Request More Details

Fraser Jamieson

Fraser Jamieson

Portfolio Manager
modern detached house with stone and timber cladding

Looking To Sell Or Let?

Rettie is one of the most trusted and well-respected names in property. Our unrivalled market knowledge helps people from around the world buy, sell, let and develop property in Scotland and the North East of England - from city apartments and rural cottages to large townhouses and prime country homes, farms and estates. We deal with some of the most prestigious properties on the market, but provide the same exceptional standards of service and value for money to all our clients.