Flat 16, 163 Easter Road, Edinburgh, EH7 5QB

Edinburgh, EH7 5QB
New
Pin View on map

Monthly Rental £1,950 PCM

House

Penthouse Apartment

Bed

2 Bedrooms

Bathroom

2 Bathrooms

Reception

1 Reception Room

Furnishing

Furnished

Calendar

Available From 10/04/2026

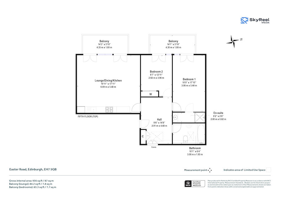
Size

87 sq.m

Parking

Off Street Parking

Telephone

Property Description

Stunning two-bedroom penthouse apartment, situated within a modern and well-maintained development, with private parking and two roof terraces, offering spectacular panoramic views.

Beautifully presented throughout, the property is stylishly furnished and finished in modern, neutral tones, creating a bright, spacious and welcoming space.

Accommodation Comprises

Welcoming and bright entrance hall; Superb open-plan lounge, dining and kitchen area, leading out to a private terrace, offering an abundance of natural light and breathtaking views. The kitchen is sleek and modern and seamlessly integrated into the living area; Principal bedroom with en-suite shower room and door leading out to the second terrace; Second double bedroom also leading out to the terrace; Bathroom with shower above bath.

Additional benefits include gas central heating, lift access, secure entry system and residents parking within the development.

Easter Road is a vibrant and popular area just to the east of Edinburgh’s city centre. The neighbourhood offers a fantastic range of local amenities including independent cafés, restaurants, bars, and convenience stores. Nearby Leith Walk and Meadowbank Retail Park provide additional shopping options including supermarkets, gyms and everyday essentials.

There are several green spaces close by, including Holyrood Park and Arthur’s Seat, offering beautiful walking and cycling routes. The nearby Meadowbank Sports Centre also provides excellent fitness and leisure facilities.

The city centre can be reached within a short walk or quick bus journey, and excellent public transport links connect the area to the wider city and beyond. Waverley Station is also within convenient distance, providing rail connections across Scotland and the UK.

More Details

Furnished
Deposit: £2,150
Council Tax Band: E
EPC Rating: C
Landlord Registration Pending: EDI-1773324-26 and EDI-1773553-26
LARN1903047
Cladding

Request More Details

Patricia Turnbull

Patricia Turnbull

Portfolio Manager
modern detached house with stone and timber cladding

Looking To Sell Or Let?

Rettie is one of the most trusted and well-respected names in property. Our unrivalled market knowledge helps people from around the world buy, sell, let and develop property in Scotland and the North East of England - from city apartments and rural cottages to large townhouses and prime country homes, farms and estates. We deal with some of the most prestigious properties on the market, but provide the same exceptional standards of service and value for money to all our clients.