1/1, 1 Kelvinside Gardens, North Kelvinside, Glasgow, G20 6BG

North Kelvinside, Glasgow, G20 6BG
New
Pin View on map

Monthly Rental £1,795 PCM

House

First Floor Apartment

Bed

3 Bedrooms

Bathroom

3 Bathrooms

Reception

1 Reception Room

Furnishing

Unfurnished

Calendar

Available Now

Size

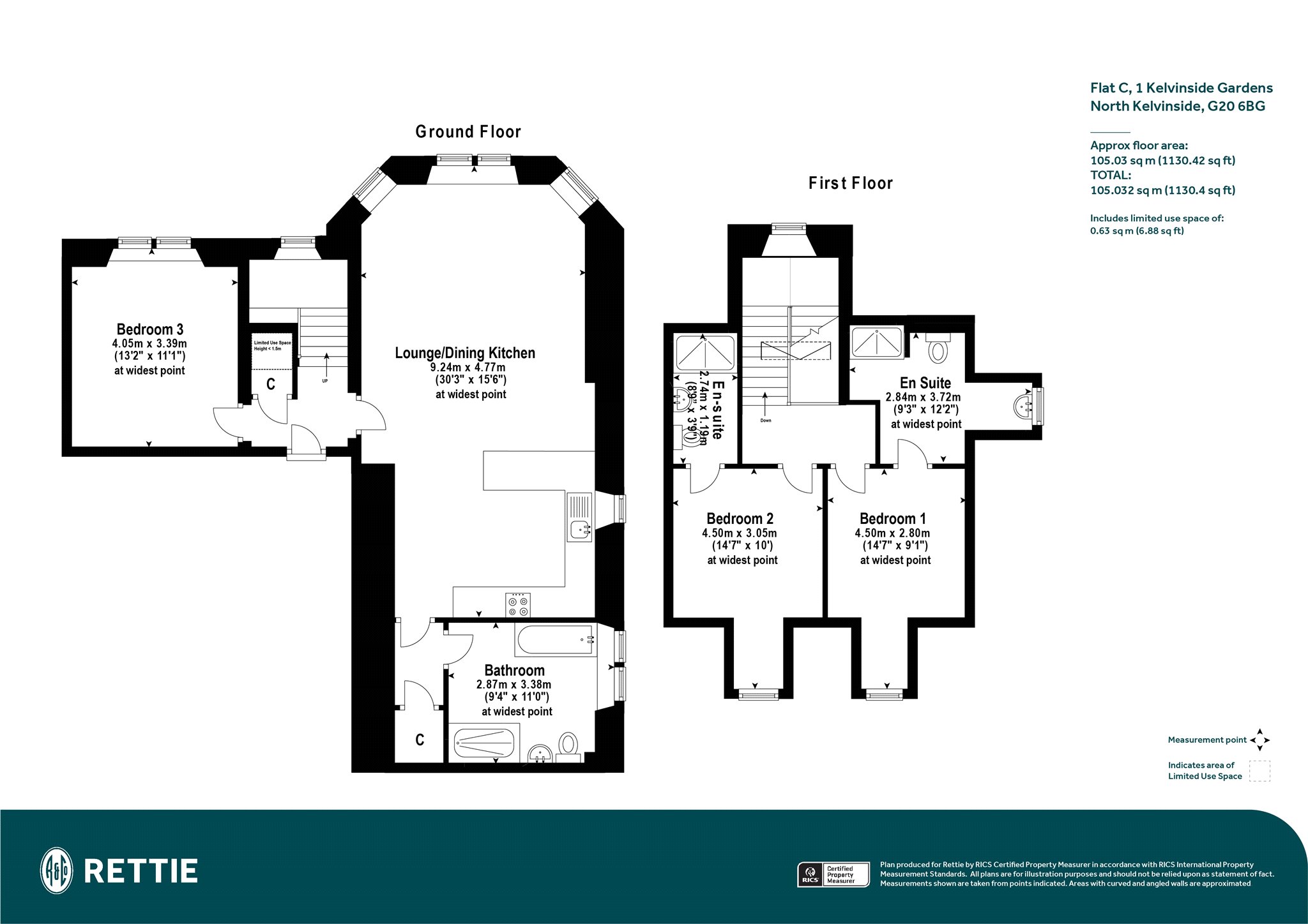
103 sq.m

Telephone

Property Description

A highly desirable and immediately impressive three-bedroom duplex occupying a first and second floor position within a fully refurbished red sandstone building in the popular North Kelvinside district.

The internal accommodation enjoys excellent natural light, is comfortably proportioned and has been comprehensively upgraded and finished to an exceptional standard. Notable highlights include a superb bay windowed lounge/dining room, an appealing, open plan, kitchen, three versatile double bedrooms, two en suite shower rooms and a particularly spacious four-piece bathroom. Additional features include, Security entry system, reception hall with under stair storage cupboard and staircase to upper level, a newly installed central heating system, refurbished sash and case double glazed windows, hardwood flooring in the lounge/dining/kitchen and well-presented communal areas and shared courtyard to the rear of the building.

1 Kelvinside Gardens is located within a quiet residential pocket within the sought after North Kelvinside area and is within a short walk of a fantastic selection of amenities on Queen Margaret Drive, Great Western Road, Byres Road together with easy access to The Botanic Gardens, Kelvingrove Park and The University of Glasgow.

Scottish Agent Registration Number: LARN1903047

More Details

Landlord Registration Number: 536203/260/07012
Deposit: £1995.00
Council tax: E
EPC: D

Request More Details

Katrina Westhead

Katrina Westhead

Portfolio Manager
modern detached house with stone and timber cladding

Looking To Sell Or Let?

Rettie is one of the most trusted and well-respected names in property. Our unrivalled market knowledge helps people from around the world buy, sell, let and develop property in Scotland and the North East of England - from city apartments and rural cottages to large townhouses and prime country homes, farms and estates. We deal with some of the most prestigious properties on the market, but provide the same exceptional standards of service and value for money to all our clients.