Ground, 8 Doune Gardens, Glasgow, Glasgow City, G20 6DJ
Monthly Rental £1,450 PCM
Ground Floor Apartment
2 Bedrooms
1 Bathroom
1 Reception Room
Furnished
Available Now
80 sq.m
Private Garden
On Street/Permit
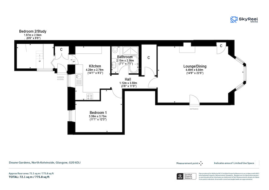
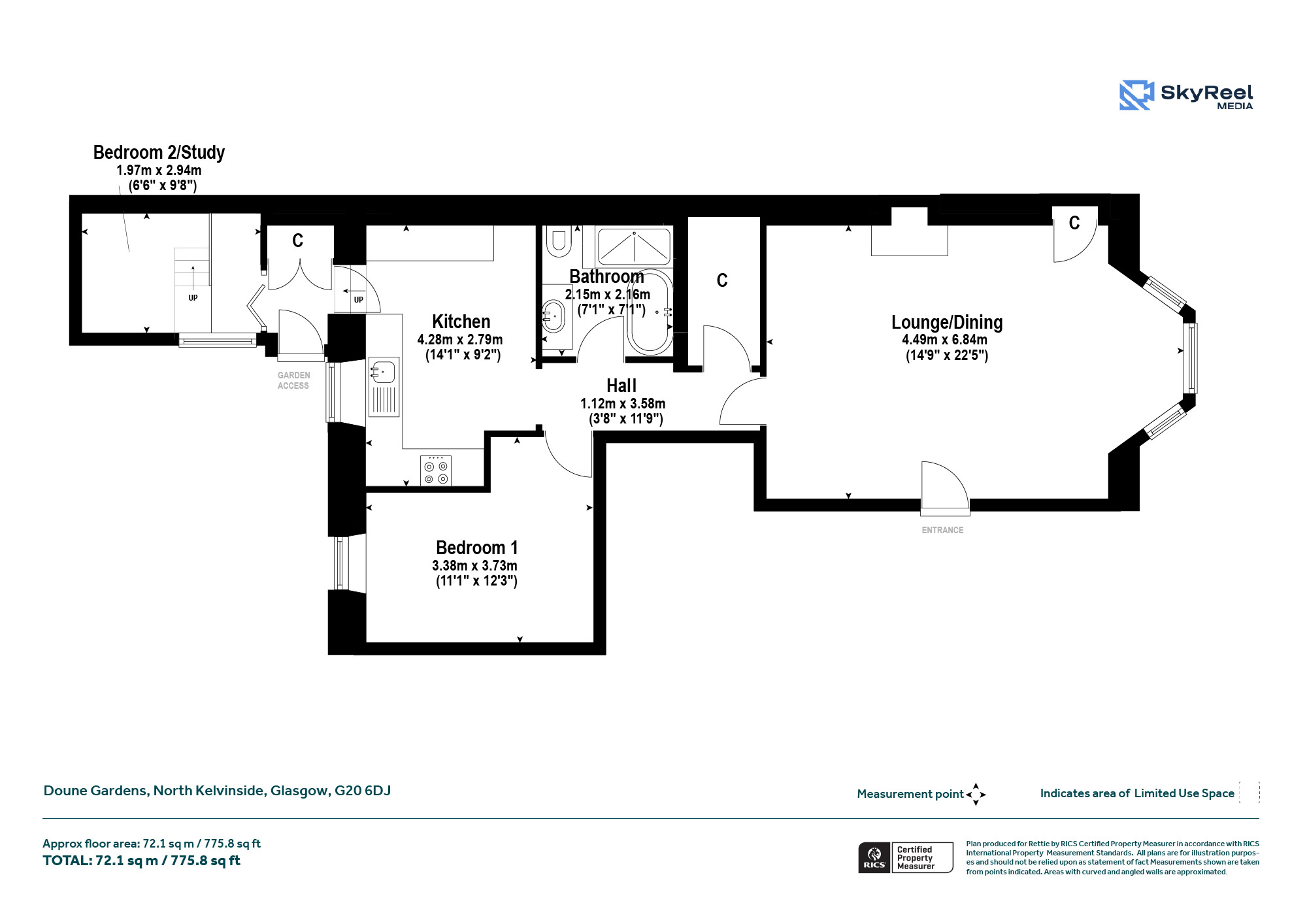
Property Description
Occupying the ground floor of a elegant West End converted townhouse, this two-bedroom conversion offers Southernly views overlooking the River Kelvin.
The accommodation extends to; welcoming entrance hallway, impressive front facing lounge with leafy outlook, two bedrooms, one being the perfect layout for a home office, a fantastic dining-sized kitchen which has integrated appliances and space for dining. The private garden can be accessed from the kitchen. The accommodation is completed by a fully tiled family bathroom with four-piece suite and stand alone bath with seperate shower.
Doune Gardens is a quiet, tree lined cull-de-sac just off Belmont Street minutes from Great Western Road. Within minutes of leaving of the property there are a fantastic selection of shops, cafes, restaurants easily accessible on both Great Western Road and Byres Road. as well as Glasgow University and Glasgow's Botanical Gardens. For those looking to commute, Kelvinbridge subway station is a short walk and the major road networks can be joined easily.
Scottish Letting Agent Registration: LARN1903047
More Details
Landlord registration: 1561420/260/21032
Deposit £1650
Council tax: D
EPC: D
Similar Properties
Looking To Sell Or Let?
Rettie is one of the most trusted and well-respected names in property. Our unrivalled market knowledge helps people from around the world buy, sell, let and develop property in Scotland and the North East of England - from city apartments and rural cottages to large townhouses and prime country homes, farms and estates. We deal with some of the most prestigious properties on the market, but provide the same exceptional standards of service and value for money to all our clients.






























