Firfield, 11 Gartness Road, Killearn, G63 9NT

Killearn, G63 9NT
Sold
Pin View on map

Offers Over £540,000

House

Detached House

Bed

4 Bedrooms

Bathroom

2 Bathrooms

Reception

3 Reception Rooms

Tree

Private Garden

Parking

Off Street Parking

Telephone

Property Description

On the westerly edge of the village, but close to its centre, is this charming four-bedroom Detached House, built in 1938. Firfield affords a truly outstanding view to the distant horizons of the Munros of the lower Highlands that flank Loch Lomond, including the summit of Ben Lomond. It is a view of fields, woodland and hilltops never to tire of and one that provides breathtaking sunsets.

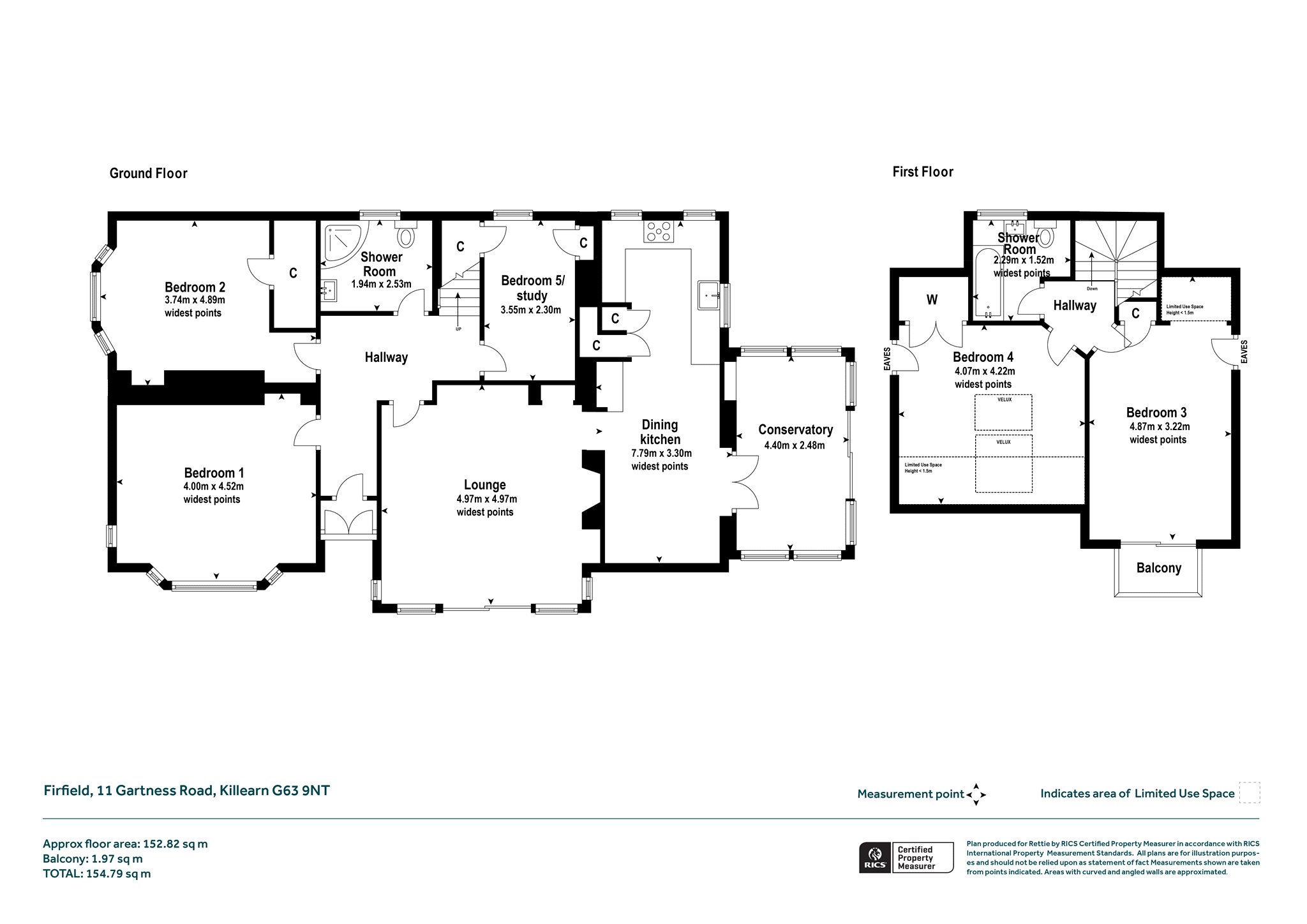
As clients can see from our floorplans, the subjects are of a fine size and provide 6/7 apartments plus conservatory, bathroom, and shower room. There is scope for a further ensuite shower room off bedroom 2 (see later).

  • Entrance Vestibule with storm doors
  • Hall
  • Lounge with contemporary log burning stove
  • Dining Kitchen
  • Conservatory
  • Home Office (could be a bedroom)
  • 4 double Bedrooms
  • Bathroom
  • Shower Room
  • Double glazed
  • Mains gas central heating
  • Security system
  • Lovely gardens embracing the view
  • Only 0.3 mile to village centre

Living at Firfield is a delight, not least the view, and is a home that will suit not only families (4 bedrooms) but also couples and retirees, with two of the four bedrooms on the ground floor, along with the shower room.

Upgrades to the property dating from 2019 (when our clients took ownership) include - flooring and redecoration; the installation of a superb Hwam woodburning stove in the lounge; shower room; bathroom; full electrical rewire; and the gas central heating system where a Vaillant ecoFITpure regular boiler with a high-capacity unvented hot water cylinder ensures plenty of pressure to showers and taps.

Dating from 1938 the house is traditionally built with brick cavity walls. There is a handsome pitched and slated roof with windows and patio doors, double glazed - mostly aluminium case in hardwood frames, the exception being the white uPVC units in the conservatory, staircase window and upstairs bathroom. Bedroom 4 features a very smart 2-Velux window system and the feature “porthole” side window in Bedroom 1 is single glazed.

It is a particularly well presented and a well-equipped home.

Ground Floor

  • Entrance Vestibule
  • Reception Hall
  • Lounge - a lovely spacious room with two windows and patio doors to the front providing a wonderful westwards view. There are two additional side windows (south and north). Two shelved alcoves are nice design touches and at the focal point of the room a fire recess, with slate hearth, upon which is the contemporary Hwam woodburning stove. Beautiful wooden mantle above.
  • Dining Kitchen - with oak cabinets and thick solid oak worktops into which is set a Belfast sink. Windows featured on three sides and with French door to the conservatory. Attractive quarry tiled floor. Appliances include a Rangemaster cooker with five halogen hobs, cooker hood and concealed dishwasher.
  • Conservatory – uPVC framed double glazed on three sides including a set of patio doors. Quarry tiled floor. Views.
  • Home Office - this could be a single bedroom if needed. In addition to a shallow “press” cupboard there is an understairs cupboard.
  • Bedroom 1 - with wide bay window to the front providing another dramatic view westwards.
  • Bedroom 2 - this double room has a bay window to this side facing northwards. The large cupboard off this room was an ensuite shower room previously and with the pipe work retained, and capped, below flooring/behind walls, reinstatement is possible.
  • Shower Room - smartly re fitted with a modern suite and cabinetry. The corner shower enclosure features a powerful thermostatic shower with both deluge and hand shower heads. Chrome towel radiator.

First Floor

  • From the reception hall a return flight stair passes a rear window, at the turn, and ascends to an upper landing.
  • Bedroom 3 - this could easily be the principal house bedroom given its size but also with the view it affords and the asset of having a balcony from which to enjoy it. Fitted wardrobe. Pass door to a floored eaves storage area (with light).
  • Balcony - has a glass balustrade. What a spot for a morning coffee or an evening drink.
  • Bedroom 4 - this has the feature 2-Velux window system. Wardrobe. Access door to more floored eaves storage (light).
  • Bathroom – once again very smartly done with another powerful thermostatic shower set over the bath with deluge and hand shower heads. Glass shower screen.

Garden

An established garden lying mostly to grass. Pathway terrace and sun deck to the front. A wide gravel drive provides off road parking for four/five cars. A hedgerow, with wall, screens Gartness Road, a fence provides a boundary to the field set to the front/west of the property, and a Ranch fence is to the southern boundary of the small, contemporary designed, neighbouring property, Little Firfield.

Little Firfield was built in the former grounds of Firfield, the previous owner splitting the title. This has been done very sympathetically ensuring suitable privacy to both homes. Fro
with, thereafter, individual driveways to both properties.

Situation

Killearn is only some 10 miles to the suburb of Milngavie and about 18 miles to Glasgow City Centre. It has a thriving village community with a great village pub and restaurant, two café’s, village hall, parish church and hall, nurseries including a Montessori and with a primary school within the village and secondary provision at Balfron High. There is a health centre, pharmacy and a well-stocked Co-op. The village tennis club, and its all-weather courts, is a great asset.

Surrounding Killearn are many lovely walks with the Fintry Hills and Dumgoyne providing a dramatic backdrop. It is on the very fringe of The Loch Lomond and Trossachs National Park so some of Scotland’s best scenery is essentially on your doorstep.

A great house with a very special setting in this delightful south Stirlingshire village.

SAT NAV ref: G63 9NT

EPC : BAND C
COUNCIL TAX : BAND G
TENURE : FREEHOLD

More Details

Situation: Private Garden
Council Tax Band: G
Tenure: Freehold

Contact Us

Siobhan Cox

Siobhan Cox

Director
Karen Lochead CeMAP

Karen Lochead CeMAP

Mortgage & Protection Advisor
Mortgage Calculator
Monthly payments
Please set an interest rate.

Your home may be repossessed if you do not keep up repayments on your mortgage. There may be a fee for mortgage advice. The actual amount you pay will depend upon your circumstances.

Tax Calculator
LBTT calculator for properties purchased in Scotland. Stamp Duty calculator for properties purchased in England.
Land & buildings transaction tax (LBTT)
= £0
New build house with stone and timber cladding

Looking To Sell Or Let?

Rettie is one of the most trusted and well-respected names in property. Our unrivalled market knowledge helps people from around the world buy, sell, let and develop property in Scotland and the North East of England - from city apartments and rural cottages to large townhouses and prime country homes, farms and estates. We deal with some of the most prestigious properties on the market, but provide the same exceptional standards of service and value for money to all our clients.