10 Kilmardinny Drive, Bearsden, G61 3PD

Bearsden, G61 3PD
Sold
Pin View on map

Offers Over £358,000

House

Semi Detached House

Bed

3 Bedrooms

Bathroom

2 Bathrooms

Reception

2 Reception Rooms

Tree

Private Garden

Garage

Garage

Parking

Off Street Parking

Telephone

Property Description

An extended, chalet style, Semi-Detached House in really fine order and located within the Kilmardinny district, nearby Gartconnell and the beauty spot of Kilmardinny Loch and surrounding woodland.
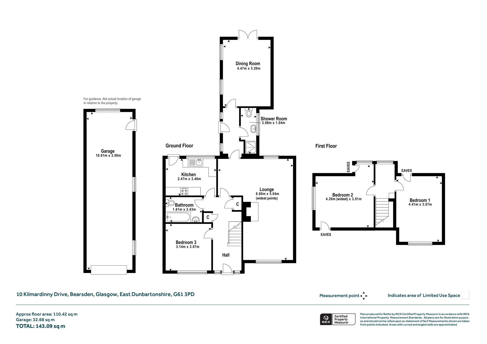
The extension adds another public room, a rear hallway, and shower room to compliment a spacious lounge, kitchen, 3 bedrooms, bathroom and reception hall. It is all double glazed (uPVC framed), has a gas central heating system with an A-rated Ideal Logic Combi 35 boiler. There is a modern alarm system and at the end of a long, three to four car, drive is a tandem style double garage, in front of which is a carport.

  • Hall with two store cupboards
  • Lounge with fireplace with living flame gas fire
  • Bright rear hallway with “back door”
  • Dining/Living Room with French doors
  • Very smart Wren Kitchen with appliances
  • Ground floor Bedroom (Bed 3)
  • Bathroom, fully tiled
  • Shower Room, fully tiled
  • Staircase to upper landing with window
  • 2 further double Bedrooms

The subjects are very nicely presented with walls in neutral white and all carpets in a light brown self-colour, the bathroom and shower room fully tiled. The Wren kitchen was installed by our client and features pale grey coloured Shaker units with grey oak style laminate worktops and matching wall panels. Integrated appliances include-stainless steel 4-burner gas hob, oven, cooker hood, dishwasher, fridge-freezer, free standing washing machine. The bathroom and shower room both have white suites and both feature chrome towel radiators.

The garden is of a surprisingly good size, for this type of property, and is long and fairly broad. The majority lies to the rear where it is bordered by wall, fencing, and hedging. It lies mainly to grass and with a large slab patio area. A sun deck is accessed via the French doors in the dining/living room. The front garden is more compact and again lies to grass.
For those with children the school catchment is Bearsden Primary (at Bearsden Cross) and the high-performing Bearsden Academy. Also available is St Nicholas Primary on Duntocher Road and the private High School of Glasgow Junior School on Ledcameroch Road.

Bearsden remains one of Glasgow's most sought-after suburbs in which to reside. It is well served by shops, cafes, restaurants, clubs, and societies. The excellent and relatively new, local authority sports centre, the Allander, is a wonderful local facility to have. There are churches of various denominations, dentist and doctor surgeries. Just south of The Cross is Bearsden Railway station with its regular services to the West End and to Glasgow City centre. Daily there are services to Edinburgh Waverley.

Sat NAV ref: G61 3PD

EPC BAND : D
COUNCIL TAX : BAND F
TENURE : FREEHOLD

More Details

Situation: Private Garden
Council Tax Band: F
Tenure: Freehold

Contact Us

Siobhan Cox

Siobhan Cox

Director
Karen Lochead CeMAP

Karen Lochead CeMAP

Mortgage & Protection Advisor
Mortgage Calculator
Monthly payments
Please set an interest rate.

Your home may be repossessed if you do not keep up repayments on your mortgage. There may be a fee for mortgage advice. The actual amount you pay will depend upon your circumstances.

Tax Calculator
LBTT calculator for properties purchased in Scotland. Stamp Duty calculator for properties purchased in England.
Land & buildings transaction tax (LBTT)
= £0
New build house with stone and timber cladding

Looking To Sell Or Let?

Rettie is one of the most trusted and well-respected names in property. Our unrivalled market knowledge helps people from around the world buy, sell, let and develop property in Scotland and the North East of England - from city apartments and rural cottages to large townhouses and prime country homes, farms and estates. We deal with some of the most prestigious properties on the market, but provide the same exceptional standards of service and value for money to all our clients.