Plot, 27 Dumbrock Road, Strathblane, G63 9EG

Strathblane, G63 9EG
Sold
Pin View on map

Offers Over £175,000

Parking

Off Street Parking

Telephone

Property Description

  • Building plot with planning consent.
  • Permission for single, detached dwelling.
  • Site, and garden, of approximately 0.15 acres.
  • In gap site between traditional properties.
  • South facing rear garden.
  • Central village location.
  • Consent under Planning Reference:
  • Full details via Stirling Council Planning Portal.24/00617/FUL

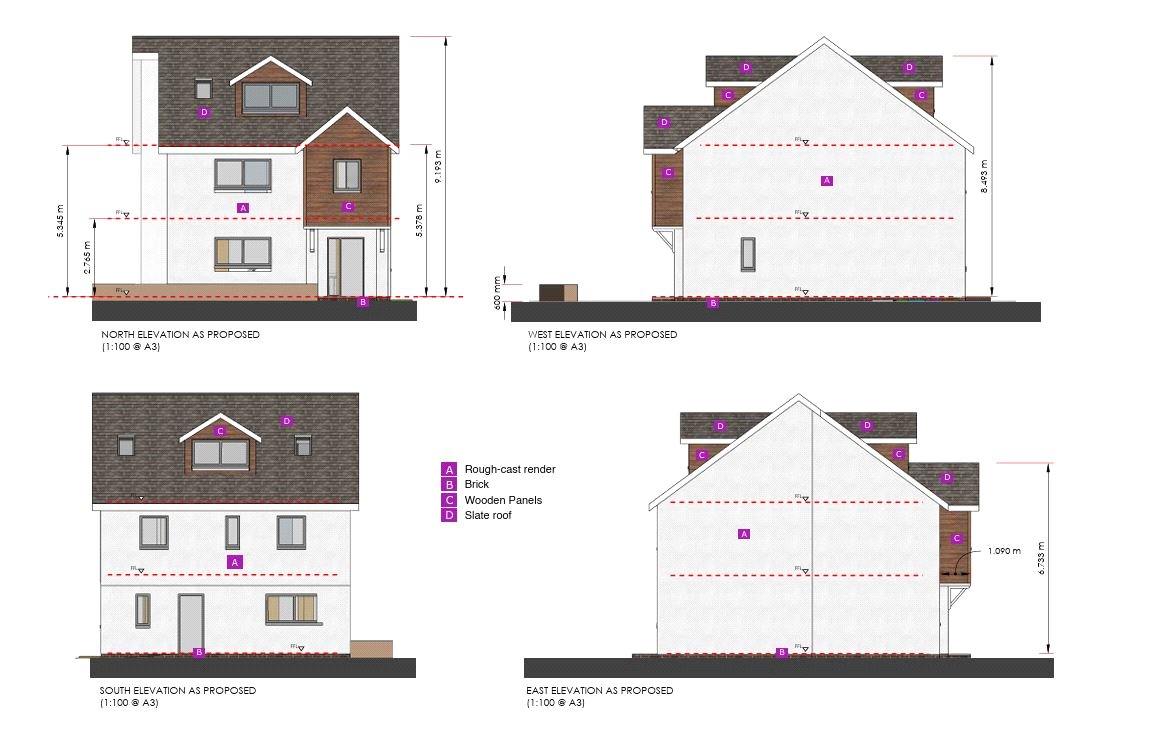
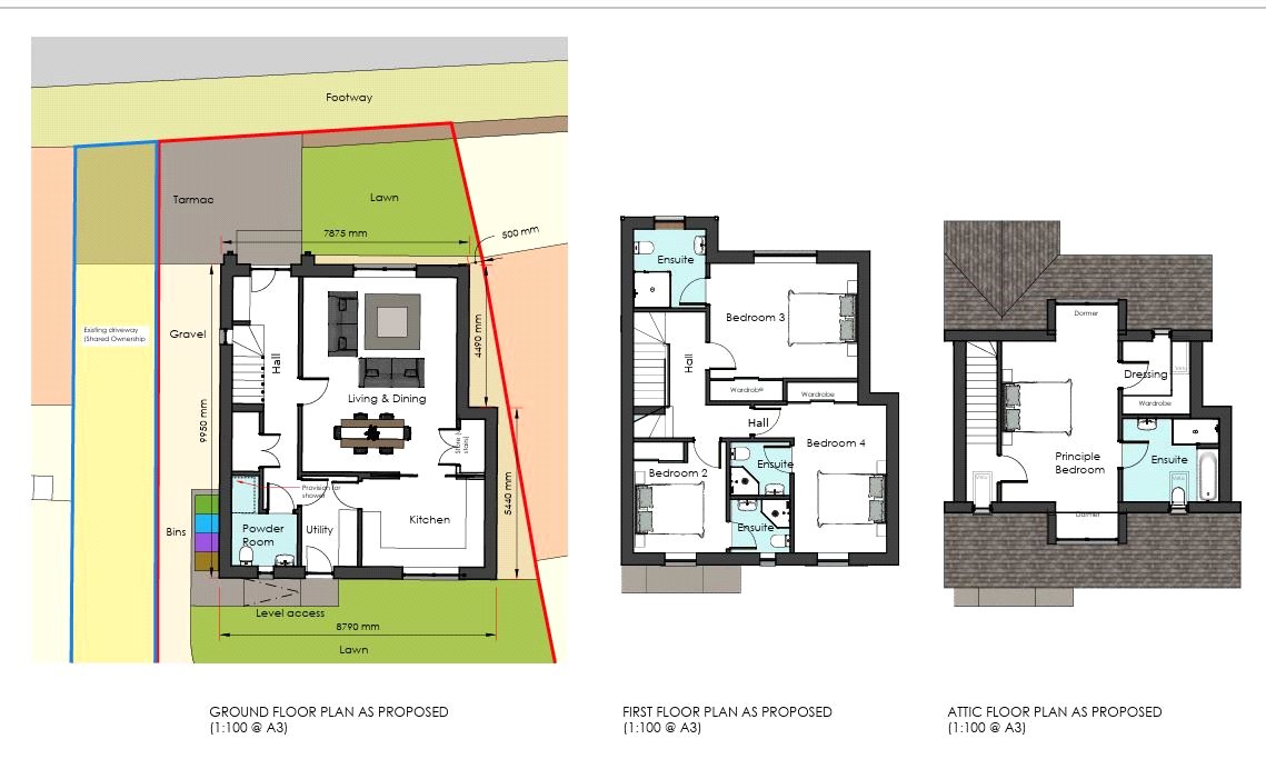
Planning Permission granted for a single, detached, house situated towards the front of the Plot, broadly in line with the building line of the neighbouring properties.

Originally the side garden of the traditional house at 27-29 Dumbrock Road the Plot at 27 Dumbrock Road has an established setting at the heart of the village with an extensive area of garden ground to the rear (south) providing, in total, a Plot/garden size of some 0.15 acres.

The condition upon which permission is granted can be seen by accessing Stirling Council’s Planning Portal: www.stirling/gov.uk and use the Planning Dropdown Menu utilising the Planning Reference 24/00617/FUL

Access, as clients will see from the site plan, is via a common vehicular access between the Plot and the house at No. 29 which will provide, then, private access to the parking area for the Plot, to the rear of the built house. Mains services are not upon the plot but are seen to be adjacent to Dumbrock Road. None-the-less a purchaser, and their solicitor, should satisfy themselves in this regard.

This is a rare opportunity, indeed, to acquire a single home Building Plot within this much-admired south Stirlingshire Village. A wonderful chance, therefore, for the purchaser to create something quite personal.

The location is excellent, just along from the Village Health Centre, around the corner from the Village’s highly thought of Primary School and its under construction new Library. On Old Mugdock Road is a well-stocked Co-op Store. The village sits delightfully at the foothills of The Campsie Fells and provides kilometres of wonderful walks/bike routes literally on your doorstep. It is, though, only some 4 miles from the suburb of Milngavie. Best of both worlds really – country living but extensive amenities, including a Railway Station, but a 10-minute drive away.

Sat Nav Ref: G63 9eg

Please note that some of the images are computer generated

More Details

Situation: Contact branch
Council Tax Band: Contact branch
Tenure: Freehold

Contact Us

Siobhan Cox

Siobhan Cox

Director
Karen Lochead CeMAP

Karen Lochead CeMAP

Mortgage & Protection Advisor
Mortgage Calculator
Monthly payments
Please set an interest rate.

Your home may be repossessed if you do not keep up repayments on your mortgage.

There may be a fee for mortgage advice. The actual amount you pay will depend upon your circumstances. The fee is up to 1% but a typical fee is 0.3% of the amount borrowed.

Tax Calculator
LBTT calculator for properties purchased in Scotland. Stamp Duty calculator for properties purchased in England.
Land & buildings transaction tax (LBTT)
= £0
New build house with stone and timber cladding

Looking To Sell Or Let?

Rettie is one of the most trusted and well-respected names in property. Our unrivalled market knowledge helps people from around the world buy, sell, let and develop property in Scotland and the North East of England - from city apartments and rural cottages to large townhouses and prime country homes, farms and estates. We deal with some of the most prestigious properties on the market, but provide the same exceptional standards of service and value for money to all our clients.