Property Description
- Large, detached chalet style villa by John Lawrence
- Located in prime, coveted Milngavie address
- Significantly augmented via addition of full width ‘dormer’ to rear
- Commanding elevated position with simply stunning views across Milngavie/Bearsden
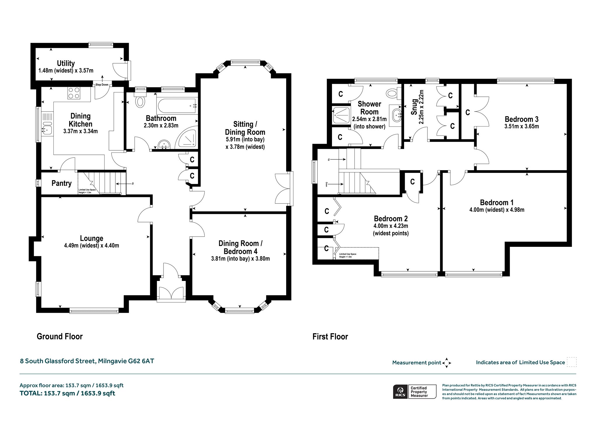
- Flexible living arrangement of six principal apartments (plus study/dressing area and breakfasting kitchen), floor area of approx. 1,653 ft²
- Great garden space to rear and side
Sitting proud in the midst of this premier Milngavie address, this brilliant chalet style villa was originally constructed in the late 1950’s by renowned builder John Lawrence and has been creatively adapted and extended through the implementation of a full width ‘dormer’ window projection to its upper rear elevation. Well finished across the accommodation and very much ‘ready to go’ for the prospective purchaser, there is exciting scope to redecorate/redesign according to ones’ own taste and vision. A fabulous example of these impressive family homes and must see for those looking for the cachet of a particularly coveted address and a property with exceptional views from inside and out.
As previously noted, the property is elevated from street level, with a half return, shallow tread stair (laid to quality flags) providing arrival to the front door and cutting through a beautifully stocked decorative front garden. At current, parking is on street (South Glassford is a particularly wide street), with opportunity for the incoming purchaser to make their own investigations as to creating off street driveway parking – approvals from the local authority would have to be sought but plenty of precedent within the address.
Summary of Accomodation
- Double leaf storm door entry to vestibule
- Welcoming reception hallway with storage off, stair to first floor
- Bay windowed lounge with feature fireplace, exceptional views
- Bay windowed formal dining room (could be utilised as additional bedroom)
- Large sitting/family room with French Doors to ‘sitooterie’
- Breakfasting kitchen – Hand built and fitted, in Scottish Oak, selection of integrated appliances, pantry off
- Dedicated utility/plant room
- Spacious four
- piece family bathroom, additional shower room to first floor
- Three first floor double bedrooms and snug/home office/dressing area
To the rear, the property features fabulous garden space – an expanse of lawn bordered with a variety of perennial and annual specimens, a section laid to stone chips that houses two sheds and leaves plenty of space for outdoor furniture and the aforementioned ‘sitooterie’ accessed directly from the family room to rear. All very well tended and perfectly set up to enjoys those wonderful views and the westerly orientation (best of afternoon/evening sun).
Situation
Enjoying a very convenient location not far from The Village Centre and falling within the catchment for the excellent local primary school of Milngavie Primary, the property is really well placed for Milngavie Railway Station and for the excellent shops and services the village affords. The property is positioned just East of Milngavie Village Centre which in itself provides a pedestrianised shopping centre with a variety of restaurants, cafes and shops including a Marks & Spencer Food Hall, Tesco, and a Waitrose situated further afield off Main Street. Milngavie Railway station offers a regular service in to Glasgow West End and Glasgow City centre along with a direct service to Edinburgh Waverley. Milngavie offers excellent Primary & Secondary education and there are a variety of sports centres nearby. Glasgow City Centre can be reached by car, bus or train in around 25 minutes under normal travel conditions.
Sat Nav Ref: G62 6at
EPC BAND : D
COUNCIL TAX : BAND G
TENURE : FREEHOLD
More Details
Situation: Private Garden
Council Tax Band: G
Tenure: Freehold
Your home may be repossessed if you do not keep up repayments on your mortgage. There may be a fee for mortgage advice. The actual amount you pay will depend upon your circumstances.
Similar Properties
Looking To Sell Or Let?
Rettie is one of the most trusted and well-respected names in property. Our unrivalled market knowledge helps people from around the world buy, sell, let and develop property in Scotland and the North East of England - from city apartments and rural cottages to large townhouses and prime country homes, farms and estates. We deal with some of the most prestigious properties on the market, but provide the same exceptional standards of service and value for money to all our clients.
