Property Description
- Simply stunning architect designed home in Balfron
- Part of a quiet address with breathtaking views towards Fintry Hills/Dumgoyne
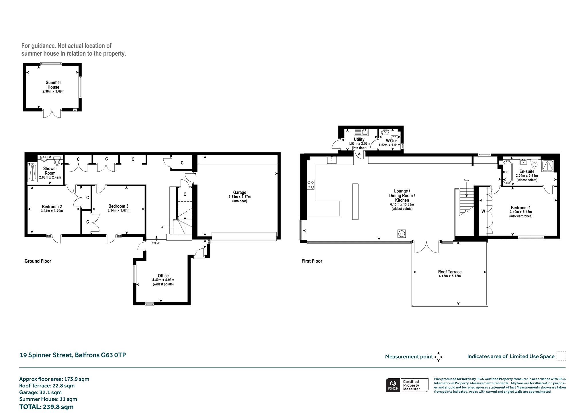
- Generous accommodation over two principal levels – floor space c. 1,870 sq.ft
- Beautifully finished throughout
- Three bedrooms, two bathrooms
- Showstopping lounge/dining/kitchen area with 8kw multifuel fireplace – picture window formations with exceptional views, measuring to near 14m in length. South facing frontage makes the most of the sun throughout the day, providing exceptional thermal heating and retainment.
- Underfloor heating throughout the property with individually controllable room thermostats
- Variety of outdoor spaces – raised roof terrace directly accessible via sliding doors from open plan area, private garden laid to stone chips, decking
- Off street driveway parking, garage with remotely operated roller door (integral access), large garden shed
- Garden room/home office
A truly stunning, individually commissioned house built c.2004, No.19 Spinner Street is an exceptionally stylish property that will appeal to a variety of buyers looking for a home that delivers on both aesthetic and practical terms. The property has been designed, from inside to out, to highlight the wonderful views towards the Fintry Hills and is very well finished indeed across the accommodation. Equally well suited to smaller/mature families and couples, early first-hand inspection is advised.
Highlights of the specification are many and varied – triple glazed NorDan windows finished in anthracite grey, gas central heating system with thermostatic control to each floor, quality engineered flooring to majority of accommodation to name but a few. Initial inspection will showcase the attractive façade of white render, red brick and timber cladding.
Summary of Accommodation
- Hallway with plenty storage off
- Home office/Sitting area
- Large open plan living/dining/kitchen
- Three double bedrooms
- Shower room and ensuite bathroom
- Utility room/w.c
- Full length attic for storage
Situation
The house is located but a short stroll from the village centre and here you will find a good range of local amenities and shops, including a large Co-op store, the village’s famous Doyle’s Café, pharmacy, opticians, butchers, bakery, village pub and an excellent health centre. Outstanding local Primary and Secondary schooling can be found within the nucleus of the village centre. A bus service connects the village to surrounding districts and, indeed, to Glasgow City. The village has a golf course and is surrounded by some stunning countryside. Glasgow City Centre is approximately eighteen miles away, with Stirling some nineteen miles. Both locations are accessible within approximately thirty to forty minutes via strong road links.
Sat Nav Ref: G63 0tp
EPC : BAND C
COUNCIL TAX : BAND G
TENURE : FREEHOLD
More Details
Situation: BalconyPrivate Garden
Council Tax Band: G
Tenure: Freehold
Your home may be repossessed if you do not keep up repayments on your mortgage. There may be a fee for mortgage advice. The actual amount you pay will depend upon your circumstances.
Similar Properties
Looking To Sell Or Let?
Rettie is one of the most trusted and well-respected names in property. Our unrivalled market knowledge helps people from around the world buy, sell, let and develop property in Scotland and the North East of England - from city apartments and rural cottages to large townhouses and prime country homes, farms and estates. We deal with some of the most prestigious properties on the market, but provide the same exceptional standards of service and value for money to all our clients.
