Property Description
Two-bedroom Modern Flat
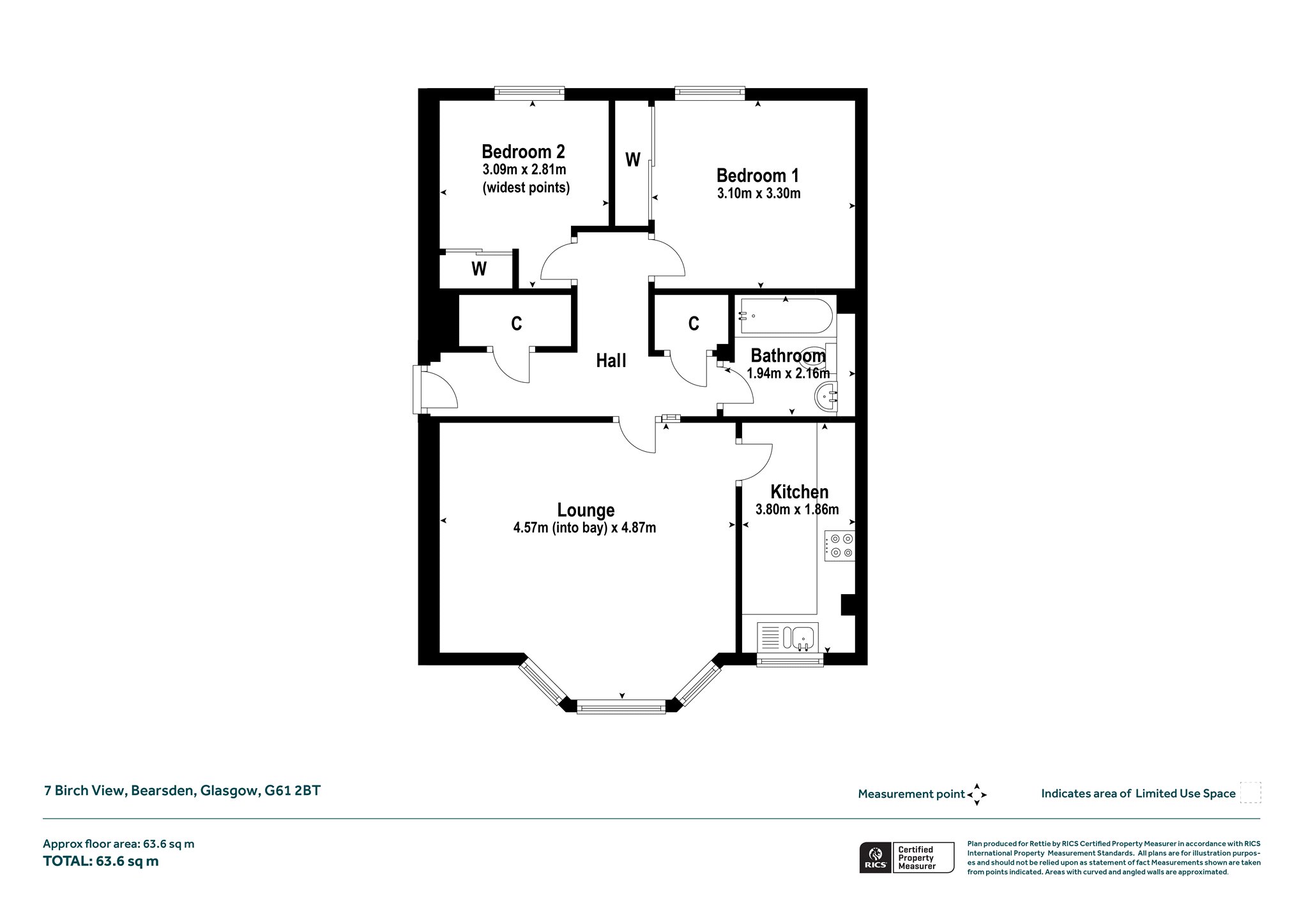
Ground floor
Convenient location at Hillfoot
Handy for railway station
Built by Cala Homes (1980s)
Lounge with bay window
Gas central heating (new boiler, 2021)
Double glazed
Birch View is a lovely little development of 42 flats, in 3 blocks, built by Cala Homes in the 1980s. A cul-de-sac arrangement (only one access/egress road) it has ample residents parking provision and has an exceedingly handy location by Hillfoot railway station.
One of only 6 flats sharing this entrance, No.7 is a two-bedroomed ground floor flat with a lovely bay window lounge, kitchen, and bathroom. Its hallway has good storage provision. Windows are timber framed and double glazed. The gas central heating system had a new Worcester combination boiler installed in 2021.
Entry to the carpeted communal hall is protected by a door entry phone system. The development has areas of planted landscaping as well as areas of grass particularly to the rear of the building(s) where there are individual bin stores for each entrance. The development is managed by the factors Hacking and Paterson.
Summary of Accommodation
Residents entrance hall with security entry phone system. Private reception hall with two hall cupboards. A nicely proportioned lounge with bay window. Kitchen - galley style, with appliances as seen and of a vintage where buyer may look to upgrade. Two bedrooms, both with fitted mirrored wardrobes. Bathroom with modern white suite, shower attachment to bath taps, and with tiling to half height on walls and to full height around the bath area.
Location
Birch view is at Hillford by the railway station with a backdrop to the wooded grounds of Douglas Park Golf Club and Boclair, the westerly view to the front a more deciduous one towards the railway line beyond the immediate residents parking and ground planting. It is so handily placed for the facilities of Hillfoot and just along the road from Kessington (large Asda, small Sainsbury's convenience store). Bearsden Cross, the heart of Bearsden, is about half mile to the west.
Sat NAV ref: G61 2BT
EPC: BAND C
COUNCIL TAX : BAND E
TENURE : FREEHOLD
More Details
Situation: Communal Garden
Council Tax Band: E
Tenure: Freehold
Your home may be repossessed if you do not keep up repayments on your mortgage. There may be a fee for mortgage advice. The actual amount you pay will depend upon your circumstances.
Similar Properties
Looking To Sell Or Let?
Rettie is one of the most trusted and well-respected names in property. Our unrivalled market knowledge helps people from around the world buy, sell, let and develop property in Scotland and the North East of England - from city apartments and rural cottages to large townhouses and prime country homes, farms and estates. We deal with some of the most prestigious properties on the market, but provide the same exceptional standards of service and value for money to all our clients.
