Property Description
- Successfully extended four bedroomed semi-detached villa
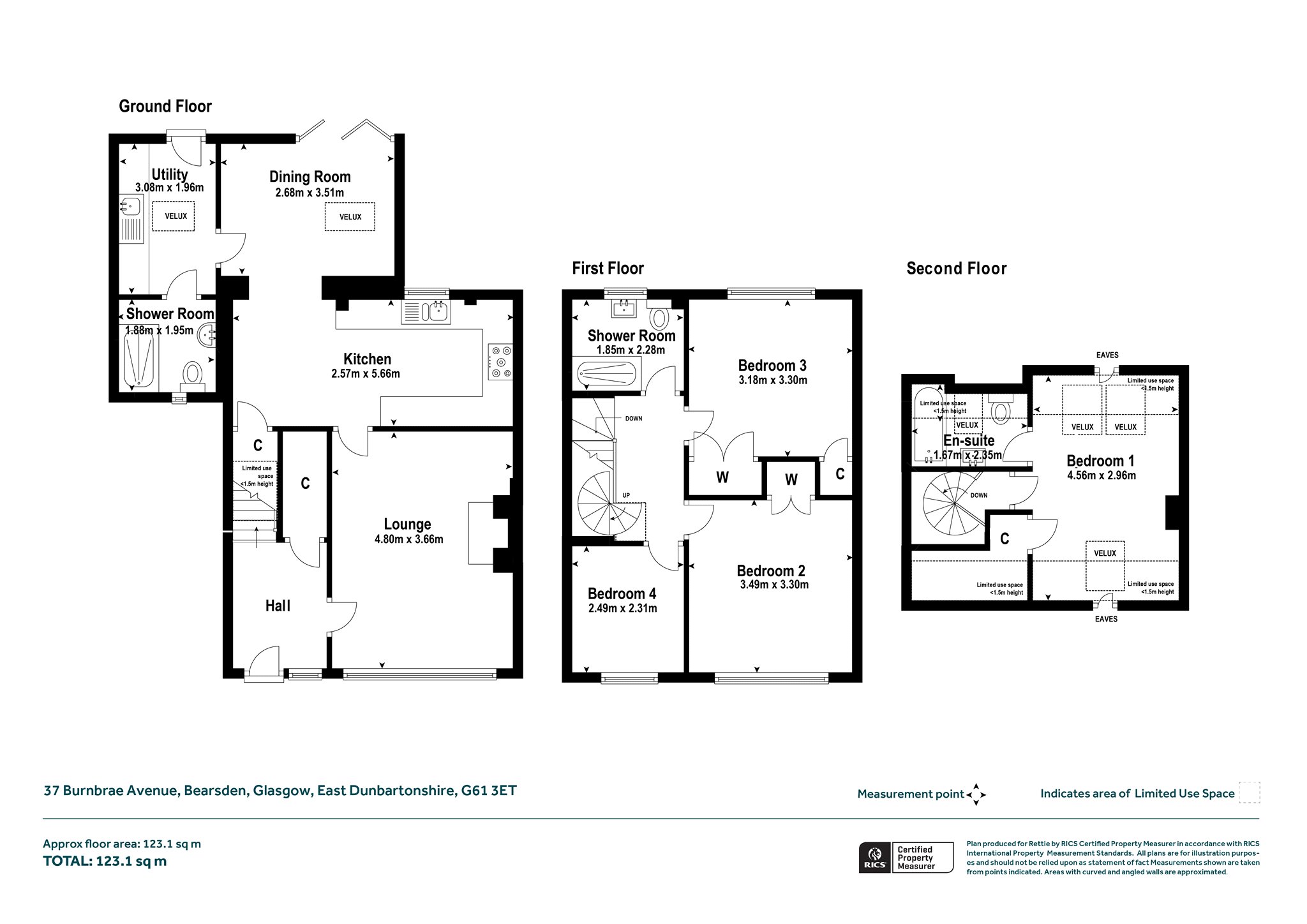
- Generous accommodation over three levels – four bedrooms, two public rooms, three bathrooms, kitchen, dedicated utility room
- Beautifully finished throughout
- Fabulous pitched roof extension to rear – family/dining room/dedicated utility area/shower room
- Very nicely maintained garden space
- Off street drive parking
- Mosshead Primary/Bearsden Academy catchment area
A hugely impressive example of the semi-detached villas by John Lawrence that form part of Bearsden’s consistently popular Burnbrae district, this beautifully presented family home has been successfully extended to its rear elevation and further augmented via the conversion of the former attic space into a bedroom with ensuite shower room.
The property enjoys a hugely appealing position on Burnbrae Avenue, overlooking open green space and the treeline of the Kilmardinny Loch Nature Reserve to the front, with very private, low maintenance garden space to the rear. Between 2012 – 2014, our clients embarked upon a comprehensive programme of internal upgrading/extension work, with the accommodation immaculately presented and very much ‘ready to go’ for the prospective purchaser. A must see for families looking to acquire property in close proximity to the excellent schools/abundant green space that the area is renowned for.
Highlights of the specification are many and varied – contemporary PVCu double glazing, gas central heating via a modern Vaillant combi boiler, oak floors through much of the ground floor, oak doors throughout the property, contemporary tiled bathrooms, quality appliances to kitchen.
Summary of Accommodation
- Hallway with large storage cupboard off
- Lounge with picture window formation, living flame gas fireplace
- Contemporary fitted kitchen – white shaker style units/contrast butcherblock worktops, range of quality integrated appliances (majority by Neff/Bosch)
- Pitched roof dining/family area – Sliding/bi
- fold doors to deck/rear garden
- Dedicated utility room
- Two fully tiled shower rooms – both with walk in enclosures, mains pressure showers – one to ground floor, one to first
- Three double bedrooms, additional single room – Full bedroom suite to second floor with ensuite bathroom, amazing views across district/towards Campsie Fells from Velux windows
Externally, the property features well laid out garden space to front and rear, with the rear garden featuring areas of timber decking, patio and lawn – a lovely combination with space for all the family.
Situation
The property is within the Burnbrae district, which is, undoubtedly, one of the more popular districts of Bearsden, due to the quality and proximity of its excellent primary school and the nearby Kilmardinny Loch and its surrounding woodland (Craigdhu Burn). Additionally, just across Milngavie Road, is the local authority Allander Sports Centre with its swimming pool and excellent facilities and, along Milngavie Road, the 24 hour fitness facilities of Pure Gym. At the end of Mosshead Road is a terrific children’s playpark. For more major facilities, there is, in nearby Milngavie, a Waitrose, Tesco and Marks & Spencer’s (food hall) and, in Bearsden itself, a large Asda, another Marks & Spencer’s (food hall) and a broad cross section of independent retailers. Transport services include bus services on nearby Milngavie Road, with nearest railway stations at Hillfoot (Bearsden) or at Milngavie, with additional stations in Bearsden – just south of Bearsden Cross and at Westerton.
Sat Nav Ref: G61 3et
EPC : BAND C
COUNCIL TAX : BAND E
TENURE : FREEHOLD
More Details
Situation: Private Garden
Council Tax Band: E
Tenure: Freehold
Your home may be repossessed if you do not keep up repayments on your mortgage. There may be a fee for mortgage advice. The actual amount you pay will depend upon your circumstances.
Similar Properties
Looking To Sell Or Let?
Rettie is one of the most trusted and well-respected names in property. Our unrivalled market knowledge helps people from around the world buy, sell, let and develop property in Scotland and the North East of England - from city apartments and rural cottages to large townhouses and prime country homes, farms and estates. We deal with some of the most prestigious properties on the market, but provide the same exceptional standards of service and value for money to all our clients.
