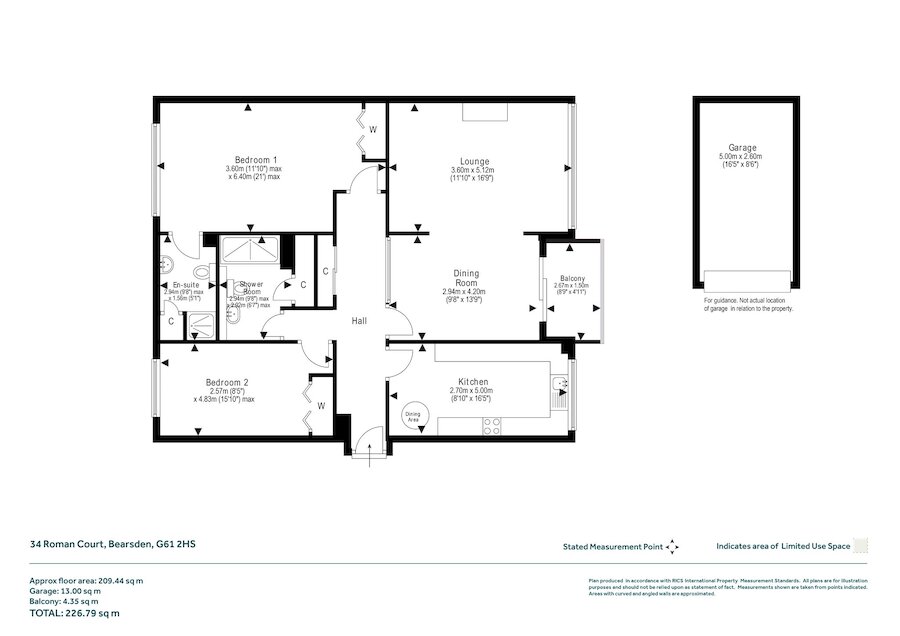
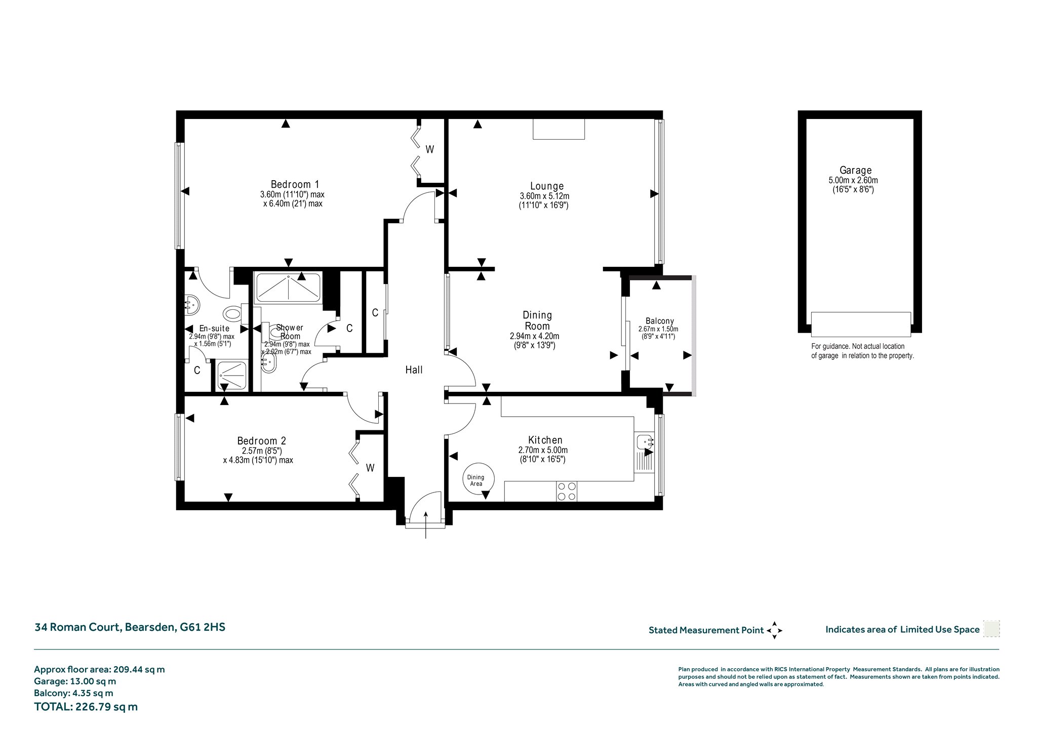
Property Description
- Large two bedroomed second floor apartment
- Forming part of Bearsden’s consistently popular Roman Court development
- South facing balcony, lovely aspects over ancient Roman ruins
- Spacious, well appointed accommodation
- Large tandem garage, ample residents parking
- Security controlled entry system
- PVCu double glazing, gas central heating
- Fantastically convenient position for Bearsden Cross
This is the largest style of two-bedroom flats within the highly admired Roman Court development, constructed around 1980 and upon the line of The Antonine Wall (AD 140), the Roman bathhouse remains for which are located at the eastern end of the development, a World Heritage Site.
Essentially the same footprint of the three bedroom flats the space afforded is impressive. With this flat this is considerably enhanced by its very bright second floor position (overlooking the aforementioned ruins), the principal rooms, and balcony, facing southwards. Assessment of our marketing materials will showcase the fantastic condition of the property, with a fastidious approach to maintenance and upgrading employed over the course of ownership. A property very much ‘ready to go’ for the prospective purchaser and one very much deserving of prompt first hand inspection.
Summary of Accommodation
- Reception hallway with storage off
- Large lounge/dining area (balcony off)
- Contemporary fitted kitchen
- Two large double bedrooms
- Shower room en suite to principal bedroom, separate shower room
Factor - S G Property Management of 272 Bath Street, Glasgow, G2 4JR to which quarterly charges are approx. £230. Includes, amongst other things, a communal building insurance policy. They look after the grounds which are nicely maintained with carparking provision for residents/visitors.
Situation
Roman Court is located just a few hundred yards to the east of Bearsden Cross. As such, amenities and shops are literally on your doorstep. Bearsden railway station is just south of The Cross with Hillfoot railway station about ½ mile east.
Sat Nav Ref: G61 2hs
EPC : BAND C
COUNCIL TAX : BAND F
TENURE : FREEHOLD
More Details
Situation: Balcony
Council Tax Band: F
Tenure: Freehold
Your home may be repossessed if you do not keep up repayments on your mortgage.
There may be a fee for mortgage advice. The actual amount you pay will depend upon your circumstances. The fee is up to 1% but a typical fee is 0.3% of the amount borrowed.
Similar Properties
Looking To Sell Or Let?
Rettie is one of the most trusted and well-respected names in property. Our unrivalled market knowledge helps people from around the world buy, sell, let and develop property in Scotland and the North East of England - from city apartments and rural cottages to large townhouses and prime country homes, farms and estates. We deal with some of the most prestigious properties on the market, but provide the same exceptional standards of service and value for money to all our clients.
