Property Description
A pre-war, four-apartment, two-bedroom Semi-Detached Bungalow set upon a charming garden (west facing at rear) in the highly prized location of Tannoch and in the prime address of Craigmillar Avenue.
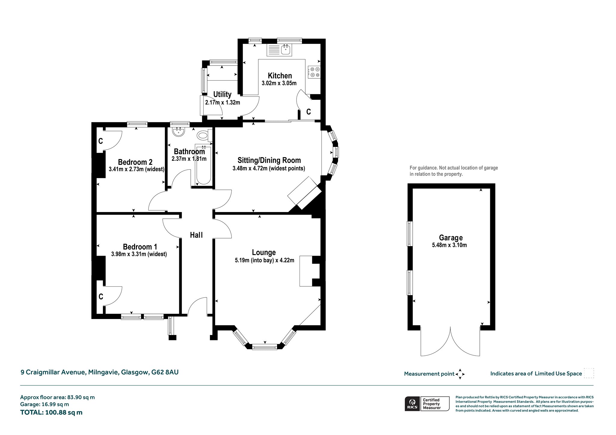
Semi-detached bungalow
2 public rooms
2 bedrooms
Kitchen and bathroom
Gas central heating and double glazing
Single garage (old)
Renovation and modernising required
A brick-built house dating from the 1930's, the property is dated in respect of specification generally but will also require upgrading works (refer to home report) to bring it fully up to date. Priced accordingly, a great opportunity presents to acquire and then to invest, and upgrade, to create a home suited to one’s requirements in this highly sought after Milngavie location. As neighbouring properties have done there is, subject to obtaining the required planning consents, scope to extend the house both at ground floor level and by developing the roof space.
Summary of Accommodation
Entrance porch(open). Hall. Lounge with bay window. Dining room with oriel bay window. Kitchen, with appliances as seen. Rear porch. Two bedrooms. Bathroom.
Central heating is mains gas with a Vokera combination boiler. All windows are double glazed, the exception being the two single glazed, timber framed, windows in the rear porch. The insulated and part floored attic can be accessed via a loft ladder, and hatch, in the reception hall.
Outside
The level garden is just delightful, almost cottage like at the rear, with extensive planting and good screening. At the end of a gravel driveway is a detached single, timber, garage (old). The very private rear garden is westerly orientated, ideal to capture the afternoon and evening sun.
Location
Tannoch is the area immediately to the north of Milngavie village centre and is home to the area's grandest homes. Its centrepiece is Tannoch Loch (just around the corner from the house) and close by are the walks around Craigmaddie and Mugdock reservoirs, Drumclog Moor, and Allander Park. At Mugdock is Mugdock Country Park. The house, whilst enjoying the peace of the Craigmiller Avenue address, is only ½ mile to the village centre and less to the railway station. Milngavie is particularly well served for shops and amenities. Truthfully, it is just a great place to live.
Whilst requiring some significant investment this is an equally significant opportunity to acquire a home in this highly sought after address.
Sat nav ref: G62 8AU
EPC : BAND D
COUNCIL TAX : BAND F
TENURE : FREEHOLD
More Details
Situation: Private Garden
Council Tax Band: F
Tenure: Freehold
Your home may be repossessed if you do not keep up repayments on your mortgage. There may be a fee for mortgage advice. The actual amount you pay will depend upon your circumstances.
Similar Properties
Looking To Sell Or Let?
Rettie is one of the most trusted and well-respected names in property. Our unrivalled market knowledge helps people from around the world buy, sell, let and develop property in Scotland and the North East of England - from city apartments and rural cottages to large townhouses and prime country homes, farms and estates. We deal with some of the most prestigious properties on the market, but provide the same exceptional standards of service and value for money to all our clients.
