Property Description
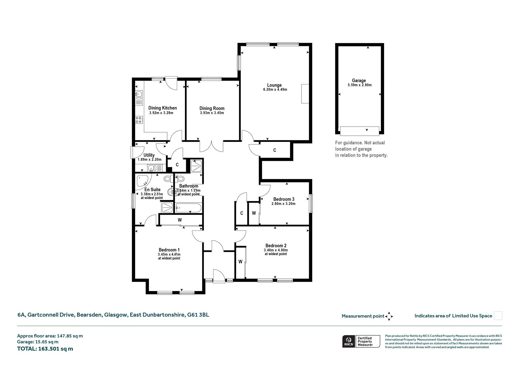
An astonishing main door, ground floor, lower Villa Flat with own, south facing, private garden. A very sizeable apartment of some 1650 sq ft it has five full apartments with 3 bedrooms and 2 public rooms. It truly is a perfect property for those looking for something rather special for early and full retirement – maybe a few less rooms than the current large family home but certainly not less space.
A superb main door luxury apartment.
Extremely spacious and particularly well designed.
Ground floor, in building of only two flats (both main door) – looks like a detached house
Sizeable private garden
Garage (electric door) and three-car parking bay
2 public rooms and 3 generous bedrooms.
Kitchen and utility room
2 bathrooms, with shower enclosures
Large entrance vestibule and very sizable hall.
Gas central heating and quality timber double glazing.
Description
Designed and built by the admired architect, Murray Russell, this ground floor, Main Door three bedroomed Luxury Flat is part a standalone single building that provides the appearance of a single detached house – clever design. Built approximately 25 years ago it was specifically designed for those clients seeking less rooms but not less space, it is a hugely impressive flat with its own private entrance, and a large area of south-facing private garden. It has a single garage (in a block of two, shared with the upper flat, 6B) with a remote controlled garage door plus a three-car parking bay positioned in the area of private front garden for 6A.
It is located within the highly desirable Gartconnell district and is only a few minutes’ walk (approximately half a mile) to Bearsden Cross and the wide range of shops and amenities to be found there.
The property is built with a high specification and high standards of thermal and sound insulation. The exterior is finished in attractive facing brick, Redland ashlar, and render. Windows are top quality Danish timber framed double glazed units, the window and back door in the kitchen being more recent uPVC framed units. Central heating is gas with a Worcester system boiler.
As clients will see from our floor plan, and images, the subjects are not small. As a home it will suit those clients looking to downsize from the large family home, for retirement/semi-retirement along with appealing to professional couples and individuals. For an apartment to have a utility room is quite a bonus and in addition to the main bathroom (four-piece and including a shower enclosure) there is a second four-piece ensuite bathroom to the primary bedroom. All bedrooms are doubles with Bedrooms 1 and 2 particularly generous. Storage, generally, is excellent (again see floor plan).
It is fair to confirm that the specification of the house is original and as such buyers may well look to modernise the kitchen and utility room fitments, the sanitary ware, and import their own decorative style.
Garden
The garden lies to the rear of the building (south) and lies mainly to lawn and is bounded by beech and privet hedges. There are trees and mature shrubs for interest and privacy. Across the back of the property, accessed directly from the kitchen, is a large, slabbed, sun terrace/patio. The east side of the house a path connects the front and rear and to the side of which is a continuation of the east hedge. To the front the flat has it own three-car parking bay and owns the two shrub beds in front of the bedrooms windows as well as the very nicely panted Acer bed in the northeast corner.
The main area of driveway (all monobloc) is shared with the upper flat, for each access. The garage block houses two garages with 6As being the westernmost (remote controlled electric garage door).
Location
The property being within the Gartconnell area is just to the north of Bearsden Cross and therefore within easy reach of the excellent amenities to be found there. This includes a good range of independent retailers including Fishmonger, Butcher, Cafes, Restaurants, two Pharmacies and a well-stocked Post Office. There is a Marks & Spencer Foodhall. Bus services operate nearby on Drymen Road and along Roman Road and just south of Bearsden Cross is Bearsden Railway Station with its regular links to the West End and City Centre.
Sat Nav Ref: G61 3bl
EPC : BAND C
COUNCIL TAX : BAND G
TENURE : FREEHOLD
More Details
Situation: Private Garden
Council Tax Band: G
Tenure: Freehold
Your home may be repossessed if you do not keep up repayments on your mortgage. There may be a fee for mortgage advice. The actual amount you pay will depend upon your circumstances.
Similar Properties
Looking To Sell Or Let?
Rettie is one of the most trusted and well-respected names in property. Our unrivalled market knowledge helps people from around the world buy, sell, let and develop property in Scotland and the North East of England - from city apartments and rural cottages to large townhouses and prime country homes, farms and estates. We deal with some of the most prestigious properties on the market, but provide the same exceptional standards of service and value for money to all our clients.
