Property Description
- Beautifully appointed seven apartment townhouse
- Part of luxury waterside development by Monarch Homes (2004)
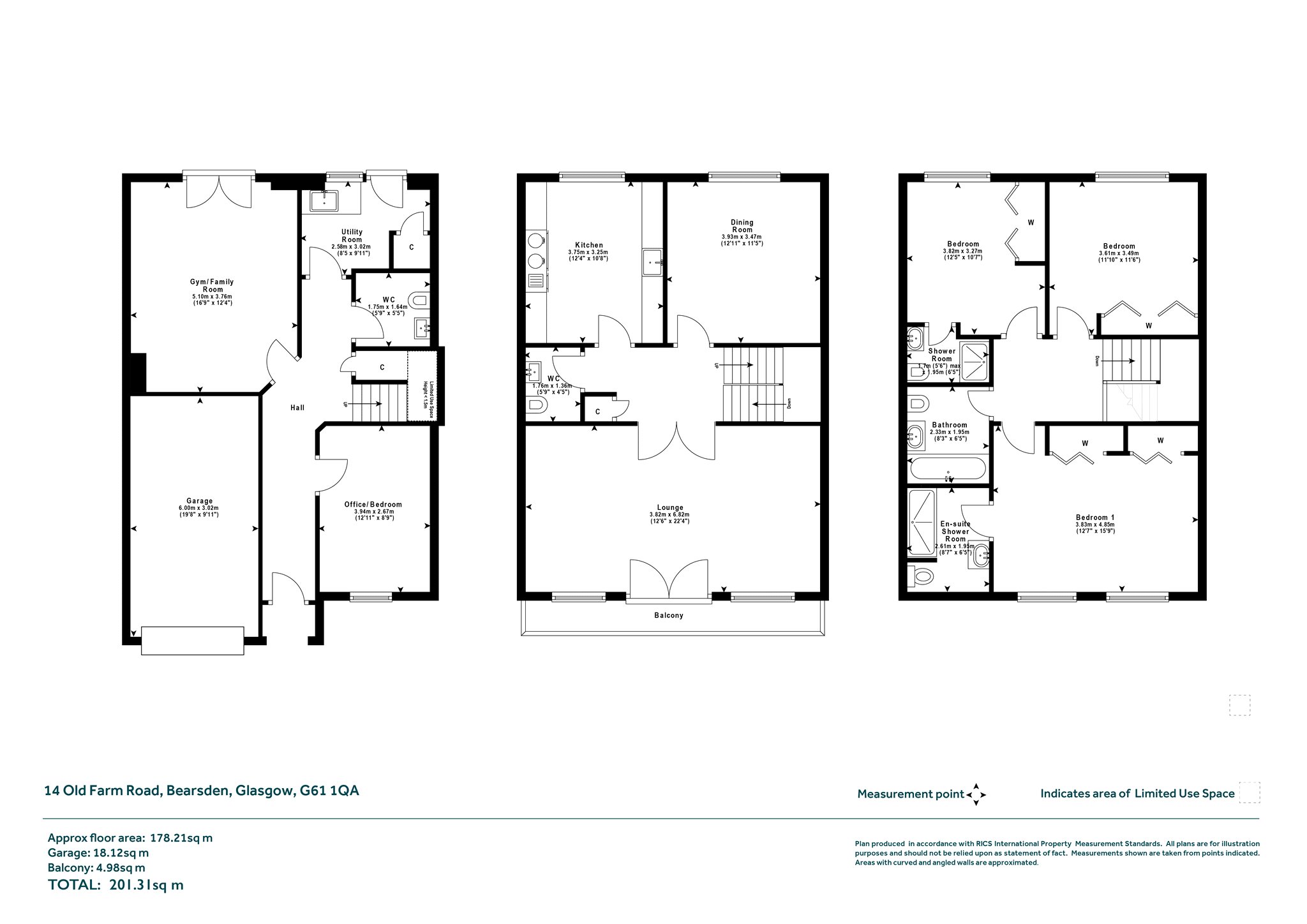
- Generous accommodation over three levels, floor space approaching 1,920 ft²
- Fabulous room sizes throughout, hugely adaptable usage
- Stunning lounge with balcony and lovely outlook onto Forth & Clyde canal
- Plenty off-street parking and single, integral garage
- Gas central heating and PVCu double glazing
Forming part of Monarch Homes successful and increasingly popular ‘Netherton Waters’ development (2004), this fully upgraded and stunningly presented townhouse should be noted for its adaptable accommodation over three principal level and enviable canal side position. Exacting in its specification, our clients have spared no expense in redesigning this well-built and cleverly designed home in their own vision. A property that will attract interest from a broad audience owing to its peaceful yet highly convenient position in striking distance to the amenities of both Bearsden and Glasgow’s vibrant West End.
Internally, the subjects are very well presented, with mainly neutral decorations complimented by subtly contrasting tones and quality fixtures and fittings.
Summary of Accommodation
- Entrance vestibule
- Reception hallway with storage off and stair to first floor
- Cloakroom w.c
- Dedicated utility room
- Study/Home Office (could be utilised as additional bedroom depending upon requirements)
- Family Room/Gym – French door access to rear garden
- Half landing with w.c off
- Spacious lounge with French door access to south facing balcony
- Contemporary fitted kitchen – shaker style units, Belfast sink, wine cooler, ‘Lacanche’ Range style cooker and matching hood
- Three large double bedrooms
- Three
- piece family bathroom (over bath shower with rain style fitting), two ensuite shower rooms
Situation
Westerton is set to the southerly fringe of Bearsden, just to the north of Anniesland, and is highly popular due in no small part to the railway station and its regular services into Glasgow and beyond. There are several enjoyable woodland walks on your doorstep. Also at Westerton is a library and a very handy general store. Major shopping facilities can either be found in Bearsden (Asda, Sainsbury’s, Marks & Spencer’s Simply Food) or at Anniesland (Morrisons, Aldi or Marks & Spencer’s Simply Food). Westerton train station provides excellent rail links to Glasgow (West End/City) and beyond.
A fabulous location in Bearsden and just a short distance to Glasgow’s lively West End.
Sat Nav Ref: G61 1qa
EPC : BAND B
COUNCIL TAX : BAND G
TENURE : FREEHOLD
More Details
Situation: Private Garden
Council Tax Band: G
Tenure: Freehold
Your home may be repossessed if you do not keep up repayments on your mortgage. There may be a fee for mortgage advice. The actual amount you pay will depend upon your circumstances.
Similar Properties
Looking To Sell Or Let?
Rettie is one of the most trusted and well-respected names in property. Our unrivalled market knowledge helps people from around the world buy, sell, let and develop property in Scotland and the North East of England - from city apartments and rural cottages to large townhouses and prime country homes, farms and estates. We deal with some of the most prestigious properties on the market, but provide the same exceptional standards of service and value for money to all our clients.
