Offers Over £185,000
First Floor Apartment
2 Bedrooms
2 Bathrooms
1 Reception Room
Communal Garden
Off Street Parking
Property Description
A particularly well designed 2 bedroom, first-floor, Modern Flat in a very conveniently located, small, development of only six flats and two attached villas.
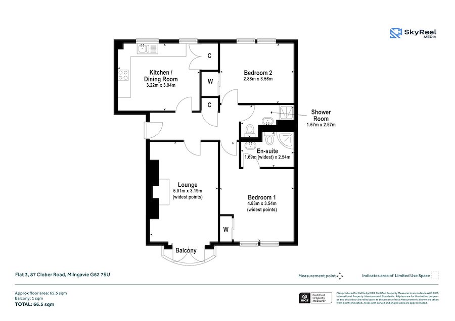
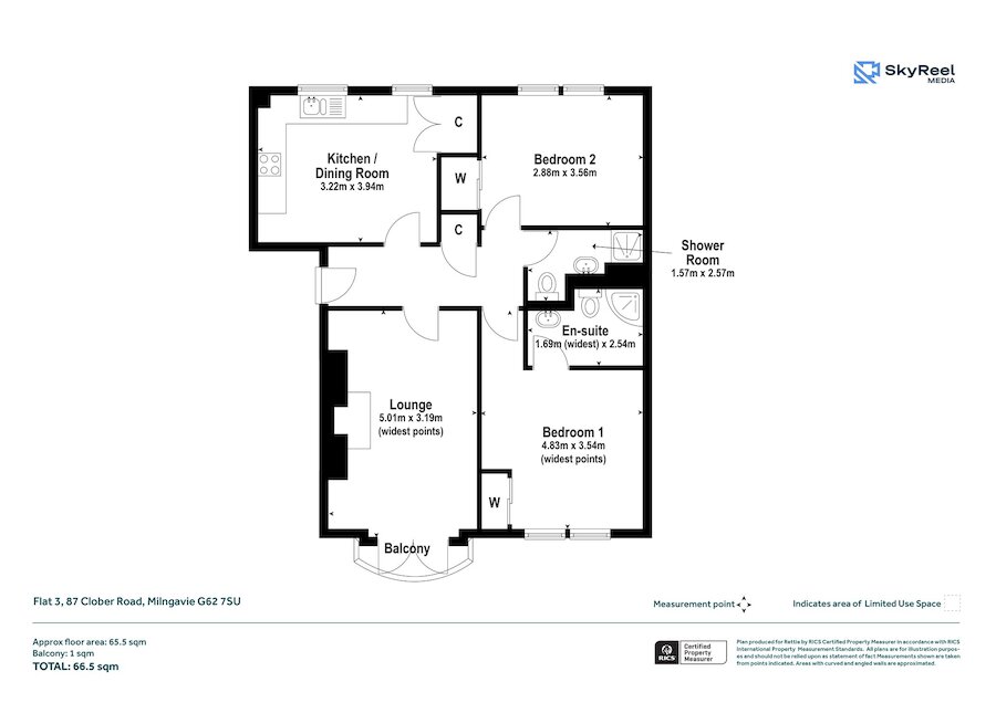
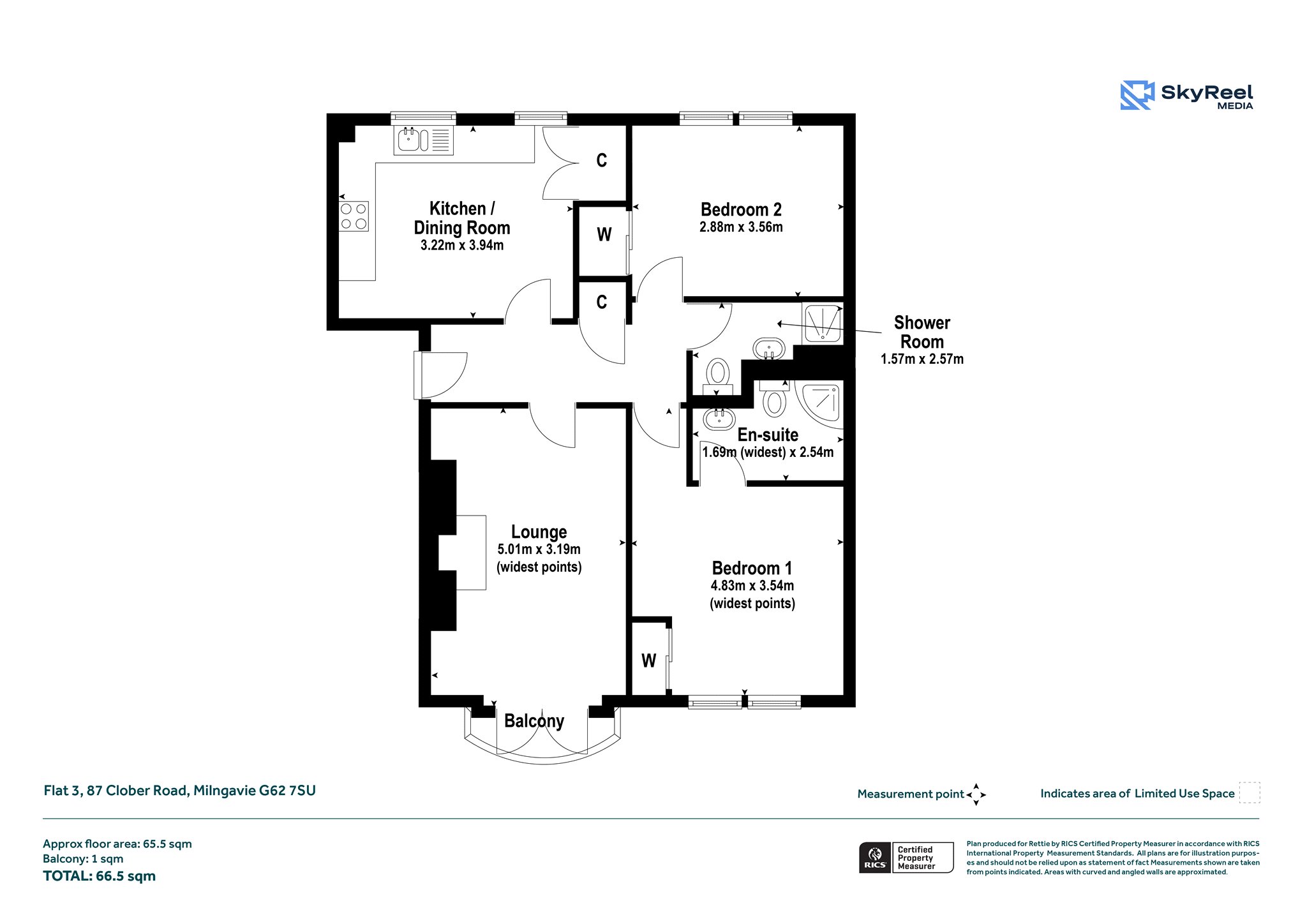
- 2 double bedrooms
- Lounge with Paris balcony
- 2 shower rooms (one ensuite)
- Large kitchen
- Gas central heating
- Double glazing
- Residents’ gardens and car park
- Only 1/3 mile to village centre
Description
A most appealing two bedroom Modern Flat (built in the late 1990’s), on the first floor in this small eight-unit development of only six flats and two, compact, attached villas.
The location is extremely handy being only 1/3 mile from “the clock” at the heart of the village centre and nearby the pathways that meander through Allander Park, to Milngavie Library, and to the village centre itself.
The apartment has been most attractively designed with the two bedrooms and the large kitchen having two windows (lots of light) and the lounge featuring French doors, and windows, to a “Paris” balcony. There are two shower rooms, one ensuite to the main bedroom. The size of the kitchen is quite a surprise - a fine rectangular shaped room with space for table and chairs and two windows facing westwards. Windows in the apartment, and the French doors, are double glazed and there is a mains gas central heating system with the lounge fireplace featuring a living flame coal effect gas fire (not tested).
The development sits up on a level plot with lawned gardens, residents/visitor car park, and bin store. It is self-factored to which residents currently contribute £85 pcm (for insurance, communal lighting and cleaning, garden maintenance).
Location
As detailed, the location of the apartment is excellent - a short, near 1/3 mile, walk to the very centre of the village precinct and a short stroll to Allander Park and Milngavie’s Community Library and Education Centre, with its duck pond, all accessible via lovely, woodland, pathways that follows the line of the Allander Water.
The village has a broad range of independent retailers but also Boots, Marks and Spencer’s, and Tesco. At the Burnbrae Retail Park is an ALDI and a Waitrose. Milngavie’s railway station provides regular links to Glasgow City Centre and West End and there are bus services similarly, and to surrounding districts. Churches of various denominations are in/near the centre and there are many clubs and societies.
Sat NAV ref: G62 7SU
EPC : BAND B
COUNCIL TAX : BAND F
TENURE : FREEHOLD
More Details
Situation: Communal Garden
Council Tax Band: F
Tenure: Freehold
Your home may be repossessed if you do not keep up repayments on your mortgage. There may be a fee for mortgage advice. The actual amount you pay will depend upon your circumstances.
Similar Properties
Looking To Sell Or Let?
Rettie is one of the most trusted and well-respected names in property. Our unrivalled market knowledge helps people from around the world buy, sell, let and develop property in Scotland and the North East of England - from city apartments and rural cottages to large townhouses and prime country homes, farms and estates. We deal with some of the most prestigious properties on the market, but provide the same exceptional standards of service and value for money to all our clients.








































