Property Description
Just north of Bearsden Cross and within the conservation area of Old Bearsden an all-on-the-level Victorian (1889) stone Detached House. A pretty, double-fronted, bay façade conveys an almost cottage like appearance, all set beneath a handsome reslated roof, only completed some five years ago.
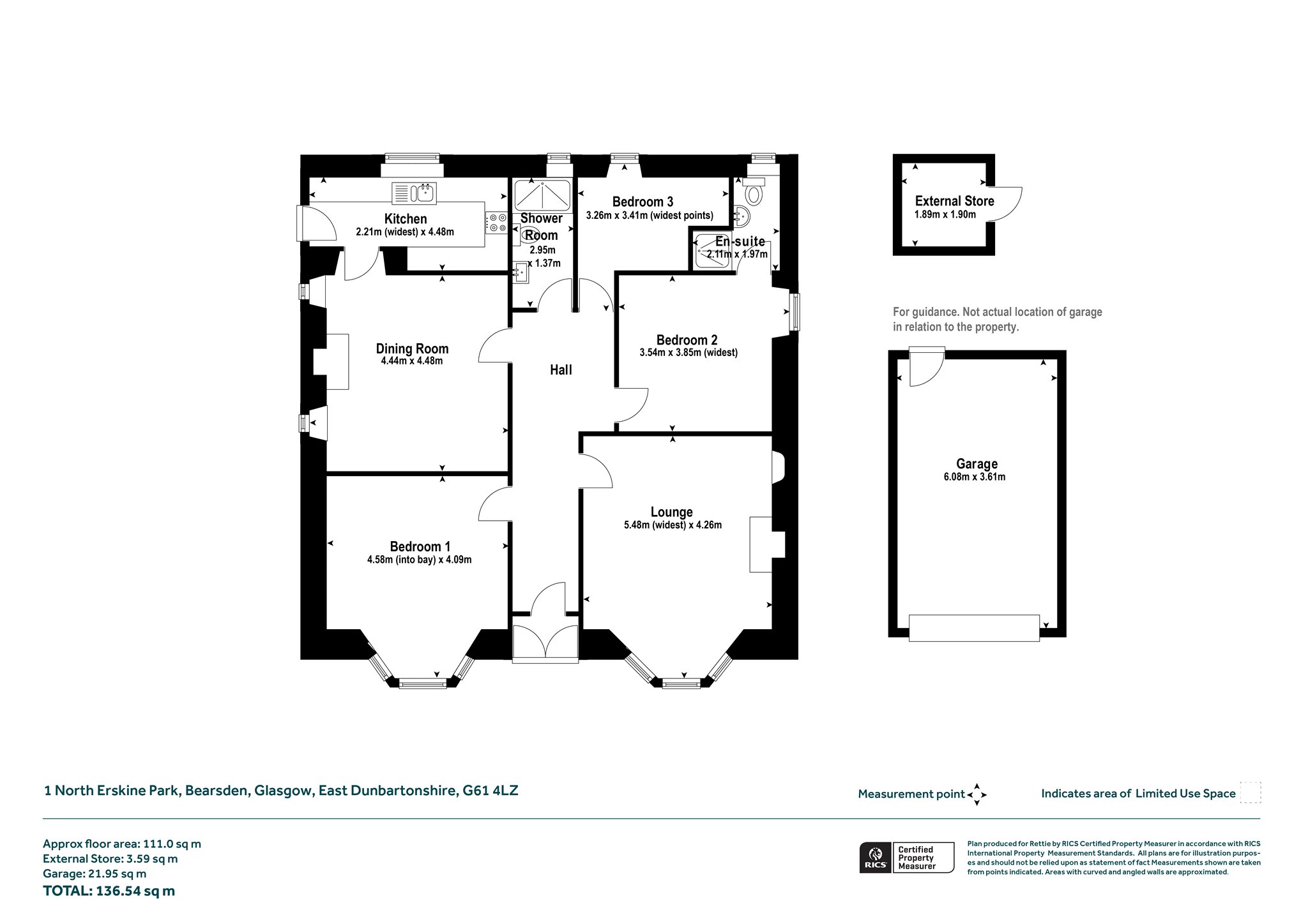
Stone Detached House
Accommodation all on ground floor
High celings
2 public rooms
3 bedrooms
2 shower rooms (one being ensuite)
Kitchen, galley style
Large attic (undeveloped)
Gas central heating (combi boiler)
Double glazed
Larger than standard garage(electric door)
South facing rear garden
Summary of Accommodation
Entrance vestibule with storm doors. A fine hall. Bay windowed lounge with fireplace (living flame coal effect gas fire). Dining room with Claygate fireplace. Two double bedrooms, one with bay window and one with ensuite shower room. Single, third bedroom, primary shower room (very modern). Galley style kitchen with cream units, granite style laminate worktops with appliances of – 4-burner gas hob, cooker hood, oven/grill, built-in fridge-freezer, free-standing washing machine.
The attic is accessed via a Ramsay loft ladder. Insulated, it is centrally floored and the Worcester Greenstar Junior 28E combination boiler (2007) is here. Other homes of this type have developed the roof space to create additional accommodation, with a staircase, and therefore clear scope to do similarly here for those wishing additional rooms, subject of course to assumed planning consents and warrants.
Garden
The garden has a gentle sloping front garden with front garden wall and privet hedge above, screening a small lawn with borders. A long slab and gravel driveway extends up the side of the house and provides parking for as many as four cars. This leads to post-war, larger than standard, garage with an electric, remote controlled, door.
The rear garden is not too large and is a lovely, south facing, space with two patios, lawn, established beds that includes a fine Acer, and with a small brick garden shed to the east side of the house where there is a gate and path. There is, currently, a disability ramp across the back of the house to the kitchen back door – provided by East Dunbartonshire Council this will be removed by them, for recyling, and the process for removing is in hand and should be removed in advance of entry date.
Location
The property is located only 0.3 mile north off Bearsden Cross. It is therefore within easy walking distance of the excellent shops and services to be found there which includes cafes, restaurants, a Marks and Spencer food hall, quality butchers and fishmongers, and a well stocked Post Office amongst others. Just south of The Cross is the railway station with its regular links to Glasgow's West End and City Centre. For schooling, catchment is at Bearsden primary, at The Cross, and for the high-performing Bearsden Academy at Courthill beside which is St Nicholas’ Primary. On Ledcameroch Road is the Junior School for the private High School of Glasgow with its secondary just south of Bearsden at Anniesland. There are tennis clubs, a bowling club, four golf courses, a fabulous local authority sports centre and lots of green areas including the woodland walk around Kilmardinny Loch. Bus services are regular with ready road links to access, again, the West End and City Centre.
A rare opportunity to acquire one of these charming homes.
Sat NAV ref: G61 4LZ
EPC : BAND E
COUNCIL TAX : BAND G
TENURE : FREEHOLD
More Details
Situation: Private Garden
Council Tax Band: G
Tenure: Freehold
Your home may be repossessed if you do not keep up repayments on your mortgage.
There may be a fee for mortgage advice. The actual amount you pay will depend upon your circumstances. The fee is up to 1% but a typical fee is 0.3% of the amount borrowed.
Similar Properties
Looking To Sell Or Let?
Rettie is one of the most trusted and well-respected names in property. Our unrivalled market knowledge helps people from around the world buy, sell, let and develop property in Scotland and the North East of England - from city apartments and rural cottages to large townhouses and prime country homes, farms and estates. We deal with some of the most prestigious properties on the market, but provide the same exceptional standards of service and value for money to all our clients.
