Property Description
- Detached, two bedroomed pre-war bungalow (1930s)
- Fabulous position in quiet address just to the West of Milngavie Village
- Well maintained, room to redesign/develop according to taste & budget
- Set upon lovely, level garden plot – particularly attractive, leafy/level garden to rear
- Fabulous potential for extension/development (subject to necessary warrants and permissions from the local authority) – superb loft space/potential to create additional floor of accommodation
- Off street driveway parking
- Gas central heating/PVCu double glazing
A delightful, largely unaltered detached, double bay fronted bungalow that enjoys a position of high appeal in a quiet, leafy address in Milngavie’s popular Nethermains district. The property here will attract interest from this varying in age and stage of life – from families looking to augment and develop, to downsizing and professional couples looking to retain the footprint of four principal apartments and implement their own decorative themes and ideas. An all too rare opportunity to take on one of these fantastic houses close to original form – early inspection advised.
Summary of Accommodation
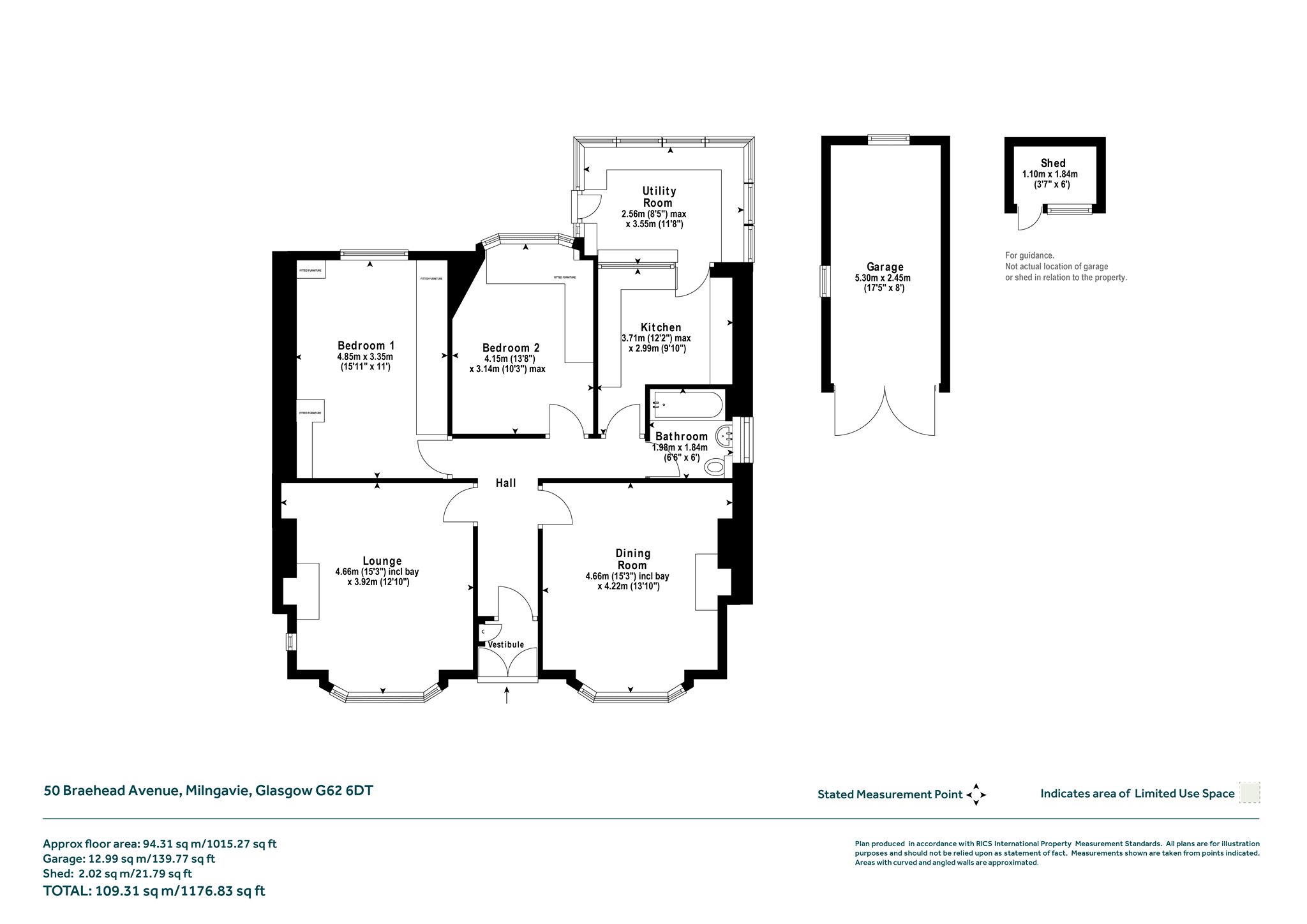
- Storm door entry to vestibule
- ‘L’ shaped reception hallway
- Bay windowed lounge
- Bay windowed dining room
- Two bedrooms
- Kitchen with rear porch off
- Tiled three piece family bathroom
Situation
Very handily placed for access to the village centre and the excellent shops and services there, including the railway station. School catchment is the high-performing Douglas Academy and nearby Craigdhu Primary. Under construction is the Oakburn Early Years Learning Centre.
Sat Nav Ref: G61 6dt
EPC : BAND D
COUNCIL TAX : BAND F
TENURE : FREEHOLD
More Details
Situation: Private Garden
Council Tax Band: F
Tenure: Freehold
Your home may be repossessed if you do not keep up repayments on your mortgage. There may be a fee for mortgage advice. The actual amount you pay will depend upon your circumstances.
Similar Properties
Looking To Sell Or Let?
Rettie is one of the most trusted and well-respected names in property. Our unrivalled market knowledge helps people from around the world buy, sell, let and develop property in Scotland and the North East of England - from city apartments and rural cottages to large townhouses and prime country homes, farms and estates. We deal with some of the most prestigious properties on the market, but provide the same exceptional standards of service and value for money to all our clients.

