Offers Over £295,000
Terraced House
2 Bedrooms
1 Bathroom
1 Reception Room
Private Garden
Garage
Off Street Parking
Property Description
- Extended and smartly appointed two bedroom terraced villa
- Forming part of consistently popular Ledcameroch Park development
- A great house for couples, single child families and downsizers
- Superb open plan dining/kitchen
- High specification across accommodation
- Lovely rear garden
- Residents’ parking and allocated garage
Built in the late 1970's by Ambion Homes, Ledcameroch Park is a delightful modern development of Georgian style properties set amidst professionally maintained gardens with rolling open lawns and a pleasant mix of mature trees and shrubs. Being situated at the top end of Ledcameroch Road which is considered to be one of Bearsden's most prestigious addresses, Ledcameroch Park is perfectly placed for all of Bearsden's amenities.
Here, No.26 could be argued as one of the best examples of the two bedroomed models found within development, having been successfully extended and renovated to a very high standard indeed across our client’s custodianship. The pitched roof extension (completed in 2023 along with the kitchen) is one of many highlights, with the specification including:- engineered oak flooring throughout the ground floor, modern PVCu double glazing and a brand new (2026) Vokera Riello boiler having been recently fitted. Tasteful and understated decorations can be found throughout.
A lovely home with early viewing advised.
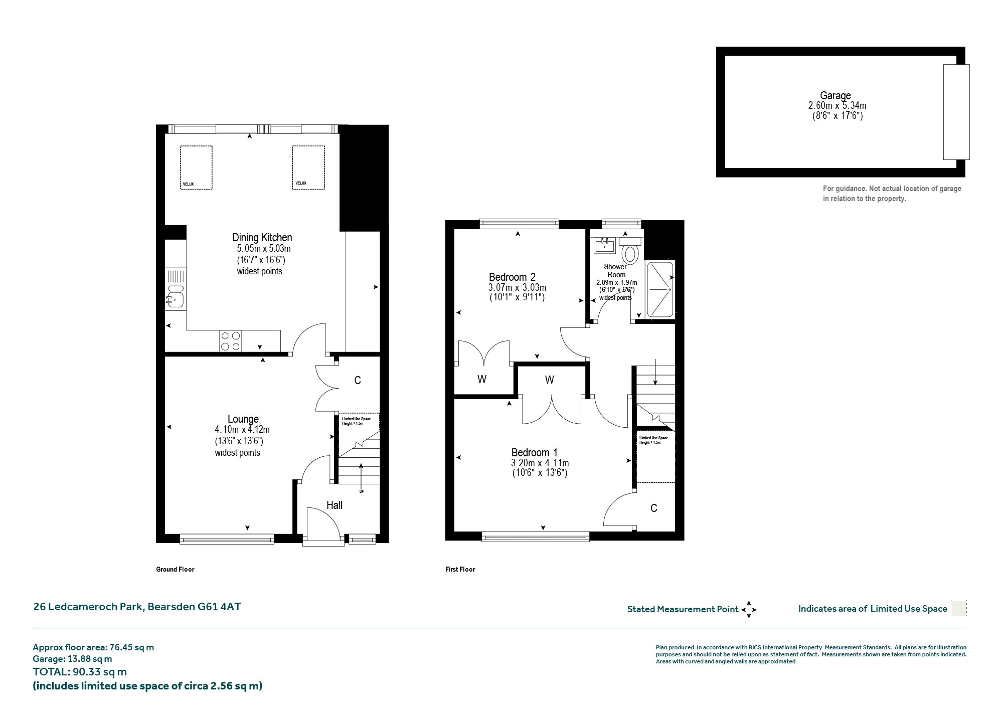
Summary of Accommodation
- Entrance hall
- Lounge with storage cupboard off
- Open plan dining kitchen – quality appliances/fixtures/fittings, pitched roof extension with sliding door access to rear garden
- Modern tiled shower room
- Two double bedrooms
Situation
Ledcameroch Park is a peaceful location with no through road and the property is well placed for public transport (Bearsden train station is within walking distance), a number of local and national retailers and Bearsden Cross is also reachable by foot. There is also a strong mixture of private and public schooling within the area and the centre of Glasgow is reachable in approximately 20 minutes by car
Sat Nav Ref: G61 4at
COUNCIL TAX : BAND E
EPC : BAND C
TENURE : FREEHOLD
More Details
Situation: Private Garden
Council Tax Band: E
Tenure: Freehold
Your home may be repossessed if you do not keep up repayments on your mortgage. There may be a fee for mortgage advice. The actual amount you pay will depend upon your circumstances.
Similar Properties
Looking To Sell Or Let?
Rettie is one of the most trusted and well-respected names in property. Our unrivalled market knowledge helps people from around the world buy, sell, let and develop property in Scotland and the North East of England - from city apartments and rural cottages to large townhouses and prime country homes, farms and estates. We deal with some of the most prestigious properties on the market, but provide the same exceptional standards of service and value for money to all our clients.
