Offers Over £495,000
Detached House
3 Bedrooms
1 Bathroom
2 Reception Rooms
Private Garden
Garage
Off Street Parking
Property Description
- Individually designed, detached 1930’s villa
- A wonderful family home set upon large garden plot
- Forming part of a coveted, tree lined address
- Striking period aesthetic, great room sizes, potential to augment
- Six principal apartments – three bedrooms/three public rooms
- Reroofed in 2020
- Fantastic cellar space accessed via hatch to kitchen
- Off street driveway parking and garage
- Superb gardens to rear – south/west facing
- A house with exceptional potential
An immediately striking detached villa dating from the 1930’s and completely individual in design, this wonderful family home is set upon a large, well established garden plot and enjoys a fantastic position in Bearsden’s Lochend district. Under the same ownership for a number of decades, the property features abundant period charm and, whilst requiring a programme of investment/upgrading, provides near boundless potential for the incoming purchaser to redesign/update according to taste and budget.
Immediately striking with its asymmetric/offset frontage, red brick dressings, period windows and archway motif surrounding entrance doorway, the property features superb room sizes throughout and, at current, a floor space approaching 1,400ft². Given the size/scale of the plot, there is potential here for significant extension to the rear (subject to permissions/warrants from the local authority).
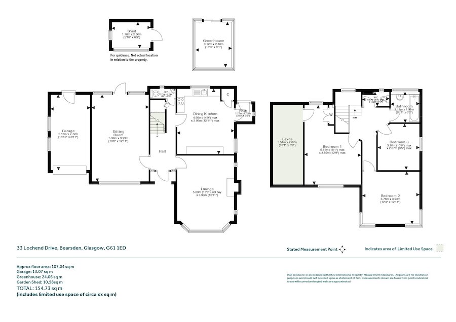
Our suite of HDR images, 360° immersive tour, HD video and floorplan will allow for thorough desktop appraisal of the property, with a summary of the accommodation to be found as follows:-
Summary of Accommodation
Entrance hallway with stair to first floor, cloakroom w.c, bay windowed lounge with feature fireplace, sitting room with feature fireplace, dining kitchen, porch, family bathroom and w.c to first floor, three double bedrooms
The property features fantastic garden space to both front and rear, with the rear garden notable for its generous size, privacy and lovely arrangement with a variety of mature specimens.
Situation
The house is less than a mile from Bearsden Cross and circa ½ mile from Bearsden railway station. Not far away is the expanse of Colquhoun Park (great area for kids). School catchment is Colquhoun Primary (placement requests for Bearsden Primary have been granted in the past) with secondary at Boclair Academy. Within Bearsden is St Nicolas’ Primary, Bearsden Early Years.
Sat Nav Ref: G61 1ed
COUNCIL TAX : BAND G
EPC : BAND D
TENURE : FREEHOLD
More Details
Situation: Private Garden
Council Tax Band: G
Tenure: Freehold
Your home may be repossessed if you do not keep up repayments on your mortgage. There may be a fee for mortgage advice. The actual amount you pay will depend upon your circumstances.
Similar Properties
Looking To Sell Or Let?
Rettie is one of the most trusted and well-respected names in property. Our unrivalled market knowledge helps people from around the world buy, sell, let and develop property in Scotland and the North East of England - from city apartments and rural cottages to large townhouses and prime country homes, farms and estates. We deal with some of the most prestigious properties on the market, but provide the same exceptional standards of service and value for money to all our clients.
