Offers Over £339,000
Semi Detached House
3 Bedrooms
2 Bathrooms
3 Reception Rooms
Private Garden
Off Street Parking
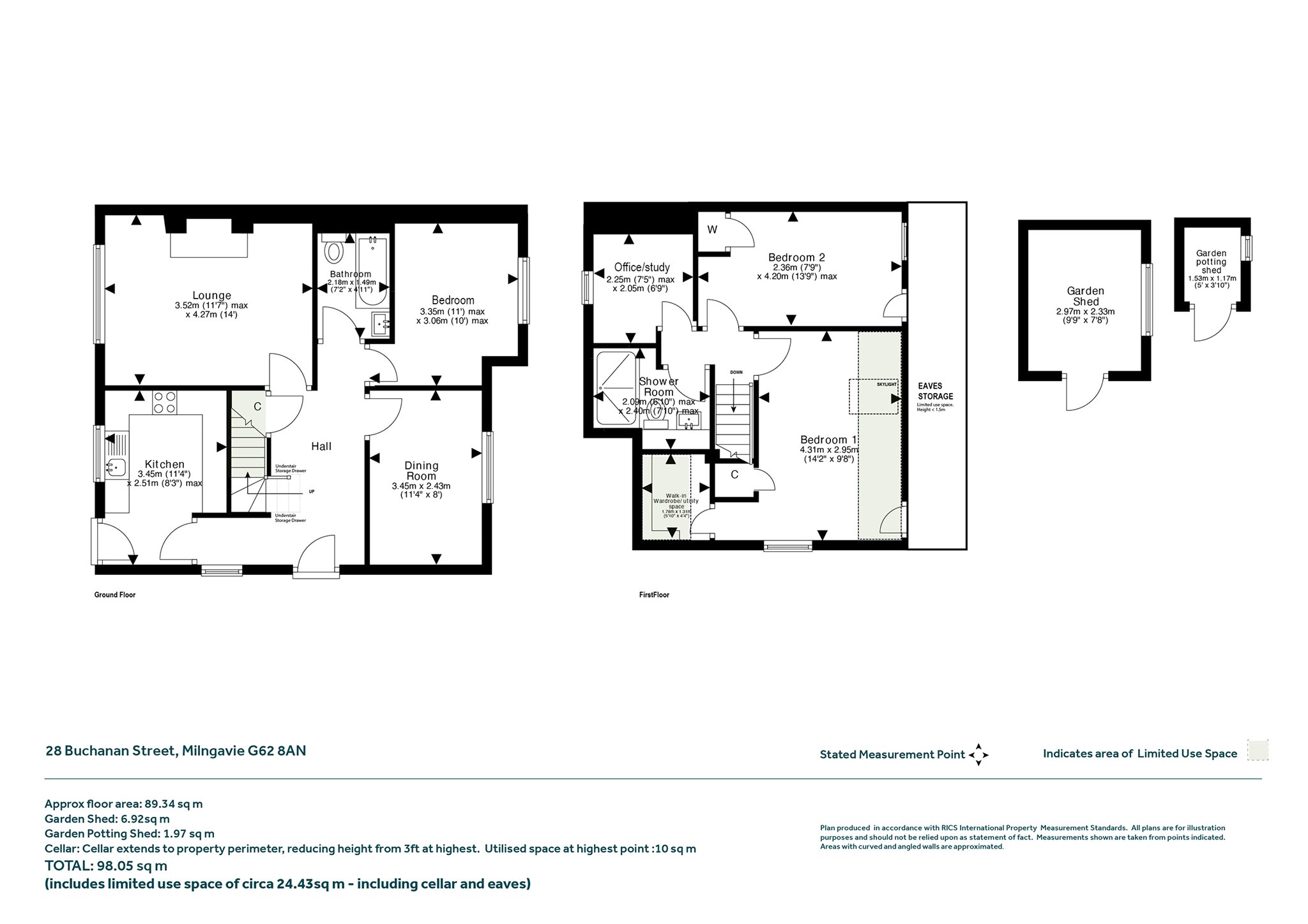
Property Description
- Three/four bedroomed chalet style semi-detached villa
- Fantastic Milngavie location just east of the Village
- Six principal rooms(could be three bedroom/three public – four bedroom/two public)
- Smartly appointed across the accommodation
- Fantastic garden space to rear
- Off street driveway parking
- Milngavie Primary and Douglas Academy catchment
A superb example of the early post war chalet style villas that form part of a coveted/conveniently situated Milngavie address, this cleverly configured three bedroomed property is presented to market in fine condition and will offer appeal to a wide range of potential purchasers. Off street driveway parking and a particularly good garden to the rear. Early inspection is encouraged and advised.
From the point of acquisition, our clients have carried out various aesthetic improvements to the property along with altering/augmenting the first-floor via the implementation of a dormer window. This alteration has made space for a third bedroom/study along with an additional shower room. First hand inspection along with review of the surveyors Home Report will showcase the strong material condition of the property.
Summary of Accommodation
- Reception hallway with storage off and staircase to first floor
- Lounge with feature fireplace
- Dining room
- Contemporary kitchen
- Family bathroom and separate shower room
- Three/four bedrooms (downstairs double room currently set up as sitting room – study/office currently set up as small fourth bedroom)
The rear garden is a hugely appealing area and great thought has gone into combination of spaces that form it. Areas of lawn, patio and raised bedding provide room for child’s play, outdoor entertaining and keen gardeners in equal measure.
Situation
In addition to being so handy for Milngavie’s local shops and amenities the house is nearby Tannoch Loch, Lennox Park and the walking areas of Craigmaddie and Mugdock Reservoirs and Drumclog Moor. School catchment is nearby Milngavie Primary and for Douglas Academy. On Mugdock Road is The Glasgow Academy Preparatory School.
Sat Nav Ref: G62 8an
EPC : BAND C
COUNCIL TAX : BAND E
TENURE : FREEHOLD
More Details
Situation: Private Garden
Council Tax Band: E
Tenure: Freehold
Your home may be repossessed if you do not keep up repayments on your mortgage. There may be a fee for mortgage advice. The actual amount you pay will depend upon your circumstances.
Similar Properties
Looking To Sell Or Let?
Rettie is one of the most trusted and well-respected names in property. Our unrivalled market knowledge helps people from around the world buy, sell, let and develop property in Scotland and the North East of England - from city apartments and rural cottages to large townhouses and prime country homes, farms and estates. We deal with some of the most prestigious properties on the market, but provide the same exceptional standards of service and value for money to all our clients.

