Offers Over £255,000
Terraced House
3 Bedrooms
2 Bathrooms
2 Reception Rooms
Private Garden
Garage
Off Street Parking
Property Description
Situated in a quiet, family-friendly address in Bearsden, this beautifully presented mid-terraced villa offers flexible and surprisingly spacious accommodation—ideal for both growing families and those seeking a comfortable home-working environment.
Key Features
- Three double bedrooms (including attic conversion)
- Additional single bedroom / study – perfect for home working
- Bright bay-windowed lounge and dining room
- Modern fitted kitchen
- Family bathroom and en-suite shower room
- Garage included
- Located within the highly sought-after Bearsden Academy catchment area
- Close to excellent local schools and amenities
Situation
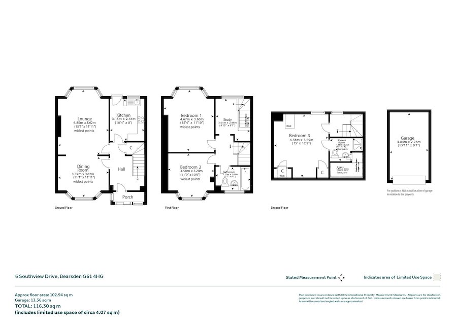
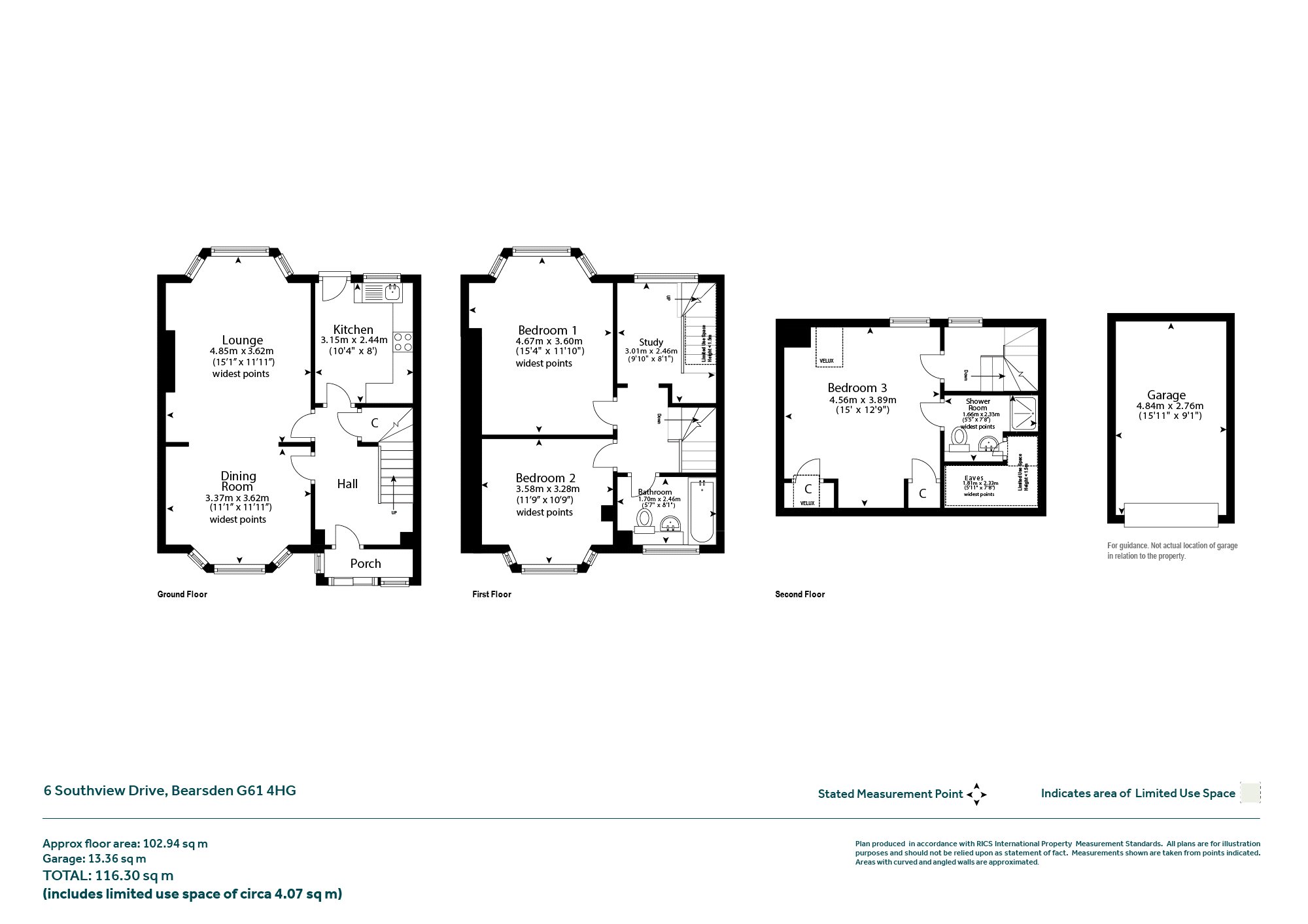
The property opens with an entrance vestibule leading into a welcoming reception hallway with staircase access to the upper level. The ground floor features a bright bay-windowed lounge and a separate dining room, along with a well-appointed fitted kitchen.
Upstairs, there are three generously sized double bedrooms, with the third bedroom located in the converted attic space. A further single room provides an ideal study or nursery. The home is completed by a stylish three-piece family bathroom and an en-suite shower room.
Summary of Accommodation
- Entrance vestibule
- Welcoming reception hallway with stair to first floor
- Bay windowed dining room - Bay windowed lounge
- Fitted kitchen
- Tiled, three-piece family bathroom, ensuite shower room
- Three double bedrooms (third bedroom in attic) - Additional single room/study
Location
The home enjoys a peaceful setting just a short distance from highly regarded local schools, including Castlehill Primary and within the catchment for Bearsden Academy. Leisure options are abundant, with Bearsden Golf Club and Thorn Park nearby. Bearsden Cross, with its shops, cafes, and railway station, is approximately one mile away, offering excellent transport links.
Sat Nav : G61 4hg
EPC : BAND C
COUNCIL TAX : BAND D
TENURE : FREEHOLD
More Details
Situation: Private Garden
Council Tax Band: D
Tenure: Freehold
Your home may be repossessed if you do not keep up repayments on your mortgage.
There may be a fee for mortgage advice. The actual amount you pay will depend upon your circumstances. The fee is up to 1% but a typical fee is 0.3% of the amount borrowed.
Similar Properties
Looking To Sell Or Let?
Rettie is one of the most trusted and well-respected names in property. Our unrivalled market knowledge helps people from around the world buy, sell, let and develop property in Scotland and the North East of England - from city apartments and rural cottages to large townhouses and prime country homes, farms and estates. We deal with some of the most prestigious properties on the market, but provide the same exceptional standards of service and value for money to all our clients.
