Property Description
- Three bedroomed semi-detached villa
- Part of Bearsden’s popular Colquhoun Park district
- Modernisation required – great potential
- Off street driveway parking
- Large fully enclosed rear garden
- Colquhoun Park Primary/Boclair Academy catchment area
- A great family home
Enjoying amidst Bearsden’s Annan Drive and with attractive views across Colquhoun Park, this three bedroomed semi-detached villa was constructed by John Lawrence in the 1960’s and will offer great appeal to couples/families looking to redesign one of these fantastic homes according to their own taste and budget. Off street driveway parking, detached garage and superb garden space to the rear. Early inspection is advised.
Our Suite Of Hdr Images, 360° Immersive Tour, Hd Video, And Floor Plan Will Allow For Thorough Desktop Appraisal Of The Property, With A Summary Of The Accommodation As Follows
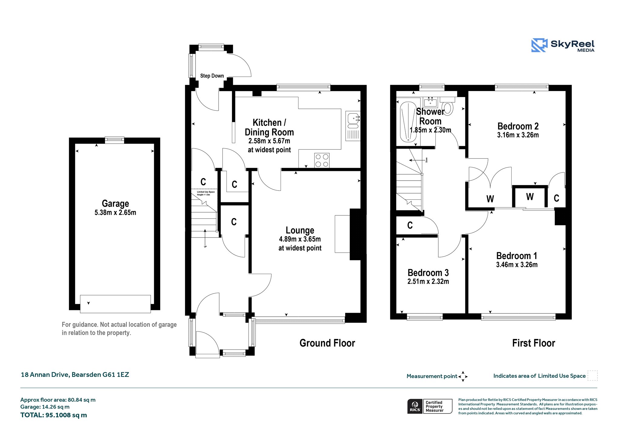
Summary of Accommodation
- Reception hallway with storage off and staircase to first floor
- Lounge with feature fireplace
- Open plan kitchen/dining area
- Porch
- Shower room
- Three bedrooms (two large doubles and additional single room)
The property features superb garden space to the rear – set over two principal tiers and low maintenance in its makeup. Plenty room for extension if required (subject to permissions/warrants from the local authority).
Situation
The Colquhoun Park area of Bearsden is very handy. As the crow flies, it is less than a mile from Bearsden Cross and both Bearsden & Westerton Railway Stations are within walking distance. From Canniesburn Road there is a direct bus route in to Glasgow City Centre. Closeby, Colquhoun Park is a wonderful facility to have on your doorstep and especially for those with children, its playing fields are extensive, there is a children’s playpark and a couple of Nature Areas, including one with a pond. School catchment is for Colquhoun Park Primary, which is just around the corner on Canniesburn Road with secondary provision at Boclair Academy where a new £40m+ school premises has opened just last year.
Sat Nav Ref: G61 1ez
COUNCIL TAX : BAND E
EPC : BAND D
TENURE : FREEHOLD
More Details
Situation: Private Garden
Council Tax Band: E
Tenure: Freehold
Your home may be repossessed if you do not keep up repayments on your mortgage.
There may be a fee for mortgage advice. The actual amount you pay will depend upon your circumstances. The fee is up to 1% but a typical fee is 0.3% of the amount borrowed.
Similar Properties
Looking To Sell Or Let?
Rettie is one of the most trusted and well-respected names in property. Our unrivalled market knowledge helps people from around the world buy, sell, let and develop property in Scotland and the North East of England - from city apartments and rural cottages to large townhouses and prime country homes, farms and estates. We deal with some of the most prestigious properties on the market, but provide the same exceptional standards of service and value for money to all our clients.
