Offers Over £460,000
Detached House
3 Bedrooms
1 Bathroom
2 Reception Rooms
Private Garden
Double Garage
Off Street Parking
Property Description
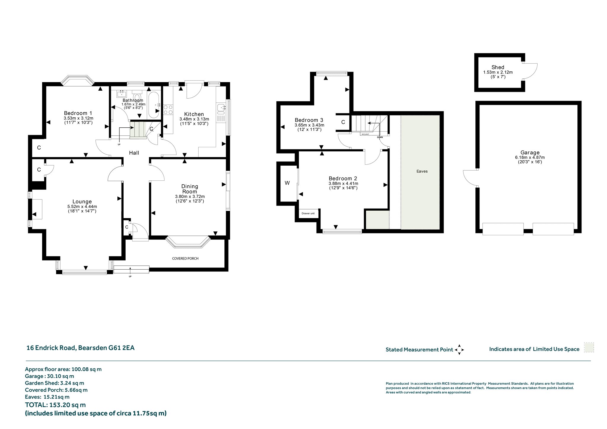
- Detached three bedroomed bungalow constructed in the 1930’s
- Occupying a prime corner plot in Bearsden’s Carrickarden district
- Layout across five principal apartments plus kitchen
- A great house for various ages and stages
- Very well presented across accommodation
- Bearsden Primary and Bearsden Academy catchment
- Off street driveway parking and detached garage
An immediately appealing and very well-presented detached bungalow set upon a prime corner plot. Great room sizes, character details and modern convenience combine to great effect here and create a home that will offer appeal to a wide and varied audience.
Bearsden’s Carrickarden district has long been admired and, therein, the period bungalows have always commanded immediate intrigue given their aesthetic appeal and practicality. The property here offers one of the best examples of its kind to reach the market in recent years.
Summary of Accommodation
- Entrance hallway with attractive archway motif, storage off and staircase to first floor
- Bay windowed lounge with fireplace punctuated by feature windows
- Formal dining room with doors to southwest facing patio area
- Contemporary kitchen with range of units, worktop space and appliances
- Modern, fully tiled family bathroom – three
- piece suite, over bath shower
- Three double bedrooms
- Generous eaves storage
Great garden space surrounds the property, with the corner site affording plenty space and allowing for various areas of lawn, bedding and hard landscaping. Off street driveway parking and detached garage.
Situation
Endrick Drive offers the perfect blend of a peaceful residential setting yet very handily located with easy access to a wide range of Bearsden's excellent shops, supermarkets and amenities via both Drymen Road and Milngavie Road. A short walk from local schools, a terrific late-opening Co-op store at the top of Station Road, across from which is Bearsden Railway Station (less than half a mile) which provides a regular service into Glasgow’s West End and City Centre. Also within easy walking distance of Bearsden Cross, the heart of Bearsden, where there is an excellent selection of quality independent retailers, along with a Marks & Spencer’s (food hall). Coffee shops, quality restaurants, banks and a post office. A well-stocked Sainsburys is also a couple of minutes walk away on Milngavie Road, along with an Asda superstore. On nearby Drymen Road and Milngavie Road are regular bus services.
Sat Nav Ref: G61 2ea
EPC : BAND D
COUNCIL TAX : BAND F
TENURE : FREEHOLD
More Details
Situation: Private Garden
Council Tax Band: F
Tenure: Freehold
Your home may be repossessed if you do not keep up repayments on your mortgage.
There may be a fee for mortgage advice. The actual amount you pay will depend upon your circumstances. The fee is up to 1% but a typical fee is 0.3% of the amount borrowed.
Similar Properties
Looking To Sell Or Let?
Rettie is one of the most trusted and well-respected names in property. Our unrivalled market knowledge helps people from around the world buy, sell, let and develop property in Scotland and the North East of England - from city apartments and rural cottages to large townhouses and prime country homes, farms and estates. We deal with some of the most prestigious properties on the market, but provide the same exceptional standards of service and value for money to all our clients.
