48 Bellrock Park, Fairmilehead, Edinburgh, EH10 6TY
Property Description
A meticulously maintained, detached family home with driveway and double garage, in the highly sought after Fairmilehead area of Edinburgh. Set on a corner plot, this fabulous family home offers spacious, modern family living with views of the Pentland Hills.
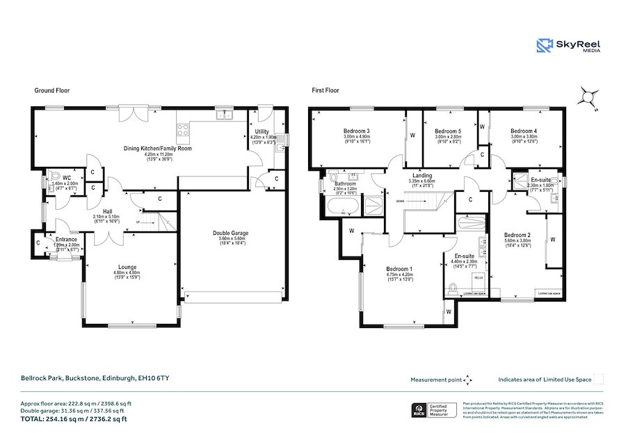
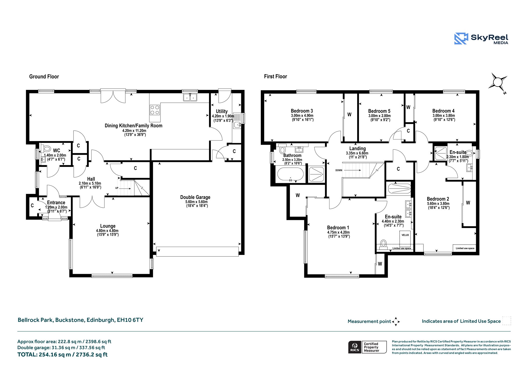
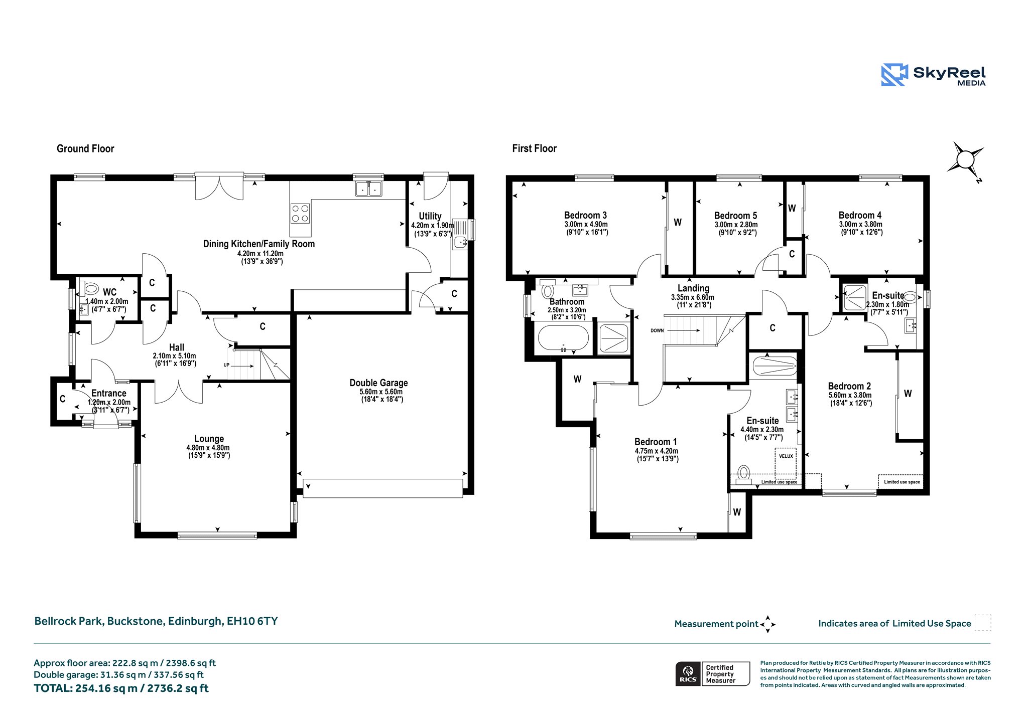
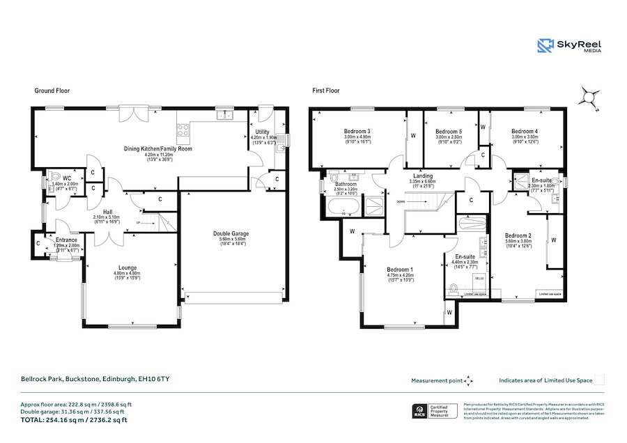
Spanning over almost 2,400 square feet, the property is entered via a vestibule into a spacious hallway leading to a fabulous kitchen/ dining/ sitting room. The kitchen is of high specification inlcuding silestone worktops and a double oven, as well as french doors to the garden. The kitchen leads to a useful utility room with sink and garden access. This floor also benefits from a living room with triple aspect windows and large double garage with electric doors. This floor is complete with a downstairs WC and four storage cupboards.
Upstairs, there are five double bedrooms, two with ensuite, and a further family bathroom, all completed to a high specification. The principal bedroom is to the front with large built-in wardrobes and an en suite bathroom with twin sinks. The second bedroom has fitted wardrobes and an en suite shower room. There are three further double bedrooms, all with fitted wardrobes, and a large family bathroom with bath and separate shower cubicle. In addition, there is one spacious shelved storage cupboard off the landing.
To the rear of the house is a fantastic south west facing enclosed garden which is laid to lawn. The garden provides a private space for enjoying the outdoors with fabulous views to The Pentlands. This property benefits from a hot tub to take in the views, as well as a 10m2 Scotia Cabins barbeque hut which was added in 2021. This is a great feature for hosting parties.
Location
Bellrock Park forms part of the highly sought after and established CALA development at Fairmilehead, situated just a few miles south of the city centre.
Fairmilehead has a number of local shops, including a chemist whilst there are an excellent variety of shops, bistros and bars in nearby Morningside and Bruntsfield, including a Waitrose, M&S and Sainsbury's. There is further out-of-town shopping at Straiton Retail Park and Fort Kinnaird, both of which are easily accessible by car.
There are excellent local schools nearby with this house being in the catchment area for Buckstone Primary and and Boroughmuir High School. A number of Edinburgh's private schools are also within the vicinity including George Watson's, George Heriot's and Merchiston Castle School.
Local sporting facilities include a number of golf courses, Midlothian Ski Centre and beautiful local walks in the open spaces of The Braids and The Hermitage, as well as cultural amenities including the King's Theatre and Dominion Cinema in Morningside and Bruntsfield.
The property is ideally located for access to the city centre as well the city bypass which links to Edinburgh Park, Edinburgh International Airport and the Central Scotland motorway network.
More Details
EPC: B
Council Tax Band: G
Tenure: Freehold
Your home may be repossessed if you do not keep up repayments on your mortgage.
There may be a fee for mortgage advice. The actual amount you pay will depend upon your circumstances. The fee is up to 1% but a typical fee is 0.3% of the amount borrowed.
Similar Properties
Looking To Sell Or Let?
Rettie is one of the most trusted and well-respected names in property. Our unrivalled market knowledge helps people from around the world buy, sell, let and develop property in Scotland and the North East of England - from city apartments and rural cottages to large townhouses and prime country homes, farms and estates. We deal with some of the most prestigious properties on the market, but provide the same exceptional standards of service and value for money to all our clients.
